亚太星通大厦|宝安中心区亚太星通大厦写字楼招租热线|豪装装修|可办公可接待 深圳亚太星通大厦招租电话 写字楼物业招租招商_24小时电话!
扫描到手机,新闻随时看
扫一扫,用手机看文章
更加方便分享给朋友
亚太星通大厦写字楼招租热线:4000883336【看房请提前线上预约】
深圳亚太星通大厦招租电话:400-088-3336写字楼物业招租招商_24小时电话!
💎星通大厦 宝中第一高度甲级写字楼 全球租赁中!
🔥央企背景 科技巨擎—亚太星通启航首作,开发商直租!
亚太星通大厦写字楼招租热线:4000883336【看房请提前线上预约】
深圳亚太星通大厦招租电话:400-088-3336写字楼物业招租招商_24小时电话!
【项目总建面】107,366.4㎡
【办公面积】72,150㎡
【楼体高度】230m
【产品类型】层高4.5m标准办公产品
【地理位置】宝安中心区宝兴路88号(宝安中心广场旁)
★项目优势
·国企开发商:亚太星通开发,全自持租赁
·核心区位:位于宝安中心区CBD,宝兴路首排
·商圈成熟:高端购物中心聚集(36万平方米壹方城、欢乐港湾、HOP天地),瑞吉酒店、JW酒店
交通便利:距离11号线宝安站约200米,5号线宝华站约400米
入驻名企:中国联通、中国人大、中国建设银行、亚太卫星、中建二局等知名企业
————————————————
★基础参数
【管理费】30元/㎡/月(含税)
【层高】4.5m
【电梯】29部通力品牌高速电梯,高中低分区
【空调】VAV中央空调(高区)、风机盘管(中低区)
【大堂】挑高15m,面积超1,000㎡
【交付标准】租赁单元内:豪装;公共区域:品质精装修
【停车位】453个
————————————————
【必租星通大厦的8大理由】
💰看政策:宝安中心区功能定位“CBD+TBD”,与前海共同组成深圳市城市双中心之一,城市政策所向!
💰看区域:地处宝中科技企业总部区,产业集聚效应凸显!
💰看背景:由央企亚太星通打造,运营商COOC中海商务为国内最大单一业权写字楼发展与运营商,全球五大行之首仲量联行保驾护航!
💰看交通:地铁上盖项目,无缝衔接11号线宝安地铁站,4地铁+1城际铁路多维交通路网,10分钟到南山,15分钟到机场,25分钟到福田CBD,30分钟到香港!
💰看配套:高规格都会配套,商业、商务、休闲、娱乐一切无需等待!
💰看环境:一线环幕海景,18公顷都市森林氧吧,环境优越,4.5m整层全景幕墙,360°瞰海、观园、览城!
💰看设计:设置多层空中花园+空中大堂,全方位塑造醇熟品质办公生活圈,打造会呼吸的写字楼!
💰看品质:四大场景系统,智能派梯+中央空调+智能停车+楼宇自动化,LEED铂金级认证,打造可持续发展的绿色+智慧办公空间!
★项目外立面实拍
★大堂实拍
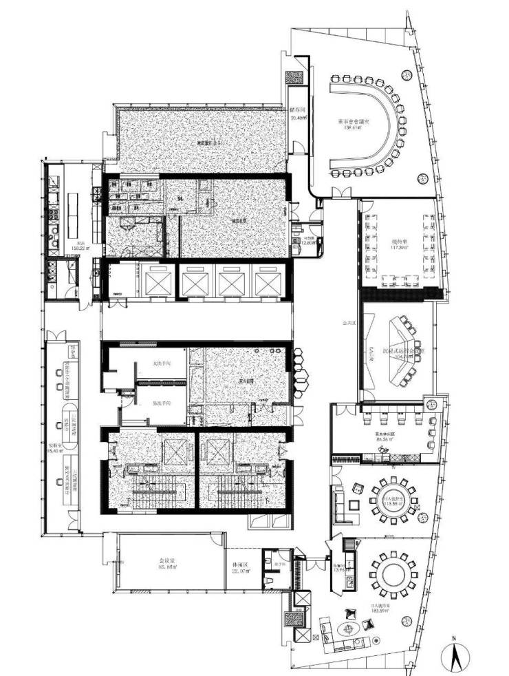
★租赁面积
·【星通大厦47楼整层】
·面积:1154.20平方米
·朝向:全面景观
·交付标准:豪华装修,家私免费使用
·户型亮点:无敌海景,豪华装修,适合总部接待使用,自带厨房
·含空调时段:(工作日:8:00-18:00,周六:09:00-12:00)
·租期:3-5年
★平面图规划
★实拍图
亚太星通大厦写字楼招租热线:4000883336【看房请提前线上预约】
深圳亚太星通大厦招租电话:400-088-3336写字楼物业招租招商_24小时电话!
★38层共享会议室
亚太星通大厦写字楼招租热线:4000883336【看房请提前线上预约】
深圳亚太星通大厦招租电话:400-088-3336写字楼物业招租招商_24小时电话!
★负一层白领餐厅:
★商业配套:
亚太星通大厦写字楼招租热线:4000883336【看房请提前线上预约】
深圳亚太星通大厦招租电话:400-088-3336写字楼物业招租招商_24小时电话!
【免责声明】:本信息来源开发商推广资料和网络收集,更多为传递正能量,本文所述内容和意见仅供参考,如有侵权,请联系我们,我们将进行整改或删除!谢谢!
声明:本文由入驻焦点开放平台的作者撰写,除焦点官方账号外,观点仅代表作者本人,不代表焦点立场。
