凯立方广场售楼处【首页网站】凯立方广场售楼中心_房价_户型_详情
扫描到手机,新闻随时看
扫一扫,用手机看文章
更加方便分享给朋友
龙华凯立方广场售楼处电话
凯立方广场售楼处位置|楼盘详情
深圳K立方广场开发商售楼处电话: 400-088-3336 (营销中心)
K立方广场开发商售楼处_欢迎来电预约享受内部折扣_恭迎品鉴

【K立方广场】
单价1字头起 抢龙华生态办公
大道封面资产 有氧生态办公
项目地址
大浪街道龙峰三路与联润路交汇处
【项目基本信息】
总建筑面积:83523.15㎡
研发用房建筑面积:48609㎡
容积率:4.56
绿化率:30%
建筑高度:99.45米
标准层层高:4.2米/4.5米
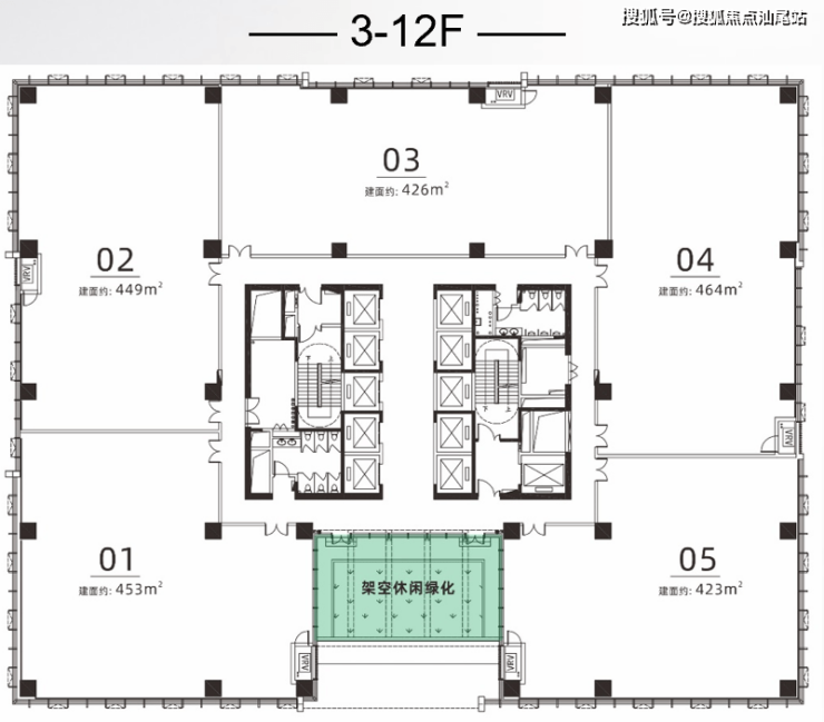
面积段:约421-476㎡-2200㎡(整层)
使用率:约73%
大堂:超1300㎡,高度约9.9米
电梯:11部2.5m/s-4m/s通力品牌电梯
停车位:402
研发用房物业费:11.5元/㎡/月
产权:50年
交楼标准:毛坯
凯立方广场售楼处电话:400-088-3336(营销中心)
【K立方广场 9大必买理由】
龙华黄金地段 总部汇聚 5G产业聚集地
《粤港澳大湾区发展规划纲要》提出,大湾区将建设世界级城市群,龙华定位为中轴区域核心!立于深圳CBD中轴商务带,立足于都市核心区战略定位和新兴产业高地,打造数字龙华的先行示范新引擎。
凯立方广场售楼处电话:400-088-3336(营销中心)K立方广场项目占据龙华商务中心与数字经济圈的黄金交汇点,将吸纳龙华5G产业、数字科技时尚创意、智能制造等新兴产业,助力企业布局高远未来,满足大量商务精英人群需求!

南山进龙华第一站 汇聚“三轨交通”全程快速通勤
1高铁2地铁1轻轨
1高铁:4站抵深圳北高铁枢纽站,乘广深港高铁2站抵香港西九龙,畅达全国
2地铁:直线距离约900m即达地铁6号线阳台山东站,享高效通勤
未来2站接驳地铁13号线 (在建),连通深圳北CBD、福田中心、南山科技园、后海总部基地等7大核心商务区
1轻轨:从阳台山东乘坐有轨电车(在建),线路覆盖大浪街道中心区、大浪时尚小镇核心区
1横1纵高速
一横:沈海高速可快速到达深圳宝安国际机场
一纵:龙大高速直达光明中心区及东莞松山湖
2快速2主干
两快速:福龙快速直达福田车公庙,可快速联通香港。深华快速路-福龙路立交工程(一期)将于今年竣工,连接龙澜大道和福龙路两条快速路,未来侨城东路北延线开通后,一站直达南山中心区
两主干:布龙路、龙峰三路:布龙路直达布吉,龙峰三路连接新区大道北段(预计23年8月通车)可直达北站红山片区
周边超800万㎡旧改 重朔区域城市蝶变
聚集星河、鸿荣源、卓越等30个知名房产开发品牌,超800万㎡庞大体量旧改,重塑区域格局,未来片区商务发展潜力无可估量,物业价值水涨船高。预计3年陆续动工,5年初具规模,10年焕新一城!
繁华商圈 总部聚集 品质人群 丰盛配套
项目以3KM极萃体验为半径,高度聚合市政、商务、居住、酒店、文化休闲等城市功能,无论对接政府、企业、产业上下游,皆能游刃有余。
楼顶太空人雕塑 专属凯立方广场的符号
龙华封面形象,楼顶太空人雕塑,特色的网红地标,专属凯立方广场的符号!

推窗见景 坐看阳台山公园永久生态景观
紧邻约28.52平方公里的阳台山森林公园,近享永无遮挡的阳台山生态景观资源,距阳台山森林公园绿道入口直线距离仅约700米,门口配套4A级景区。推窗是景观,处处是绿意,自由呼吸鲜氧,享受绿色生态办公生活!

超1300㎡环抱式大堂 尊享高贵商务礼遇
大堂高约9.9米,双LED巨型屏幕,高端干挂石材打造,全铝板核心筒,塑造高雅企业商务形象。凯立方广场售楼处电话:400-088-3336(营销中心)

开敞式电梯厅 阳光办公空间
10部2.5m/s-4m/s通力品牌电梯,高低分区,提高运行效率。
开敞式电梯厅设计,全天持续采光通风,安心健康绿色办公,会呼吸的电梯厅!

约百平景观大露台
每层规划约百平景观大露台,健康生态办公休闲空间,与自然共呼吸!

【项目图片】凯立方广场售楼处电话:400-088-3336(营销中心)


研发办公户型鉴赏
标准层面积约2200㎡


深圳K立方广场开发商售楼处电话: 400-088-3336 (营销中心)
深圳龙华大浪凯立方广场售楼处电话:400-088-3336(营销中心)
免责声明:部分图片来源网络,如有侵权请联系后台,我们会第一时间删除。本文资料仅为要约邀请,部分图片为示意性图片,一切图文资料、规划设计仅供参考识别或分享交流之用,不构成合同内容,具体内容均以政府最终批准文件及双方签订的买卖合同为准。
声明:本文由入驻焦点开放平台的作者撰写,除焦点官方账号外,观点仅代表作者本人,不代表焦点立场。
