深圳翰熙典居(售楼处)翰熙典居售楼处_24小时电话|翰熙典居欢迎您-价格-户型图
扫描到手机,新闻随时看
扫一扫,用手机看文章
更加方便分享给朋友
深圳南山区【翰熙典居】
翰熙典居售楼处电话:400-088-3336『售楼中心』
网上售楼中心〢安全通话隐藏真实号码〢欢迎来电咨询〢
开发商售楼处直销_欢迎来电预约尊享内部折扣_匠心钜制恭迎品鉴〢
◆提前来-预约登记尊享售楼处1v1销售专业讲解〢一对一热情服务〢
◆温馨提示:售楼中心〢预约可享内部优惠〢匠心钜制-恭迎品鉴〢
4000883336

翰熙典居作为南山粤海街道的全新楼盘,承载着众多购房者的期待。项目不仅在户型设计上独具匠心,还因所处地段的优越性,在区域发展、周边配套等方面展现出强大的竞争力。接下来,让我们深入了解翰熙典居。
一、多元户型,满足多样需求
105平A1户型
105平A1户型为三房两厅两卫,采用竖厅类双龙抱珠格局,客厅开间达3.6米,客餐厅一体化设计,让公共活动空间更加开阔 。三个卧室布局合理,主卧面积约12.8㎡,次卧分别为12㎡和8.7㎡(包含墙体飘窗) ,居住舒适度高。客厅连接次卧,延伸出6.5米长的宽景大阳台,采光通风俱佳,可尽情享受室外美景 。U型厨房操作便捷,公卫采用三段式分离,提升了使用效率和卫生程度,整体得房率约90%(包含赠送),朝向为东南,阳光充足。
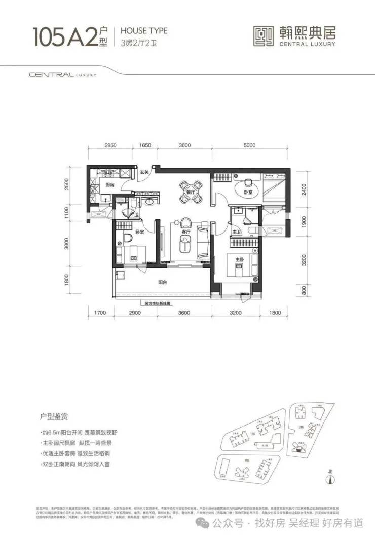
105平A2户型
105平A2户型同样是三房两厅两卫,面积与格局和A1户型相近 。竖厅类双龙抱珠格局,客厅3.6米开间,客餐厅一体化 ,三间卧室面积分别为主卧12.8㎡、次卧12㎡、次卧8.7㎡(包含墙体飘窗) 。客厅连接次卧出6.5米长的宽景大阳台,U型厨房与三段式分离的公卫一应俱全 ,得房率约90%(包含赠送)。其最大的区别在于正南朝向,使得室内光线更为充足,也为购房者提供了不同的选择。
105平B户型
105平B户型设计为经典竖厅格局,客厅3.6米开间,LDKB一体化设计,实现了空间的高效利用 。三开间朝南,动静分区明显,保障了居住的舒适性与私密性 。三个卧室分别做到了主卧13.12㎡、次卧9.9㎡、次卧8.4㎡(包含墙体飘窗) ,满足家庭不同成员的居住需求 。客厅连接次卧出6.4米长的宽景大阳台,U型厨房设计合理,卫生间干湿分离 ,得房率约90%(包含赠送),朝向为正南或东南,居住体验感极佳。
120平B户型
120平B户型为3房2厅2卫格局,分布于2栋3单元05号房,以及2栋4单元01、02、05号房 。三间卧室面积布局合理,主卧达31.5㎡,空间宽敞,居住体验舒适 ,两间次卧分别为9.6㎡与7.05㎡(含墙体及飘窗面积) 。值得一提的是,该户型可灵活改造为4房,满足家庭结构变化或不同居住需求,提高了房屋的实用性和功能性。
140平户型为三室两厅两卫格局,采用横厅设计,南北通透,四开间朝南 ,实现了良好的采光与通风效果,让室内时刻保持明亮与清新 。三个卧室面积分布合理,主卧面积达42.11㎡,宽敞舒适,两间次卧分别为14.43㎡与11.7㎡(含墙体及飘窗面积) 。得房率约90%(含赠送面积),若有需求,还可灵活改造为四房空间 ,满足大家庭或改善型居住需求。
二、价格对比,凸显性价比优势
翰熙典居周边二手房同学区划分内可参考的楼盘是阳光粤海花园,近期成交均价在9万/平左右 。而翰熙典居预计开盘均价会在10 - 12万/㎡区间 。尽管新房价格相对二手房略高,但考虑到翰熙典居是全新楼盘,拥有更新的建筑设计、更完善的社区配套以及新规下较高的得房率 ,从长期居住和房产保值增值角度来看,仍具有较高的性价比。与周边近年来入市的新盘相比,如绿景白石洲11万/平米、深业世纪山谷12万/平米,翰熙典居的价格处于合理区间,在区域内具有一定的价格竞争力 。
三、区域发展,潜力无限
翰熙典居所在的粤海街道被誉为“中国硅谷” ,是深圳高科技产业的核心聚集区 。2024年,这片约14.23平方公里的土地贡献了4497.73亿元的GDP ,超过广东省排名第六的地级市珠海,区域创新能力连续8年全国第一 。辖区内聚集了百度、腾讯、阿里、中兴、华为等科技巨头以及近千家高新技术企业和94家上市公司 。众多高科技企业的汇聚带来了大量高净值人群,为区域的房产市场提供了坚实的需求支撑 ,无论是自住还是投资,翰熙典居都具备良好的发展前景。
交通方面,翰熙典居坐拥双地铁优势,楼下无缝连接9号线和15号线(在建中)的交汇站深大南站 。待2028年15号线贯通后,将高效串联前海南北区域 ,大大缩短通勤时间,加强区域间的联系 。自驾出行也十分便利,2分钟即可驶入滨海大道,20分钟内可快速抵达福田、前海核心地带 ,便捷的交通网络为居民的出行提供了多种选择,也提升了区域的吸引力。
此外,翰熙典居原是桂庙新村城市更新单元,城市更新将改善区域的城市面貌和基础设施 ,提升居住品质 。随着项目周边配套设施的不断完善和区域的持续发展,房产的价值有望进一步提升 。
四、周边配套,尽享便捷生活
交通配套
翰熙典居临近深大南站,9号线和在建的15号线在此交汇 。除了地铁,项目周边道路网发达,四横(滨海大道、深南大道、北环大道、学府路)三纵(南海大道、后海大道、白石路)的交通布局 ,让居民无论是驾车前往深圳各个区域,还是选择公共交通出行都非常方便,有效节省出行时间成本 。
商业配套
项目自带约5000㎡的商业规划 ,满足日常生活所需 。两公里范围内有海岸城、茂业百货、海雅百货等大型商超 ,汇聚了丰富的购物、餐饮、娱乐等业态 。此外,距离深圳湾万象城、万象天地等顶流商业体也在几公里范围内 ,居民可享受一站式的高端购物和休闲娱乐体验 。
教育配套
翰熙典居在南山区第二外国语学校(集团)学府一小和南山区第二外国语学校(集团)学府中学范围内 ,这两所学校教学质量较高,在南山区长期稳定前列 ,为孩子提供了优质的教育资源 。项目还自带12班幼儿园,方便孩子就近入学 。同时,项目隔壁规划新建小学,将进一步缓解学位紧张问题 ,完善区域教育配套。
文娱配套
临近南山书城,周边还有荔香公园、文心公园、科技公园、深圳人才公园等 ,为居民提供了丰富的休闲娱乐场所 。此外,保利剧院、南山图书馆、南山文体中心、南山博物馆、深圳湾体育中心等文体设施也在附近 ,满足居民文化、艺术、体育等多方面的需求 ,丰富居民的精神文化生活。
五、全面剖析,明晰优劣势
优势
1. 核心地段:处于粤海街道核心区域,周边产业资源丰富,就业机会多,对于在周边企业工作的人群通勤极为便捷 ,同时区域的高发展潜力也为房产增值提供了保障。
2. 交通便捷:双地铁交汇,且临近多条主干道,公共交通和自驾出行都十分便利,能快速到达城市各个重要区域 。
3. 教育资源优质:对口优质中小学学区,还有新建学校预期,教育资源丰富,满足孩子从幼儿园到中学的一站式教育需求 。
4. 商业配套成熟:周边大型商超云集,项目自身也有商业规划,未来生活购物非常方便 。
5. 产品优势:新规后的户型,得房率高,空间利用率大,满足不同家庭结构的居住需求 。
劣势
1. 高容积率:作为大型综合体项目,规划住户达3030户,居住密度较大,可能会影响居住舒适度 ,例如梯户比高,可能导致等电梯时间较长;楼间距相对较小,对部分楼层的采光和隐私有一定影响 。
2. 业态混杂:项目包含商品房、回迁房以及保障房,多元居住群体可能导致社区圈层相对复杂 ,物业管理难度增大,对居住品质可能产生一定影响 。
3. 景观欠佳:项目北向紧邻深圳大学生活区,南向受滨海大道噪音干扰,东西两侧被科技园写字楼群环绕 ,缺乏开阔的景观视野,居住环境的景观体验相对不足 。
4. 车位比不足:车位占比约1:0.86,低于深圳新建住宅标准,随着居民车辆保有量的增加,未来停车可能存在一定压力 深圳南山区【翰熙典居】
翰熙典居售楼处电话:400-088-3336『售楼中心』
网上售楼中心〢安全通话隐藏真实号码〢欢迎来电咨询〢
开发商售楼处直销_欢迎来电预约尊享内部折扣_匠心钜制恭迎品鉴〢
◆提前来-预约登记尊享售楼处1v1销售专业讲解〢一对一热情服务〢
◆温馨提示:售楼中心〢预约可享内部优惠〢匠心钜制-恭迎品鉴〢
免责声明:本宣传资料仅作为客户邀约邀请,不作为要约或者承诺,对本楼盘配套、交通、学校(建设)规划或者产品介绍,旨在提供相关信息,不意味着本公司对此作出承诺,相关内容不排除因政府相关规划、规定及开发商未能控制原因而发生变化,最终以政府相关部门审批文件为准
声明:本文由入驻焦点开放平台的作者撰写,除焦点官方账号外,观点仅代表作者本人,不代表焦点立场。
