2025 臻林天汇售楼处( 臻林天汇)首页网站| 臻林天汇欢迎您-楼盘详情-备案价-交楼时间-容积率
扫描到手机,新闻随时看
扫一扫,用手机看文章
更加方便分享给朋友
深圳【臻林天汇】
臻林天汇售楼处电话:400-088-3336【售楼中心】
致电售楼处了解更多信息,安全通话隐藏真实号码,请放心使用
网上售楼中心——疫情期间在线预约,错峰看房——匠心钜制恭迎品鉴

🔻地址:深圳市南山区南山大道与景兴路交汇处中山公园站C口50米
🔻占地面积:1万㎡
🔻总建面:11.8万㎡
🔻产权:40年(18-58年)
🔻总户数:508户(319户南塔130户+北塔189户)
🔻面积:113-252㎡2-4房
🔻车位比:465+235个1:1
🔻梯户比:南塔公寓3梯5户/北塔商办3梯4户
🔻价格:单价6-9万
🔻交楼标准:毛坯/精装
🔻物业公司:宁俊物业
🔻物业管理费:13.5元/㎡
🔻容积率:7.2
🔻绿化:30%
🔻交楼时间:现楼
🔻建筑类型:公寓
🔻层高:3.3-4米
🔻使用率:75%
🔻楼层高:南塔公寓34层127米,北塔商办32层131米
🔻栋数:2栋
🔻水电:商水(5.42元/立方)商电1.2元/度
🔻商业:0.7万㎡地铁接驳商业街
🔻学校:公寓可以积分(第三类积分70分:南头学校,荔香学校)
区域价值
前海之芯:最前沿+宜居极致人居,城市价值制高点
位踞前海深港合作区、高新区、后海、深圳湾及留仙洞总部群黄金原点,承接全市大量高净值人群的居住需求。
深圳地铁12号线起自左炮台,链接蛇口、南山中心区、宝安中心、航空城、大空港,终到海上田园东,链接了整个西部,为西部交通再一次锦上添花。
项目位于南山核心片区,周边就是科技园、深圳湾、后海、前海、留仙洞五大龙头高地环绕,可谓众星捧月、熠熠生辉,可见地理位置是非常的优越。
后海,着重发展总部经济和科创,是中国总部企业最为密集的地方之一,27块总部用地,聚集了华润集团、阿里巴巴、工商银行等80多家知名企业。
深圳湾,是全球高端产业的聚集地,不仅进驻了中信证券、招商银行、中兴通讯、神州数码等名企,更是聚集了中国互联网最牛气的几家巨头:腾讯、阿里、百度、今日头条、小米。
科技园,是整个中国高新技术企业最多、地均产值最高的科创中心,培育出了腾讯、华为、中兴、大疆等众多高科技龙头企业,并孵育出柔宇科技、菜鸟网络等一批独角兽企业,是中国硅谷。
西丽留仙洞,深圳最生机勃勃、蓄势待发的新晋总部基地,以战略性新兴产业为主导,未来将形成超3000亿元的产业集群。
产业、名企集聚,自然会吸引大量人才进驻,根据规划,这5大高地中,仅留仙洞总部基地规划就业人口就有15—18万,周边高新科技园及大学城规划就业人口则达60万。
周边配套
交通枢纽:双地铁上盖,立体交通拥全球未来
无缝接驳地铁12号线(建设中)、21号线(规划中)中山公园站,经深南大道、月亮湾大道,直通前海。前海交通枢纽,海、陆、空、轨四维立体交通,畅达粤港澳大湾区各大城市,连通国内国际生活。
臻林天汇售楼处电话:400-088-3336【售楼中心】
商业旗舰:极速尽享国际都市生活圈
华润万象天地、壹方城购物中心、欢乐海岸、华润深圳湾万象城、万象前海(规划中)从容抵达,邂逅世界前沿潮流。
三园二十四景:公园里,古城间,臻林内,悦享二十四景
臻林天汇立踞中山公园之上,“长在公园里的房子”,占据约49万㎡恒久城市绿肺。
天赋稀缺 | 公园绿地在城市的占位属于不可再生资源,城市开发使得可用性土地减少,也让公园地产倍显弥珍。
宜居属性 | 举步即至中山公园,有如业主休闲、游憩的私家后花园。公园植被造就富氧生活圈,为塔尖人士创造“住在公园”的乐活人生。
二十四景 | 禅意花园--日式园林,通过枯山水,石雕,特色植物,营造安静、祥和、归心之地;中山公园--城市绿洲,深圳历史最悠久、也是绿地面积最大的公园;文创园--南头古城,现为深圳十大特色文化街区之首。悦享三园二十四景。
艺术臻品:臻林艺境空间,城市精神符号
构筑艺术殿堂,同步全球美学创意灵感。定期举办艺术名家展览,思潮碰撞,让生活因艺术浸染而升华。
引入MUSTEL酒店,合景泰富旗下又一自持高端时尚潮流酒店,打造高端人居、社交娱乐、办公、酒店综合解决方案。
约7000㎡的地铁接驳商业,引进合景泰富集团旗下的著名购物中心品牌--悠方UFUN,将为深圳城市商业一道靓丽的风景线。
大师钜作:全球大师执笔,梦幻团队联袂
宽境视野:270°环幕观景,城市天际尽收眼底
产品设计融入城市景观及公园景观,端头明星户型打造270°宽景观面。远眺前海灯火辉煌、近揽中山公园至美画卷。
【113平户型图】
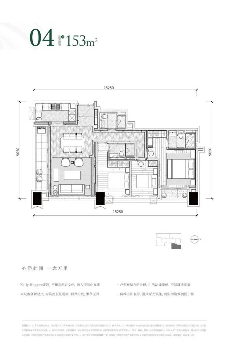
【153平户型图】
【188平户型图】
臻林天汇售楼处电话:400-088-3336【售楼中心】
免责声明:
1、以上部分图片素材源自网络,如有侵权,请联系我们删除;
2、本广告相关文字、图片以及建筑设计效果图是对项目所做的示意表现,仅供参考,最终标准详见政府相关部门批准文件,经政府批准的详细规划以销售现场公示为准,敬请查看;
3、本广告为要约邀请,买卖双方的权利以及义务以双方签订的合同为准。相关内容如有更新,请以最新资料内容为准。
声明:本文由入驻焦点开放平台的作者撰写,除焦点官方账号外,观点仅代表作者本人,不代表焦点立场。
