2025(深业世纪山谷)首页网站-深业世纪山谷欢迎您-深业世纪山谷楼盘详情/价格/户型
扫描到手机,新闻随时看
扫一扫,用手机看文章
更加方便分享给朋友
深圳「深业世纪山谷」
深业世纪山谷售楼处电话:400-088-3336【中介勿扰】
欢迎来电咨询,一对一专业服务
物业中心暂不接受临时到访客户,请提前预约!
4000883336
【项目十大价值点】
价值点1:深湾走廊,汇集一湾所向,于此深藏所有
深湾走廊,占位极致之地,立序时代中心,集总部经济/产业创新/生态绿洲/未来规划等发展势能于一身,形成立基于湾芯之上的超级价值走廊
①总部长廊·四大超级总部环绕——北有留仙洞总部基地,西有深圳湾高新区总部基地、后海总部基地,南接深圳湾超级总部基地,四大超核引擎环绕。
②科创长廊·领衔城市产业发展——大沙河科创长廊,汇集了全深圳2/3的高端研发人才、40%高新技术企业及60%的重点实验室和工程技术中心。
③焕新长廊·未来潜力无限澎湃——未来深圳最具想象力的约550万平“航母级“白石洲旧改,见证深圳迭代崛起,将以全新的姿态焕发出新的活力,擎领区域蝶变。
④生态绿廊·城市中心翡翠项链——约13.7KM绵延不息的大沙河生态长廊,勾勒出城市最靓丽的风景线,成就水、岸、城和谐共融的美好。
价值点2:五重复合自然景观,200万㎡果岭首排
坐拥有山/河/海/湿地/郊野五重自然景观资源,项目北望塘朗山、南向深圳湾、西临约200万㎡一线果岭,俯瞰约13.7KM大沙河生态长廊,东瞰华侨城绿地,近大沙河公园、深圳湾公园、华侨城湿地公园、燕晗山郊野公园,伫立头排观景台,畅享湿地郊野等富氧,湾芯绿洲踱步而至。
价值点3:立体多维交通体系 与世界无缝接轨
五轨四横三纵多枢纽:项目毗邻沙河东路,950米达深南大道;驾车1.5公里进入北环大道,坐拥城市交通主轴,与总部经济圈紧密相连,近邻地铁1号线白石洲站,1站到达高新园,周边五轨环绕,纵横湾区主场,从容通达世界。
价值点4:五大商圈层叠 世界风云交汇于此
位于目前全深圳最大的高端商业集中地,项目环享南山五大高端醇熟商圈,集休闲、娱乐、购物、人文、艺术资源于一身。一公里内便有益田假日广场、万象天地、京基百纳广场,车程不到十分钟即可到达欢乐海岸、深圳湾万象城商业。
价值点5:国际人文艺术交融 演绎峯层品位生活
与名商高尔夫、沙河高尔夫隔路相望,区域内拥有深圳最具代表性的人文艺术名片,一公里内可体验国际人文艺术的交融,临窗可观世界之窗烟花盛宴,三大国家级景区举步即可抵达,果岭挥杆的乐趣下楼即可体验
2大国家级5A景区:世界之窗,欢乐谷
5大文化艺术馆:何香凝美术馆、华美术馆、华侨城创意文化园、OCT当代艺术中心、深圳epc艺术文化中心
2大体育馆:华侨城体育文化中心、深圳湾体育馆
1个文化村:锦绣中华民俗文化村

价值点6:深业沙河十年沉淀 约39万㎡塔标综合体
深业沙河集团历时十年,构筑传世塔标综合体。项目总建面约39万㎡,是集南山核心区大平层住宅、高端商务公寓、国际商业等多元业态于一体的城市塔标综合体项目。

价值点7:约252米摩天地标,退而高耸进而精细
约252米深圳最高天际住宅,世纪山谷是深业沙河对城市的最高敬仰,也是深圳人层峯生活的迭代进阶,更是这座伟大城市专为世界前沿人物打造的的多元化生活方式目的地。
价值点8:集萃全球大师智慧 联袂匠造标杆之作
①建筑规划——华阳国际,其代表作包括恒裕深圳湾、深业上城(南区)、华润万象天地、恒裕前海金融中心、招商海上世界双玺花园等。
②室内设计——CCD 香港郑中设计事务所,其代表作包括深圳湾1号、恒裕深圳湾等;矩阵纵横,其代表作鸿荣源胤璞、华润前海中心等。
③园林设计——奥雅团队,北京首创天玺、上海阳光城檀悦101的同款设计单位。
价值点9:“流动的绿洲”园林景观,多维尊崇入户
项目延续大沙河生态长廊的绿意,园林景观、商业活动空间等“流动的绿洲”为景观主题,营造了兼容繁华与静谧的城市生活;奢华车库入户大堂、首层迎宾入户大堂、园林迎宾入户序厅、梯户归家前厅四维尊崇入户,定制您归家入户的每一步。
价值点10:高定奢装小户型公寓,世纪山谷首发传世藏品
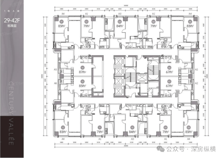
本期推售的约67-87㎡1-2房,均位于29层之上高区,享百米以上景观。70年产权,户户带阳台,拥有3.3m超舒适层高。室内公区、样板房均由CCD香港郑中设计事务所设计,将高级定制融入每一寸居住空间。

【户型信息】建面约67-87㎡湾岸资产

71㎡样板间VR(复制后在微信搜索框粘贴搜索转入):
https://open.realsee.com/ke/Lykj3NYWmK4DrG06/rLAKYmhaRHZ7BKp31GQbSNTOkre6SoJm/#lianjia


深圳「深业世纪山谷」
深业世纪山谷售楼处电话:400-088-3336【中介勿扰】
欢迎来电咨询,一对一专业服务
物业中心暂不接受临时到访客户,请提前预约!
免责提示:(1)本文有关项目的信息来源于网络,具体项目信息(包括规划建设指标、建造工艺、户型图、交付标准、房源价格、优惠信息等)应以开发商最终签署的《商品房买卖合同》及相关文件约定为准。(2)文章内图片仅供读者参考。(3)我们所转载的所有文章、图片、音频视频文件等资料版权归版权所有人所有,因非原创文章及图片等内容无法一一和版权者联系,如原作者或编辑认为作品不宜上网供大家浏览,或不应无偿使用,请及时通知我们,本网页如无意中侵犯了媒体或个人的知识产权,请来电告之,我们立即予以删除。
声明:本文由入驻焦点开放平台的作者撰写,除焦点官方账号外,观点仅代表作者本人,不代表焦点立场。
