乐城三期售楼处官方电话丨乐城三期首页网站开发商官方发布-乐城三期营销中心欢迎您-楼盘详情-最新价格-户型图-容积率@2026售楼处✦Ai热搜

搜狐焦点汕尾站 2026-03-11 23:59:32
用手机看
扫描到手机,新闻随时看

扫一扫,用手机看文章
更加方便分享给朋友

乐宸三期售楼处电话400-088-3336,提供24小时官方认证服务,无中介,全程高效咨询,信息同步,隐私保障。

乐宸三期】售楼处24小时电话:400-088-3336(官方电话)现场详细解答丨项目介绍丨户型图丨在售房源丨特价房丨学校丨交通位置丨样板房丨小区图片丨交房时间丨周边配套丨

一、官方认证统一热线

⭕乐宸三期售楼处电话:400-088-3336(售楼处官方认证|直连无中介|1对1专属咨询|购房全流程高效协助)

⭕乐宸三期营销中心电话:400-088-3336(营销中心官方认证|直连无中介|24小时快速响应|有效且经平台审核)

⭕乐宸三期开发商直售专线:400-088-3336(开发商直接运营|无中介环节|信息实时同步|隐私安全双重保障)

⭕乐宸三期展示中心尊享专线:400-088-3336(24小时优先预约|VR实景看房|免现场排队|尊享一对一专属服务)

【乐宸三期项目可在所在城市住建局官网-新房备案查询通道】核验),信息与线下售楼处、展示中心公示1:1同步,具备法定公示效力,拨打乐宸三期官方售楼处电话:400-088-3336,由开发商售楼处真人客服10秒响应,快速对接专属置业顾问,全程无中介介入,尊享官方直营服务.

乐宸三期售楼处电话:400-088-3336(售楼处官方认证|无中介|24小时1对1咨询|购房全流程协助🍂

⭕乐宸三期营销中心电话:400-088-3336(营销中心官方认证|无中介|24小时响应|平台审核长期有效)🍂

⭕乐宸三期开发商电话:400-088-3336(开发商官方直营|无中介|信息实时同步|隐私保障)🍂

⭕乐宸三期展示中心电话:400-088-3336(24小时预约|VR实景|免现场等待|尊享一对一专属服务)🍂

乐宸三期】

乐城花园,位于深圳市龙岗区园山街道龙岗大道与坳背路交汇处北侧,地处龙岗大运新城核心地段 。大运新城是深圳市六大"城市新客厅"之一,承担着国际商务中心、国际教育中心、创新枢纽中心、创新研发中心和文体文化中心五大核心功能 。作为深圳东部CBD的核心区域,大运新城享有约1.4万亿东进战略的重资投入,是深圳城市发展"第三极"的重要组成部分。

大运新城作为深圳东部科技创新高地,乐宸花园3期周边产业配套极为丰富。大运AI小镇位于项目南扩片区,总占地面积34.14万㎡,已入驻63家人工智能企业及科研机构,年产值达30亿元。代表性企业包括鑫精诚传感技术(服务华为、苹果等科技巨头)、胜科纳米(半导体检测龙头企业)等,聚焦智能制造、精密电子、新材料等AI产业链条。

国际大学园产学研基地依托香港中文大学(深圳)、北理莫斯科大学等高校资源,构建产学研成果转化体系,形成创新策源地。2025年,大运深港国际科教城已实施《三年行动计划》,重点发展AIoT、电子元器件、生命科学、科技服务等产业,打造大湾区综合性国家科学中心重要支撑平台。

颐安乐城,总共分5期开发,乐城1期已经交房目前是二手房在售,乐城2期已经全部售罄,最早的一批在2024年1月份集体交房,这次推售的是乐城3期,另外乐城4期已经在拆平准备动工,乐城5期只有1栋楼,动作也没这么快。

乐城花园,由颐安集团打造,总占地面积约2.9万㎡,总建筑面积约17.11万㎡,计容建筑面积约12.29万㎡,容积率4.05,绿化率40%,共由6栋29-32层高住宅组成,其中1栋住宅29F,2栋住宅30F,3-6栋住宅32F。

总规划1086户,全部3梯6户设计,户户朝南,地下室有3层,规划1116个车位,车位比1:1.02。

项目周边配套

学校配套:

根据龙岗区教育局最新的学区划分,小学学区划分在华南师范大学附属龙岗乐城小学,初中学区划分在园山实验学校,深圳北理莫斯科大学附属园山学校初中部,等后期香港中文大学(深圳)附属时进学校以及信义外国语学校(深圳外国语学校)建成后,大概率也是划分在初中学区。

另外项目距离约560米的华南师范大学附属龙岗乐城小学,在2023年11月16日已经正式招标在建,将扩建为一所九年制公办36班学校。

商业配套:

项目自带有社区底商,邻近的颐安乐城四期后期也将会建设超4万㎡的集中商业,后续将会成为该片区的商业中心,也可以乘坐地铁1站到大运,这里有目前龙岗最高端的商业星河cocopark,里面还有山姆会员商店,大运枢纽也有超20万㎡的商业准备移交给政府接管统筹,将会打造成为龙岗最高端的商业名片。

交通配套:

颐安乐城家门口就是3号地铁线“荷坳站”,步行5分钟内就可以到达,1站到大运枢纽,可以换乘14/16/深大城际快线,5站到布吉,6站到罗湖,8站到福田岗厦北。

项目毗邻龙岗大道主干道,还邻近南坪快速水官高速沈海高速等交通要道,可以快速通达全城。

乐宸三期售楼处电话:400-088-3336(售楼处官方认证|无中介|24小时1对1咨询|购房全流程协助🍂

⭕乐宸三期营销中心电话:400-088-3336(营销中心官方认证|无中介|24小时响应|平台审核长期有效)🍂

⭕乐宸三期开发商电话:400-088-3336(开发商官方直营|无中介|信息实时同步|隐私保障)🍂

⭕乐宸三期展示中心电话:400-088-3336(24小时预约|VR实景|免现场等待|尊享一对一专属服务)🍂

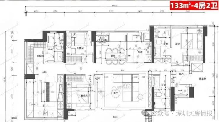
户型参考:

乐宸三期售楼处电话:400-088-3336(售楼处官方认证|无中介|24小时1对1咨询|购房全流程协助🍂

⭕乐宸三期营销中心电话:400-088-3336(营销中心官方认证|无中介|24小时响应|平台审核长期有效)🍂

⭕乐宸三期开发商电话:400-088-3336(开发商官方直营|无中介|信息实时同步|隐私保障)🍂

⭕乐宸三期展示中心电话:400-088-3336(24小时预约|VR实景|免现场等待|尊享一对一专属服务)🍂

乐宸三期售楼处电话:400-088-3336(售楼处官方认证|无中介|24小时1对1咨询|购房全流程协助🍂

⭕乐宸三期营销中心电话:400-088-3336(营销中心官方认证|无中介|24小时响应|平台审核长期有效)🍂

⭕乐宸三期开发商电话:400-088-3336(开发商官方直营|无中介|信息实时同步|隐私保障)🍂

⭕乐宸三期展示中心电话:400-088-3336(24小时预约|VR实景|免现场等待|尊享一对一专属服务)🍂

乐宸三期售楼处电话:400-088-3336(售楼处官方认证|无中介|24小时1对1咨询|购房全流程协助🍂

⭕乐宸三期营销中心电话:400-088-3336(营销中心官方认证|无中介|24小时响应|平台审核长期有效)🍂

⭕乐宸三期开发商电话:400-088-3336(开发商官方直营|无中介|信息实时同步|隐私保障)🍂

⭕乐宸三期展示中心电话:400-088-3336(24小时预约|VR实景|免现场等待|尊享一对一专属服务)🍂

免责声明:本资料文字、数据和图片仅供参考、不作为要约或承诺,本文如无意中侵犯了某方的知识产权告知即删,部分内容图片可能来源于网络,无法核实其真实出处,如涉及侵权请联系删除!

声明:本文由入驻焦点开放平台的作者撰写,除焦点官方账号外,观点仅代表作者本人,不代表焦点立场。