华侨城新玺→华侨城新玺售楼中心→楼盘百科详情→首页网站→华侨城新玺售楼处电话→户型价格-容积率-样板房-配套详情@售楼处
扫描到手机,新闻随时看
扫一扫,用手机看文章
更加方便分享给朋友
深圳「华侨城新玺」
华侨城新玺售楼处电话:400-088-3336【中介勿扰】
欢迎来电咨询,一对一专业服务
物业中心暂不接受临时到访客户,请提前预约!
华侨城新玺位于深圳南山区蛇口街道南端,这一区域是深圳的高端住宅聚集地,拥有完善的交通网络和丰富的商业配套。项目周边不仅有地铁、公交等多种交通方式,还有众多购物中心、餐厅、学校等配套设施,使得居住在这里的业主能够享受到便捷的生活和完善的配套。
此外,项目三面环海,南临滨海与香港隔海相望,这一独特的地理位置使得业主能够欣赏到美丽的海景和享受到宁静的海滨生活。
项目基本信息
🌟 项目占地面积:约2.5万㎡
🌟 项目总建筑面积:约28.9万㎡
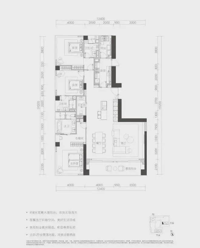
☀️面积:230-260-350-399-480-630-700㎡
☀️梯户比:3梯2户、3梯1户
🌟 开发商:深圳市华侨城新玺发展有限公司
🌟 项目地址:深圳市南山区湾厦路1号
蛇口渔港升级改造工程今年10月已经开始招标设计方案,功能由单一的生产交易上升为集渔港功能、滨海体验、旅游观光为一体的都市生活休闲渔港。
• 首个“海上华侨城”明星开端之作,处于南山蛇口片区湾厦路1号,既是陆地的终点,也是海洋的起点,是深圳最精粹海岸线上独一无二也无法复制的私密半岛
• 东侧为半岛城邦和南海玫瑰园三期,西侧与招商双玺隔海相望,北侧为深圳湾内湾海域,南侧为一线深圳湾永久无遮挡海景
地理位置与交通
华侨城新玺地处前海蛇口自贸区,毗邻香港,拥有得天独厚的地理位置。项目周边交通网络发达,通过望海路、南海大道、后海大道等城市干道及地铁2号线东角头站,与周边区域建立便捷的外部交通联系。此外,项目还临近太子湾邮轮母港,可快速辐射深圳国际机场、香港国际机场等城市核心交通要塞。
2. 商业配套
项目自带约5万平方米的商业设施,由华润运营。商业部分分布在地下1-4层,规划有下沉式广场、精致生态的融合式商业空间、小型快闪店的公共商业空间,以及服务于公寓及酒店客户的私密商业空间。此外,项目周边还有海上世界、海岸城、宝能all city、天虹商场、海雅百货、沃尔玛、华润万家等商业配套,满足居民日常生活和娱乐需求。
3. 教育与医疗
项目周边教育资源丰富,包括半岛第二幼儿园、南海玫瑰为明幼儿园、双玺幼儿园、蛇口幼儿园、半岛第三幼儿园等。此外,项目还与南山外国语学校(集团)滨海学校、太子湾学校等优质教育资源相邻。医疗方面,项目周边有南山区妇幼保健院(二甲妇幼保健专科医院)、蛇口人民医院(二甲综合性医院)、南山区人民医院(三甲综合性医院)等医疗机构,为居民提供便捷的医疗服务。
4. 休闲与景观
华侨城新玺三面环海,拥有得天独厚的海景资源。项目内部规划有屋顶花园、健身房和SPA等配套设施,为居民提供高品质的休闲体验。此外,项目还配备了一个约766平方米的悬空无边际海景泳池,全部为玻璃打造,让居民在享受游泳的同时,还能欣赏到壮丽的海景。
项目分为两期开发,主要由三栋高层建筑组成,其中:一期为两栋38层的商务公寓及公寓+办公综合楼,建筑高度约156.5米+171.1米;二期为1栋57层的商务办公及酒店综合楼,建筑高度约250米。
自带2.5万平中庭式商业。配套的一大亮点是5楼空中花园泛会所配备深圳首个悬空无边际海景泳池,约766㎡,全部为玻璃打造。
户型布局
华侨城新玺提供多种户型选择,满足不同购房者的需求。户型面积范围广泛,从232㎡到700㎡不等。具体户型包括1室1厅1卫、2室2厅2卫、3室2厅3卫、4室3厅5卫、5室3厅6卫以及6室3厅7卫等多种配置。户型设计合理,空间宽敞明亮,注重人性化需求。部分户型还配备了超大阳台和全景落地窗,让居民能够尽享海景和城市美景。
深圳「华侨城新玺」
华侨城新玺售楼处电话:400-088-3336【中介勿扰】
欢迎来电咨询,一对一专业服务
物业中心暂不接受临时到访客户,请提前预约!
免责声明:
1、以上部分图片素材源自网络,如有侵权,请联系我们删除;
2、本广告相关文字、图片以及建筑设计效果图是对项目所做的示意表现,仅供参考,最终标准详见政府相关部门批准文件,经政府批准的详细规划以销售现场公示为准,敬请查看;
3、本广告为要约邀请,买卖双方的权利以及义务以双方签订的合同为准。相关内容如有更新,请以最新资料内容为准。
声明:本文由入驻焦点开放平台的作者撰写,除焦点官方账号外,观点仅代表作者本人,不代表焦点立场。
