翰熙典居(深圳)首页网站丨翰熙典居楼盘详情_房价_户型_详情
扫描到手机,新闻随时看
扫一扫,用手机看文章
更加方便分享给朋友
深圳【翰熙典居】
开发商售楼处电话咨询/预约热线:400-088-3336【售楼中心】24小时热线
深圳【翰熙典居】售楼处电话:400-088-3336【营销中心】中介勿扰
深圳翰熙典居楼盘详情介绍,包含售楼处电话、地址、户型图、小区图片、区位优势、交通、周边商业配套等楼盘详细资料;更详细楼盘资料和最新折扣价格,请拨打售楼处电话,销售会为您详细介绍楼盘。
🔻开发商:深圳市枫叶国际集团有限公司
🔻地址:位于南山于南山区粤海街道白石路与学府路交叉口西北侧
🔻占地面积:总占地4.16万,1.4万㎡(02地块)
🔻总建面、总占面 51.6万 5.16㎡万㎡
🔻产权:70年(23-93年)
🔻面积:105-140㎡3-4房
🔻价格:9-11万
🔻交楼标准:精装
🔻物业公司:深圳市丹枫物业管理有限公司
🔻物业管理费:6.5元/㎡
🔻容积率:8.5
🔻绿化:35%
🔻交楼时间:预计27年12月
🔻车位 1:0.85
🔻建筑类型:住宅
🔻层高:3米
🔻使用率:接近100%
🔻楼层高:51-53层
🔻栋数:4栋
🔻水电:民水民电
🔻学校:项目规划1所12班制幼儿园,西侧红线外规划1所30班小学,南二外学府一小,南二外学府中学
🔻户型价格:预计9-11万
105㎡3房2卫
120㎡3+1房2卫
140㎡3+1房2卫
平面•户型图

深圳【翰熙典居】售楼处电话:400-088-3336【营销中心】中介勿扰
项目总投资83.56亿元,分三期开发,总占地约7万㎡,总建面约36.9万㎡,包含住宅约25万㎡,商办及酒店约10.6万㎡。整个项目有约3030套住宅,包括商品房714套(占比23%)、保障房791套、回迁房1525套,车位共2600个。
另外,项目还有规划近12620㎡的公共配套设施、3200㎡ 的12班幼儿园、占地面2900㎡公交首末站等,并配建占地面积1500㎡的社区体育活动场地。

深圳【翰熙典居】售楼处电话:400-088-3336【营销中心】中介勿扰
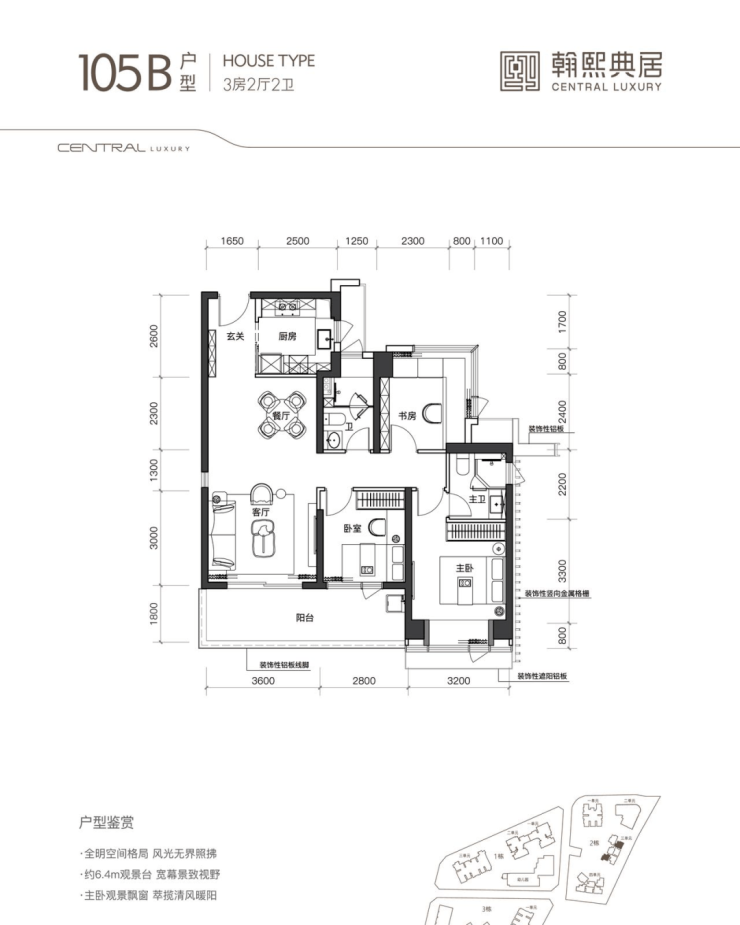
建面约105㎡的3房2厅2卫
经典的双龙抱珠布局,主人空间与客卧空间互不干扰,具备私密性优势。并且户型方正,实用三房两厅两卫。朝南向四开间面宽共约 13.2m,全明空间,采光极佳。这个户型含赠送半阳台和飘窗的面积后使用率可达约 83%,这在超高层中是比较高的使用率。
本次首推的 02 地块 ,户型有这个双龙抱珠的,还有一个户型是竖厅格局,各有优势,看个人喜好选择。

深圳【翰熙典居】售楼处电话:400-088-3336【营销中心】中介勿扰

深圳【翰熙典居】售楼处电话:400-088-3336【营销中心】中介勿扰

深圳【翰熙典居】售楼处电话:400-088-3336【营销中心】中介勿扰
建面约120㎡的3+1房2厅2卫,
户型为大三房两厅两卫,东南朝向,含赠送半,阳台和飘窗等平台部分后使用率可达约 88%左右,这在超高层中是非常高的使用率。其中主客卧、客厅、双阳台合计开间超 12m,大尺度四面宽朝南,带约 6.15 米奢阔观景台,堪比一线豪宅的观景尺度;主卧超奢阔大套房,且预留了室内后期业主自行改造的灵动空间。

深圳【翰熙典居】售楼处电话:400-088-3336【营销中心】中介勿扰

深圳【翰熙典居】售楼处电话:400-088-3336【营销中心】中介勿扰
建面约140㎡的3房2厅2卫
该户型为 02 地块的唯一一条腿,非常稀缺。户型南北通透,带大主卧套房的奢居型三房。带 5.4m 观景台,大横厅奢阔空间设计,主卧同客厅阳台、餐厅三面宽朝西南。北向双次卧、双卫生间、拓展空间共五面宽一字排开,视野全面俯瞰社区内园林,静谧舒适。

深圳【翰熙典居】售楼处电话:400-088-3336【营销中心】中介勿扰
翰熙典居总占地70224㎡(相当于10个标准足球场大小),定位是打造集居住、商业、办公、酒店及公共配套设施为一体的综合社区。
项目开发建设用地41660㎡,容积率8.9,计容建筑面积369100㎡,包含住宅249950㎡(含人才住房和保障性住房32500㎡),商业、办公及旅馆业建筑106530㎡(含商业文化设施不低于5330㎡)。
另外,项目还有规划近12620㎡的公共配套设施、3200㎡ 的12班幼儿园、占地面2900㎡公交首末站等,并配建占地面积1500㎡的社区体育活动场地。
分三个地块建设

深圳【翰熙典居】售楼处电话:400-088-3336【营销中心】中介勿扰
01地块,规划总建面约17.3万㎡,容积率9.28。规划住宅建面约8.9万㎡,商业建面约3.2万㎡。
规划为3栋超高层塔楼住宅+幼儿园,1栋一、二单元193米55层,1栋三单元为保障房157米44层。
规划1038套,其中保障房612套+回迁179套+可售247套,停车位834个。
02地块,规划总建面约16万㎡,容积率9.12。规划住宅建面约8.37万㎡,商业建面约1万㎡,办公面积约1.7㎡。
规划为4栋超高层塔楼,2栋一单元住宅174米53层,2栋二单元办公130米27层,2栋三单元住宅168米51层,2栋4单元住宅175米53层。
规划872套,其中回迁544套+可售328套,停车位747个。
03地块,规划总建面约17.6万㎡,容积率11.44。规划住宅建面约7.65万㎡,商业建面约1.5万㎡,办公面积约0.6万㎡,酒店约1.9万㎡。
规划为3栋超高层塔楼,3栋一单元住宅174米53层,3栋二单元住宅178米53层,3栋三单元办公+酒店170米36层。
规划1120套,其中回迁981套+可售139套,停车位1019个。
区域•地段
科创中心丨擎领世界的粤海雄心
世界四大湾区唯有粤港澳大湾区和旧金山湾有全球科创中心的发展定位。粤海作为粤港澳大湾区核心引擎,依托于重点院校、科创孵化、世界领军企业,成为对标阿瑟顿镇的深圳至臻人居价值版图

深圳【翰熙典居】售楼处电话:400-088-3336【营销中心】中介勿扰
粤海集萃腾讯、大疆等世界五百强企业,汇聚1600余家国家高新技术企业、百余家上市公司,驱动逾千亿年产值,2024年GDP约4500亿元。

深圳【翰熙典居】售楼处电话:400-088-3336【营销中心】中介勿扰
矜贵恒产丨问鼎全球的人居高地
粤港澳大湾区——粤海街道,以科技南及后海、深圳湾片区为代表,代言湾区时代地标封面,问鼎深圳至臻人居价值版图
深圳湾1号(二手房价约20-32万/㎡)
华润深圳湾悦府(约19-20万/㎡)
华润城润玺二期(约16-18万/㎡)

深圳【翰熙典居】售楼处电话:400-088-3336【营销中心】中介勿扰
深湾CBD丨时代粤海的蝶变新章
深湾CBD立足南山区“双核”战略核心,串联科技园、后海、深超总、深圳中央公园,聚合金融、科技、人文生态超级闭环,以多维战略产业叠加,重塑粤海价值天际线。翰熙典居,是继华润城之后深湾CBD又一人居地标之作,以时代中心之上的奢居基因,铸就跨越周期的矜贵人居恒产

深圳【翰熙典居】售楼处电话:400-088-3336【营销中心】中介勿扰
贵脉源点丨全维中心的奢居地标
翰熙典居占位深圳经济命脉滨海大道与南北科创主轴南海大道交汇处十字轴心。集萃城市区位、科创、人文、TOD四大中心源点。依托两大科技园、四大总部基地,集总部经济+全球科创中心价值,坐享区域发展利好。
交通配套
轨道交通-双地铁枢纽地铁上盖TOD:9/15号线地铁上盖TOD,无缝连接9/15号线深大南站,9号线2站高新园、3站超总湾、4站达大前海区域,“深圳黄金内环”15号线(在建中)预计2028年开通。
道路交通——四横三纵立体路网,四横有滨海大道、深南大道、北环大道、学府路;三纵有南海大道、后海大道、白石路出行,多主干道快速分流,畅达全城。项目直线距离蛇口码头约6.7公里,直线距离宝安国际机场也仅约15公里。
城际铁路——近距离通达双城际线。深惠城际(在建中,预计2026年通车,项目3km至怡海/鲤鱼门站)、穗莞深城际线(在建中,预计2025年通车,项目3.8km至前海站/超级总部站)。
(*以上所有交通规划最终通车时间以政府最新工程进度落实为准)

深圳【翰熙典居】售楼处电话:400-088-3336【营销中心】中介勿扰
学校 医疗
优教护航丨全龄教育环伺 赋写下一代美好未来
幼儿园:项目自带1所12班制幼儿园
小学:西侧规划有1所30班小学(地块红线外)、南二外学府一小
中学:南二外学府中学、深圳南山中加学校
大学:深圳大学,全国十大最美校园
(周边教育设施如有变动,以南山区教育局最新颁布政策为准)

深圳【翰熙典居】售楼处电话:400-088-3336【营销中心】中介勿扰
项目内规划1所3200㎡12班制幼儿园
项目西侧红线外规划有1所30班小学
处南二外学府一小和南二外学府中学学区范围内,直线距离500米范围内有省一级学校深圳南山中加学校(学区范围如有变动,以南山区教育局最新颁布政策为准)
紧邻深圳大学粤海校区、沧海校区,全国十大最美校园,全国优质学府

深圳【翰熙典居】售楼处电话:400-088-3336【营销中心】中介勿扰

深圳【翰熙典居】售楼处电话:400-088-3336【营销中心】中介勿扰
开车10-20分钟可达太【子湾国际医院】【蛇口人民医院】【南山妇幼保健院】、【南山区人民医院】、【中南大学湘雅二医院】南方医科大学深圳医院,南山区人民医院,深圳大学医院,广州中医药大学第一附属医院南山医院,深圳沙河医院,香港大学深圳医院

深圳【翰熙典居】售楼处电话:400-088-3336【营销中心】中介勿扰
商业•配套
举步即达30万㎡海岸城商圈:深圳的滨海特色商业;15min车行达顶奢商业8万㎡深圳湾万象城;潮流先锋23万㎡万象天地:深圳潮流人文特色商业。除三大尖端商圈,周边更有8.5万㎡后海汇(Z世代硬核生活Mall)、24万㎡鹏润达商业广场、39万㎡来福士广场、7万㎡茂业百货(日常居家商业)等超大型商业。

深圳【翰熙典居】售楼处电话:400-088-3336【营销中心】中介勿扰
海岸城(图源网络)

深圳【翰熙典居】售楼处电话:400-088-3336【营销中心】中介勿扰
休闲•生态
人文中心丨百年人文印记 桂脉传承不息 桂庙新村,传承百年城市人文底蕴,是粤海科创产业的时代摇篮、深大学子的后花园,也是深圳奇迹的源点。从桂庙新村到翰熙典居,一脉城市向上的繁心,为於此

深圳【翰熙典居】售楼处电话:400-088-3336【营销中心】中介勿扰
5重生态丨山/湖/园/海/湾 聚揽城市一湾风华
1山1湖:深圳大学杜鹃山、文山湖
4公园:荔香公园、文心公园、科技公园、深圳人才公园
1深大后花园
1海湾:约15公里深圳湾滨海长廊

深圳【翰熙典居】售楼处电话:400-088-3336【营销中心】中介勿扰
(项目规划连廊直通深大,中国十大最美校园之一。该天桥为方便深大师生进出而设置,后期具体人员进出管理以深圳大学有关规定为准)

深圳【翰熙典居】售楼处电话:400-088-3336【营销中心】中介勿扰
9大城市级人文峯层配套,咫尺亲子休闲好时光。
深圳湾体育中心、保利剧院、南山书城、南山图书馆、南山文体中心、南头古城、南山博物馆、粤海街道文体中心、深圳湾文化广场。
小区•品质
翰熙典居丨逾50万㎡地标级奢居综合体
集住宅、商业、办公、酒店等业态于一体。项目自带约1.9万㎡精奢时尚酒店、约5.7万㎡未来潮流街区(以后期实际运营为准)、约1.26万㎡公共配套,多维配套迭新粤海人居想象。

深圳【翰熙典居】售楼处电话:400-088-3336【营销中心】中介勿扰
质匠高定丨集聚一流大师 匠造雅质奢宅
翰熙典居联袂华汇设计、迈丘设计、CCD(香港郑中设计事务所)等国际国内大师,匠制三重归家礼序,打造美学园林及品质公区,成就卓尔不凡的超感生活

深圳【翰熙典居】售楼处电话:400-088-3336【营销中心】中介勿扰
流线之幕 | 幕墙集成系统
静雅奢华风格延续奢宅风貌,历久弥新的品质凝练

深圳【翰熙典居】售楼处电话:400-088-3336【营销中心】中介勿扰
盛世翰韵 | 新东方都市风格园林
度假式无边际泳池,樱花大道、无界人文街区

深圳【翰熙典居】售楼处电话:400-088-3336【营销中心】中介勿扰
逐光之旅 | 大师高定艺术公区
以超脱酒店的艺术手法,构筑雅静空间,大堂墙面高端用材,精心雕琢尊崇归家仪式感

深圳【翰熙典居】售楼处电话:400-088-3336【营销中心】中介勿扰
奢阔空间丨中心极境 礼献粤海
翰熙典居,粤海十年之后再上新,全新奢居综合体礼献峯层。可售主力户型新规后建面约105-140㎡奢雅空间,全明方正户型将空间奢阔感与生活舒适度完美契合。明星户型超6米阳台开间,全维度巨幕景观视野,尽揽湾心万千风景

深圳【翰熙典居】售楼处电话:400-088-3336【营销中心】中介勿扰
枫叶集团丨深耕核心区 专注城市更新与运营
枫叶集团,聚焦地产开发、资产运营、物业服务三大核心业务。秉承“以心筑新,至臻至善”发展理念,以深圳南山、宝安等核心区为原点,致力于深圳核心的城市更新与运营。已开发地产物业逾百万方,待开发土地储备逾百万方。
翰熙典居,逾50万㎡地标级奢居综合体,2025年深圳市重大建设项目之一。项目三个地块一次性整体开发,彰显枫叶集团雄厚实力,及打造中心人文奢宅、城市地标之作的恢弘之志。
深圳【翰熙典居】售楼处电话:400-088-3336【营销中心】中介勿扰
深圳【翰熙典居】
开发商售楼处电话咨询/预约热线:400-088-3336【售楼中心】24小时热线
深圳【翰熙典居】售楼处电话:400-088-3336【营销中心】中介勿扰
深圳翰熙典居楼盘详情介绍,包含售楼处电话、地址、户型图、小区图片、区位优势、交通、周边商业配套等楼盘详细资料;更详细楼盘资料和最新折扣价格,请拨打售楼处电话,销售会为您详细介绍楼盘。
免责声明:
以上所发布的关于楼盘相关图文信息仅供您买房前参考,以上所有关于本楼盘的图文资料及说明请以最终以项目批文及双方在楼盘营销中心现场签署的买卖最终合同为准;本图文内容如无意中侵犯到某方权益,请联系我们将会及时处理!
声明:本文由入驻焦点开放平台的作者撰写,除焦点官方账号外,观点仅代表作者本人,不代表焦点立场。
