中集前海国际中心售楼处电话→深圳-中集前海国际中心售楼中心首页网站→楼盘图文详情
扫描到手机,新闻随时看
扫一扫,用手机看文章
更加方便分享给朋友
深圳【中集前海国际中心】
中集前海国际中心售楼处电话:400-088-3336(营销中心)
如有问题欢迎来电咨询,来电即可享受买房优惠!
预约来电尊享内部优惠,可预约案场内部销售人员,专业一对一热情服务。
4000883336
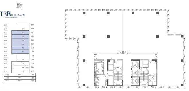
中集前海国际中心 独栋总部T3B栋
T3B栋建面:10345㎡(办公17本证、商业2本证)
T3B售 价:约8.**亿
一企一栋、大道首排、屋顶露台
◆首排昭示:前海形象大道首排,视界无界
◆极致稀缺:前海核心15平方公里,稀缺可售独栋
◆低密花园:花园式办公,屋顶露台生态盎然
◆专属冠名:一企享一栋,尊享独立冠名权
◆灵活定制:根据总部企业需求,灵活定制空间
中集前海国际中心位于前海中心腹地,总建面约46万㎡国际产城融合综合体,5号线前湾站,9号线梦海站双地铁口接驳,容积率仅4.8,前海惟一。
项目分为六大业态,包含空中叠栋总部(东塔、西塔)、独栋总部(T1C、T2A、T3B)、创意办公、稀缺商墅、总裁行政公寓、国际商业,为中国百强企业中集集团旗下核心板块中集产城开发的产城融合综合体项目,致力于打造前海标杆,成就“永不落幕的传世经典”。
项目分两期开发,总投资约99.6亿元,将于2025年12月整体竣工。目前已入驻企业有中集产城、中乔体育。
项目基础信息
项目位置:深圳市南山区前海合作区前海大道与梦海大道交汇处
T3B栋建面:10345㎡(办公17本证,商业2本证)
T3B售 价:约8.**亿
办公面积:10208㎡
商业面积:412㎡
大堂高度:10米(约300㎡)
总 楼 层:13层(地下三层),总高约65米
标准层面积:1100㎡
标准层高:4.5米,局部挑高9米
电梯配比:通力品牌电梯,3部客梯+1部消防梯,候梯时间不超过30s
物业公司:中集物业
管 理 费: 48元/㎡(含空调)
实 用 率:67 %(不含赠送、➕赠送使用率100%)
车位比例:1000:1
产权:2015-2055(40年产权),商业用地
交付时间:预计2025年中下旬
楼板承重:约300公斤,局部可加重
网格地板:高150mm
空调系统:集中供冷,风机盘管与新风系统
供电系统:二线合环20KV系统,年均停电不超过25分钟
承建单位:中建三局
抗震设防烈度:7度
玻璃幕墙抗风压性能等级:4级
开 发 商:深圳集城实业发展(深圳)有限公司
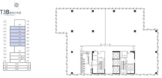
标准层6-11F平面图
【区域位置优越】前海中心腹地,前海大道首排昭示:前海大道一前海主形象大道,是领导视察必经之路,项目占据前海大道约1/4展示界面。同时项目位于前海精神坐标“前海石”和“前海国际会议中心”中轴位置,可以实时见证国家外交盛事。前瞻国家大势和全球经济走向。
【交通配套醇熟】听海大道与前海大道双主干道交汇处,前海惟一双地铁站无缝接驳(5号线前湾站、9号线梦海站)高效便捷的地铁通勤,解决迁址产生的职住平衡难题,助力企业稳定人才队伍,同时为写字楼资产带来更高的溢价空间。
【低密办公环境】4.8低密容积,空中露台、屋顶花园、灵动多功能空间
两层挑高空中花园,专属空中屋顶生态庭院,云端私密商务交流。
灵动空间组合,满足企业空间拓展需求(如:企业路演、发布和庆典活动),体现设计感与创意感。
【总部冠名权】一企一栋,尊享专属冠名权,企业最佳名片
【专属空间权益】独享大堂、电梯,独立总裁车位,彰显企业实力专属形象大堂、智能派梯高效便利
项目致力于打造成前海惟一总部集群,目前,“中国产业园区运营商10强”中集产城和“中国运动领军品牌”中乔体育已入驻,未来,这里将是总部圈层名企品牌展览、精英消费的首选目的地。
4.8低容积率,都市花园漫游体验
前海已建成综合体容积率约8.0-13.6,4.8容积率仅此一家。项目内享中央绿轴公园,外拥52万方桂湾公园,营造漫步天然氧吧的商务办公和消费体验,更受企业和高端顾客青睐。
强大国资,为资产安全保驾护航
中集产城,园区运营专家,独特的产业园区运营优势,吸引名企入驻,给予商户更多专业支持。母公司中集集团,2022《财富》中国500强第84位,强大资金实力,硬核稳交付。
商墅8大核心优势速览
优势一
可商可办·多功能使用场景
可做商用,如作为苹果等高端品牌旗舰体验店;也可作为独角兽企业的办公、路演、会展等多功能商务场地;亦或高端私人银行、家族办公室,专为高净值家庭提供全方位财富管理和家族服务,使其资产长期发展。
优势二
独立门面形象·独家标牌标识
预留店面招牌,作为商用:为经营的商户带来独立广告权益和品牌展示;作为办公:为提升入驻企业带来长期广告效应,塑造高端商务形象。
优势三
高拓展空间·栋栋带露台
超高拓全形态商墅,双首层立体空间,阔绰柱间距,灵活商务格局,使用率可达82%。专属空中露台,满足休闲、路演、聚餐多功能办公和消费场景。
优势四
空中连廊·多入口导入客流
地下空间联通地铁站、公交始末站,空中连廊通达独栋办公、约8万㎡商业,互联互通设计,工作和生活随心切换,且可为商墅多入口引流。
优势五
预留餐饮条件·星级餐厅规划
内部预留燃气管道,天台规划油烟机,规划布局合理,可做通吃前海精英消费力的高端餐饮。
优势六
单层高约5.4米,适配各类商业、办公的业态经营需求,营造舒适宽敞、格局大气的办公消费场景。
优势七
红本现楼·即买即用
独立红本,T2B、T2C现楼交付在即,即买即可收益,加速资产价值变现。
优势八
全落地窗采光·沐浴四季阳光
落地窗设计,配置夹胶中空LOW-E安全节能玻璃,降噪/节能效果俱佳,无遮挡对望户外风景,引领全新商务和消费体验。
房源优势:
► 中集前海国际中心T3独栋◄
前海核心区的低密生态亲地总部,占据桂湾河首排,独享空中屋顶露台,无遮挡景观视界,单栋建面约10000㎡,为世界总部级企业度身而制。
► T3独栋优势概览◄
【首排昭示】前海形象大道首排,无遮挡景观视野;
【极致稀缺】前海核心区15平方公里,稀缺租赁独栋;
【低密花园】花园式办公,屋顶露台生态盎然;
【专属冠名】一企享一栋,尊享独立冠名权;
【灵活定制】根据总部企业需求,灵活定制空间。
► T3独栋六大超体效应◄
〔名企效应〕独立冠名权。对外展示的优质名片,独立广告权益,前海核心位置的高曝光度,让企业形象脱颖而出。专属企业封面展示,塑造总部高品味商务形象。
〔提速效应〕尊贵专属体验,私密高效办公
〔低碳效应〕绿色三星建筑
〔灵动效应〕灵动延展空间
〔圈层效应〕前海国际总部圈层
〔增值效应〕独栋增值力
深圳【中集前海国际中心】
中集前海国际中心售楼处电话:400-088-3336(营销中心)
如有问题欢迎来电咨询,来电即可享受买房优惠!
预约来电尊享内部优惠,可预约案场内部销售人员,专业一对一热情服务。
免责声明:
1、以上部分图片素材源自网络,如有侵权,请联系我们删除;
2、本广告相关文字、图片以及建筑设计效果图是对项目所做的示意表现,仅供参考,最终标准详见政府相关部门批准文件,经政府批准的详细规划以销售现场公示为准,敬请查看;
3、本广告为要约邀请,买卖双方的权利以及义务以双方签订的合同为准。相关内容如有更新,请以最新资料内容为准。
声明:本文由入驻焦点开放平台的作者撰写,除焦点官方账号外,观点仅代表作者本人,不代表焦点立场。
