深圳南山湾啓紫荆府售楼处电话→楼盘百科→首页网站详情→24小时热线电话
扫描到手机,新闻随时看
扫一扫,用手机看文章
更加方便分享给朋友
深圳【湾啓紫荆府】
湾啓紫荆府售楼处电话:400-088-3336【看房请提前线上预约】
湾啓紫荆府售楼处电话:400-088-3336【营销中心】_24小时电话
湾啓紫荆府售楼处欢迎您_深圳湾啓紫荆府售楼处最新详情/地址/户型/价格
4000883336
 
湾啟紫荆位于前海妈湾听海大道,占地约1.5万㎡,住宅建面约6.6万㎡,容积率5.14,共有三栋住宅组成,层高36-37F,共485户,车位595个,车位比1.1.2,4梯5户,主推约96㎡稀缺三房、111㎡3+1房、122㎡四房、142㎡四房。户型设计了大客厅、宽景阳台、阔景飘窗等,拥有山海河多重景观资源,计划品质精装交付。户型采用建筑新规设计,户户大阳台,4梯5户,分布式电梯设计,独立电梯厅。
 
本次推的2栋更靠近前湾河,可以看到河景,周边无高层遮挡,高区可看海。项目拥有山海河多重景观资源,精装交付。
户型:新规设计、高使用率,规划主力为3-4房产品。
 
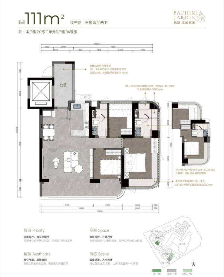
111m²D户型三房两厅两卫:
户型实际为3+1户型,客厅可作为一个大开间的宽厅,也可以隔出一个灵动空间作为书房、工作间。主卧空间南北通透,飘窗也得到了进一步的有效利用。同样是贯通式阳台联通客厅、卧室,阳台的宽度要比96㎡户型大许多,空间尺度提升明显,且有东南、西南两种朝向。
 
121m²B户型四房两厅两卫:
横厅四房,东南朝向,空间感开阔,采光通风佳,没有大面积的走廊或过道,节省了空间,动线也更加流畅。主卧拥有更加开阔的景观面,大面积的弧形无柱飘窗,将外部的自然光线引入室内,空间更加明亮宽敞。
 
122m²C户型四房两厅两卫:
双龙抱珠户型,书房分布于客厅另一侧,且难得是双面采光+270°景观视野。主卧南北通透,且拥有十分开阔的景观面。贯通式阳台联通客厅以及靠近动区的次卧,实现长观景阳台。
 
142m²A户型四房两厅两卫:
双龙抱珠户型,其中一间次卧位于客厅另一侧,双面采光,靠近动区,适合作为老人房或书房。客餐厅南北通透,兼顾横厅与竖厅优点,空间感足,利用率高,动静分离、干湿分离设计合理。贯通式超长宽境阳台,采光舒适度高。
 
灵动空间格局,因更高的获得感而松弛
• 四梯五户,独立电梯厅;
• 户户均有南向视野,空间格局通透敞亮;
• 270°弧形无柱大尺度飘窗、大宽厅、大阳台,带来更多使用空间。
 
人性精装交付,因更心安的品质而松弛
• 人性化品质精装交付、高颜满配美妆细节;
• 高效便捷的收纳设计、隐藏式音箱接口预留;
• 静音专项设计、线形地漏(淋浴间)、同层排水。
 
项目临近前湾公园,虽非一线临河或临海,但前湾公园的建成将形成一条延续性的生态景观长廊,为居民提供浪漫的休闲散步之地。
 
 
交通优势:距5号线妈湾站约550m,毗邻听海大道,可短时间通达南山、福田,宝安:规划2条城际轨道+1个海空口岸,快速对接大湾区生活圈。
教育资源:项目配套18班幼儿园(建设中),毗邻九年一贯制学校(规划中)。
商业配套:自贸时代中心商业(建设中),6大商业中心。
生态配套:立足前海核心区最后2.9平方公里临海净地、背衔大、小南山,面环大海,社区无缝连接立体连廊,步行即可通山达海。
 
深圳【湾啓紫荆府】
湾啓紫荆府售楼处电话:400-088-3336【看房请提前线上预约】
湾啓紫荆府售楼处电话:400-088-3336【营销中心】_24小时电话
湾啓紫荆府售楼处欢迎您_深圳湾啓紫荆府售楼处最新详情/地址/户型/价格
免责声明:
· 本文中所提项目名称均为推广名,
· 本资料为要约邀请,相关内容不排除因政府相关规划、规定及开发商未能控制的原因而发生变化,本公司保留对宣传资料修改的权利,敬请留意最新资料。本资料对项目或产品的介绍,旨在提供相关信息,不意味着本公司对此作出了承诺,买卖双方的权利义务以双方签订的《商品房买卖合同》及附件等协议为准。
· 本文部分图片来源于国际互联网,版权归原作者所有,如涉及版权等问题,请立即联系管理员,我们会给予更改或删除相关文章,保证您的权利。对使用本网站信息和服务所引起的后果,本网站不作任何承诺。
声明:本文由入驻焦点开放平台的作者撰写,除焦点官方账号外,观点仅代表作者本人,不代表焦点立场。
 
 
 