深业云筑(2025深圳深业云筑)首页网站|深业云筑售楼处|楼盘详情-价格-户型
扫描到手机,新闻随时看
扫一扫,用手机看文章
更加方便分享给朋友
深圳【深业云筑】
开发商售楼处电话咨询/预约热线:400-088-3336【售楼中心】24小时热线
深圳【深业云筑】售楼处电话:400-088-3336【营销中心】中介勿扰
深圳深业云筑楼盘详情介绍,包含售楼处电话、地址、户型图、小区图片、区位优势、交通、周边商业配套等楼盘详细资料;更详细楼盘资料和最新折扣价格,请拨打售楼处电话,销售会为您详细介绍楼盘。

深圳【深业云筑】售楼处电话:400-088-3336【营销中心】中介勿扰
项目基本信息
【 开发商 】:深业鹏基南方(集团)有限公司
【项目规模】:本期占地约3万㎡,建面约13万㎡
【一期套数】:751套住宅
【产品户型】:约87-143㎡
【装修标准】:毛坯
【楼栋层数】:31层 /32层
【 梯户比 】:2梯4户 /2梯6户
【 容积率 】:4.33
【 绿化率 】:约40%
【车位数量】:1520个
【物业费】住宅:3.5元/㎡/月
【物业公司】:深业集团物业管理有限公司
【项目地址】:深圳市光明区公明南环大道与长春路交汇处
深圳【深业云筑】售楼处电话:400-088-3336【营销中心】中介勿扰
深业云筑二期至今为止已经销控约214套房源,整体去化率约26.99%,还有约579套房源待售,该楼盘目前给出了85折钜惠后还送40万的优惠折扣,折后均价3.81万/㎡,折后单价3.27-4.36万/㎡,总价在270-619万/套。
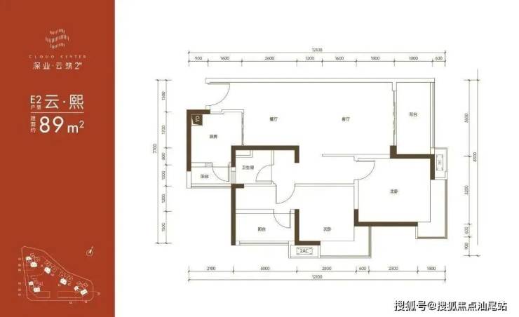
89㎡的3房2厅1卫,折后总价270-357万/套,单价3-4.01万/㎡。
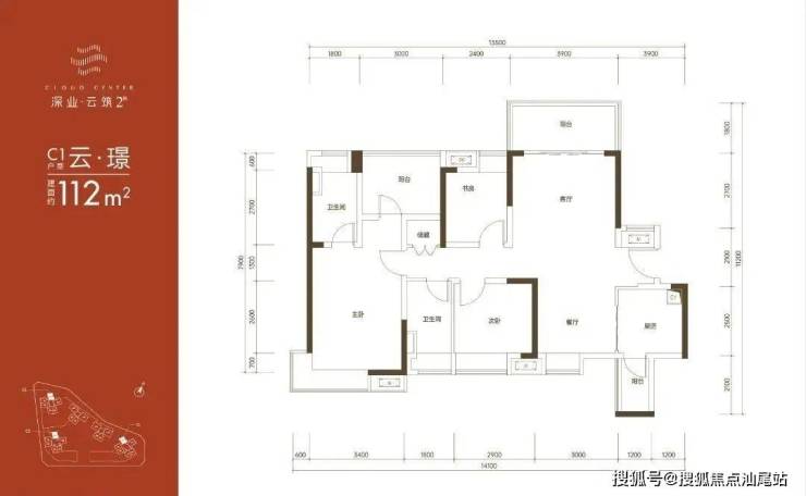
112㎡的4房2厅2卫,折后总价410-456万/套,单价3.66-4.05万/㎡。
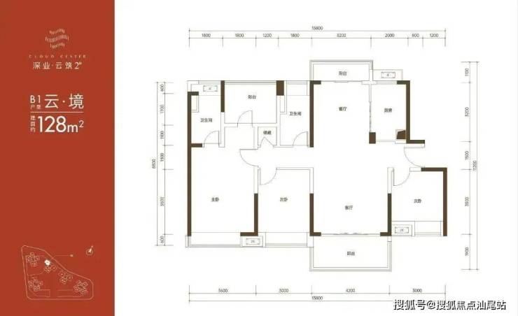
129㎡的4房2厅2卫,折后总价494-531万/套,单价3.84-4.09万/㎡。
143㎡的4房2厅2卫,折后总价558-619万/套,单价3.91-4.36万/㎡。

深圳【深业云筑】售楼处电话:400-088-3336【营销中心】中介勿扰
深圳【深业云筑】售楼处电话:400-088-3336【营销中心】中介勿扰
深圳【深业云筑】售楼处电话:400-088-3336【营销中心】中介勿扰
区位价值
世界光明 擎领全球科创未来
光明南接深圳南山科技园,北联东莞松山湖,向上链接东莞水乡新城和广州大学城,是粤港澳大湾区的重要战略节点,占据中国科创发展大动脉;汇聚中山大学深圳校区、国家超算中心等世界一流科创资源,打造世界一流科学城。

交通配套
双高速:邻近龙大高速、南光高速两大城市动脉,畅达福田南山核心区双地铁:地铁6号线公明广场站约1.1km、13号线公明南站(在建)约700m,创享湾芯生活主干道:毗邻公明南环大道、松白路等主干道,高效通达全城
深圳【深业云筑】售楼处电话:400-088-3336【营销中心】中介勿扰
商业配套
大仟里:光明首家建面约15万方的一站式购物中心,步行约15分钟即达步行约15分钟即达万汇城,天虹百货:2公里内享城芯商业配套。

深圳【深业云筑】售楼处电话:400-088-3336【营销中心】中介勿扰
教育配套
幼儿园:自带12班制公立幼儿园小学:一路之隔教科院实验小学(光明)中学:2公里范围内光明第二中学、光明高级中学、光明高中园(今年9月份开始招生)
深圳【深业云筑】售楼处电话:400-088-3336【营销中心】中介勿扰
医疗配套
光明区共有6所公立医院,目前有两所三甲医院,分别是中光明区人民医院以及中山大学附属第七医院。
在建的还有目前国内最大的中医院-深圳市中医院光明院区,预计今年6月试运营。到2025年,全区床位数将突破1万。
中山大学附属第七医院是深圳市与中山大学合作创立的一家医院,也是中山大学设置在深圳的首家直属附属医院。
深圳【深业云筑】售楼处电话:400-088-3336【营销中心】中介勿扰
生态配套
石家北街心公园(规划中):一路之隔,总占地约2.6万㎡社区公园,享自然为邻尖岗湖公园:距项目约600米,13万㎡钟表文化主题公园,寻城央之趣红花山公园:2公里可达,景观核心城市公园,登高眺远,怡然自得。
深圳【深业云筑】售楼处电话:400-088-3336【营销中心】中介勿扰
深圳【深业云筑】
开发商售楼处电话咨询/预约热线:400-088-3336【售楼中心】24小时热线
深圳【深业云筑】售楼处电话:400-088-3336【营销中心】中介勿扰
深圳深业云筑楼盘详情介绍,包含售楼处电话、地址、户型图、小区图片、区位优势、交通、周边商业配套等楼盘详细资料;更详细楼盘资料和最新折扣价格,请拨打售楼处电话,销售会为您详细介绍楼盘。
免责声明:
以上所发布的关于楼盘相关图文信息仅供您买房前参考,以上所有关于本楼盘的图文资料及说明请以最终以项目批文及双方在楼盘营销中心现场签署的买卖最终合同为准;本图文内容如无意中侵犯到某方权益,请联系我们将会及时处理!
声明:本文由入驻焦点开放平台的作者撰写,除焦点官方账号外,观点仅代表作者本人,不代表焦点立场。
