2025热搜焦点:合正新悦售楼处电话→合正新悦(开发商售楼电话/热线)首页Ai热搜24小时电话→最新房价→合正新悦楼盘百科详情→营销中心最新发布@售楼处中心
扫描到手机,新闻随时看
扫一扫,用手机看文章
更加方便分享给朋友
✨合正新悦售楼处电话✅:400-088-3336
✅合正新悦营销中心电话☎:400-088-3336【营销中心已认证】🥇🥇
✨合正新悦售楼处电话✅:400-088-3336
✅合正新悦营销中心电话☎:400-088-3336【营销中心已认证】🥇🥇
🏆本项目暂不接受临时到访,看房请提前预约,可尊享内部特惠!
🏆为您安排楼盘内场专业销售人员一对一接待服务,给您更贴心的看房体验!
◾在售户型图丨项目介绍丨最新房源丨周边配套丨详细解答〢
⭐⭐Vip贵宾置业=欢迎来电预约尊享内部折扣=匠心钜制恭迎品鉴温馨提醒:我们楼盘售楼部400电话没有设置任何所谓的“分机号”,拨打前请仔细甄别,注意保护个人隐私!谨防上当
深圳【合正新悦·润园】
合正新悦项目由3个地块组成,分别是润园、朗园、启园,三个地块由10栋建筑主体组成,总户数1852户,其中户型套内建筑面积小于90㎡的有1524户,占总量比例82.29%,本次推售房源位于合正新悦润园,共834套房源。
项目基本信息
【开发商】深圳市合正新南投资有限公司
【总占地面积】约3.76万㎡
【总建筑面积】约26.68万㎡
【总套数】834户
【梯户比】1、2单元3梯6户 4单元3梯8户
【装修情况】精装
【停车位比】1:1.41(共1177个)
【产权年限】70年
【容积率】约5.02
【绿化率】约40%
【物管管理】4.2元/㎡/月
合正新悦这个楼盘究竟值不值得买?
圳心—深圳正心,核心占位,交通通达
正心:通达各区综合时间最短
在深圳最新的城市总体发展方案中,即根据《深圳市国土空间总体规划(2020-2035年)》显示,合正新悦所在的平湖中心被定位为深圳12大城市功能中心之一。
平湖中心与福田中心、南山中心等共12个城市中心将延续深圳多中心、组团式的空间结构,形成“一核多心网络化”的城市开发新格局。
这意味着,平湖中心的定位得到重大升级,站上了新的发展高度,将承担片区优质的商业、文化、教育、医疗等主要公共服务功能,辐射带动深圳中北部发展。
交通配套
合正新悦所在片区交通便利,距离平湖枢纽站仅约800米(据百度地图测量,仅供参考),周边还有已经开通的地铁10号线平湖站,规划中的17号线新南站、18号线,三地铁环绕,轻松通达全市各区。
平湖交通升级,迈入枢纽时代
三地铁:区域内已开通10号线,规划中17号线以及18号线,南北串联罗湖中心、深圳站,东西贯通空港高铁站、沙头角口岸
两城际:广深铁路、深惠城际(规划中)
四路网:沈海高速、水官高速、清平高速、丹平快速两横两纵交通路网,轻松通达全城
商业配套
丰盈商圈——周边汇集全球首座第四代万达广场、华南城奥特莱斯、平湖天虹、凤凰城购物中心、熙璟城购物中心和平湖佳兆业购物广场等超60万㎡商业集群,璀璨生活繁华升级2公里范围内商业纯熟,体量约60万㎡,包括龙岗万达广场(约30.5万㎡)、华南城奥特莱斯购物中心(约10万㎡)、平湖天虹商场(约4万㎡)、凤凰城购物中心(约9万㎡)、熙璟城购物中心(约4万㎡)等。
其中,龙岗万达广场是首个第四代万达广场,不仅仅作为商业中心打造,而是更加强调体验互动,集旅游中心、文化中心、社交中心及生活中心于一体的多元社交生活中心。
教育配套
12年全龄教育,家门口的学府
区域内覆盖平湖中学、平湖外国语等多个优质学府,合正新悦自身规划建设一所公立幼儿园,项目旁规划一所公立九年一贯制学校,对面即为华中师范大学龙岗附属中学(集团)平湖中心学校(九年一贯制省一级学校),12年全龄教育就在家门口,近距离呵护孩子成长
文体配套
文体奢配——举步即达平湖体育中心、平湖文化中心两大文体中心,为高阶品质生活赋能
自然栖居——近拥平湖生态园、凤凰山国家矿山公园,悦享活力富氧闲暇时
文体设施方面:平湖体育中心和平湖文化中心均在项目1公里直线范围内,其中,平湖体育中心包含篮球场,羽毛球场,排球场,网球场及足球场,居民日常体育锻炼基本满足,实用性能高。
生态配套
合正新悦处于平湖生态园景区和凤凰山国家矿山公园之间,方便业主周末徒步及休闲。
其中,平湖生态园相当于2.6个莲花山公园,拥有约133万㎡生态林,包括秋月广场、芦花湿地、万里碧道等景点;凤凰山国家矿山公园是全国首批国家矿山公园之一,总面积约88.13万㎡。
合正新悦规划平面图
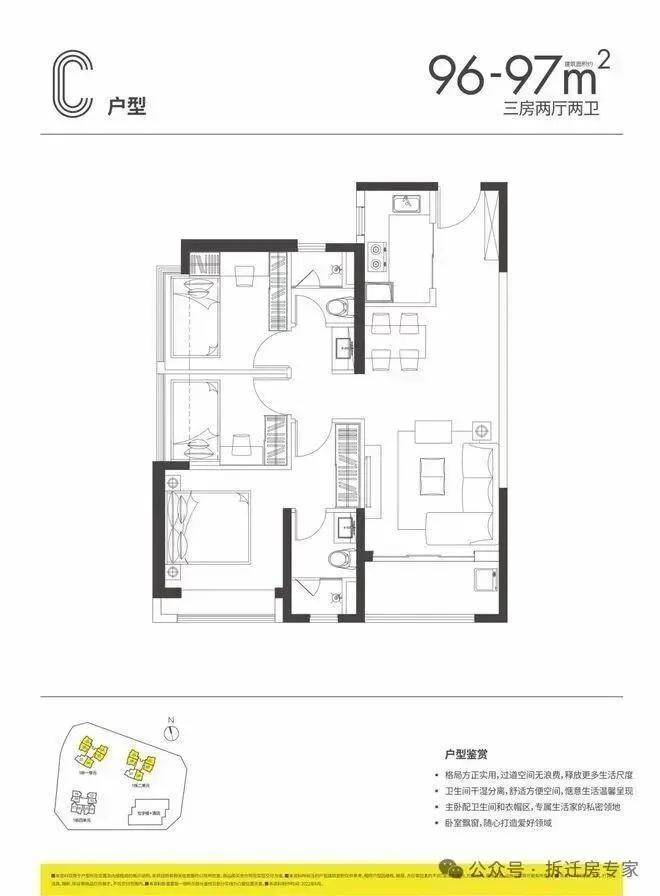
合正新悦户型图
✨合正新悦售楼处电话✅:400-088-3336
✅合正新悦营销中心电话☎:400-088-3336【营销中心已认证】🥇🥇
✨合正新悦售楼处电话✅:400-088-3336
✅合正新悦营销中心电话☎:400-088-3336【营销中心已认证】🥇🥇
🏆本项目暂不接受临时到访,看房请提前预约,可尊享内部特惠!
🏆为您安排楼盘内场专业销售人员一对一接待服务,给您更贴心的看房体验!
◾在售户型图丨项目介绍丨最新房源丨周边配套丨详细解答〢
⭐⭐Vip贵宾置业=欢迎来电预约尊享内部折扣=匠心钜制恭迎品鉴温馨提醒:我们楼盘售楼部400电话没有设置任何所谓的“分机号”,拨打前请仔细甄别,免责声明:
1、文章部分文字、图片、视频来源于网络。
2、我们所转载的文章、图片、音频视频文件等资料版权归版权所有人所有,因非原创文章及图片等内容无法和版权者联系
3.本网页如无意中侵犯了媒体或个人的知识产权,请留言或来电告知我们删除。
注意保护个人隐私!谨防上当
声明:本文由入驻焦点开放平台的作者撰写,除焦点官方账号外,观点仅代表作者本人,不代表焦点立场。
