深业世纪山谷(售楼处电话)首页网站|深业世纪山谷售楼中心欢迎您|地址_备案价_户型图
扫描到手机,新闻随时看
扫一扫,用手机看文章
更加方便分享给朋友
【深业世纪山谷开发商线上售楼处咨询/预约TEL热线📞:400-088-3336 】
温馨提示:过来现场看房请务必提前拨打400-088-3336来电预约!
项目介绍
【深业世纪山谷】是一座位于深圳的城市综合体,位于南山区沙河东路218号,占地面积约4.2万㎡,总建筑面积约39万㎡,一期容积率5.78、二期容积率6.63。该综合体集住宅、公寓、酒店、商业和办公等多种功能于一体,具备了完善的生活配套和商业服务。
整个项目分两期开发建设,其中:项目一期东地块包含1栋酒店+商务公寓、1栋保障房、2栋包含一、二单元的住宅;西地块包含2栋高约250米的超高层住宅,另有1栋约50层高的商务公寓。
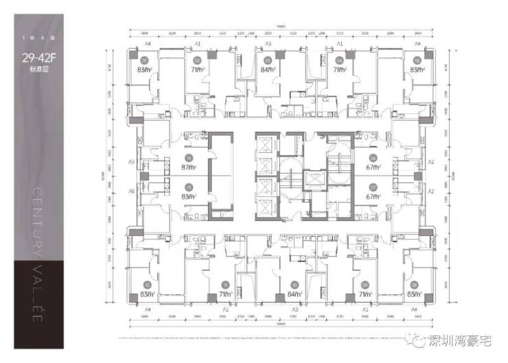
前两次都是公寓,现在住宅首发!还是定位相当高端的纯大平层而且还是无敌景观视野,8梯3户,233㎡/280㎡配备两个独立电梯,386㎡双梯设计,实在任性!
项目附近有95万㎡大沙河生态长廊、200万㎡沙河+名商高尔夫生态、华侨城湿地公园、深圳湾滨海长廊,这些深圳最顶级的景观生态资源都在它的腹地之上。
最重要的是,目前深业世纪山谷项目是深湾中轴唯一在售的大平层住宅产品,十分稀缺。
交通配套
地铁:近地铁1号线白石洲站约680米,1站到达高新园,可换乘2/7/9/11四条轨道线路;规划中的20号线白石洲站和规划中的29号线(白石洲北站)就在楼下。
陆路:紧邻【沙河东路】与深圳湾总部基地紧密相连,自北向南串联起【京港澳高速】、【北环大道】、【深南大道】、【滨海大道】,纵向由【沙河西路】、【科苑路】共同构成四横三纵的一体快速路网;可直抵前海、宝中、福田、罗湖等深圳其他城市核心区。
教育配套
项目自带一所21班的幼儿园和南外教育集团的63班九年一贯制学校,可以跟住宅同步建成,现成的学校有(南外沙河小学)和(南外第二实验)。
商业配套
一公里内有益田假日广场、万象天地、京基百纳广场,车程约十分钟即可到达深圳湾睿印、欢乐海岸、深圳湾万象城大型商业。
休闲配套
北看塘朗山、南望深圳湾、西临大沙河生态长廊、高尔夫球场,东瞰华侨城绿地,周边还有大沙河公园、深圳湾公园、华侨城国家湿地公园、燕晗山郊野公园等四大生态公园环绕。
项目效果图
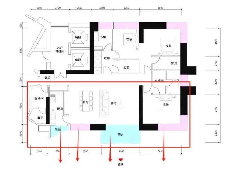
项目户型图
【约233㎡3+1房3卫】双梯入户,独立电梯厅,餐客大横厅贯通阳台,三面采光,主次卧尽享270°环幕视野,还有独立家政套间,西北朝向看名商和沙河高尔夫;
【
约280㎡4+1房4卫】双梯入户,独立电梯厅,阔绰横厅直连阳台,三面舒适采光,主次卧双套房,270°环幕视野,还有独立家政套间,西南朝向看城市景观,高层可看深圳湾海景;
【约386㎡4+1房4卫】双梯入户,独立电梯厅,阔绰横厅直连多功能空间,三面舒适采光,主次卧双套房,270°环幕视野,还有独立家政套间,西朝向看名商高尔夫和大河沙生态长廊。
项目公寓户型图:
项目点评
优势:
①项目最大的亮点就是拥有双高尔夫(名商高尔夫和沙河高尔夫)头排无遮挡景观+深圳湾海景资源。西侧是大沙河生态长廊,南侧可以看到深圳湾海景。
②绝佳地段,项目位于深湾中轴线上华侨城传统豪宅区,华侨城片区少有大面积供应,是深圳的顶级豪宅片区,周边紧邻深圳湾超级总部基地、世界之窗、科技园。
劣势:
1、产品:使用率偏低导致得房率不足;
2、位置:属于华侨城非核心区域,靠近沙河西路,低楼层可能会有噪音。
综合评价:
住宅优缺点很明显,极致的景观,大的区位上来说,属于城市核心区域热点板块,但是又都属于板块内的边缘位置。从定位上,产品比较纯粹,定位上也是最高端的。
【深业世纪山谷开发商线上售楼处咨询/预约TEL热线📞:400-088-3336 】
温馨提示:过来现场看房请务必提前拨打400-088-3336来电预约!
免责声明:我们致力于保护作者版权,转载或引用仅为传播楼盘更多信息,本文部分图片可能来源于网络,无法核实其真实出处,如涉及侵权请联系我们并及时配合处理。
声明:本文由入驻焦点开放平台的作者撰写,除焦点官方账号外,观点仅代表作者本人,不代表焦点立场。
