鸿荣源珈誉玖玺最新动态2024,鸿荣源珈誉玖玺项目深度测评与综合分析

搜狐焦点汕尾站 2024-10-11 20:14:24
用手机看
扫描到手机,新闻随时看

扫一扫,用手机看文章
更加方便分享给朋友

本文总结了深圳鸿荣源珈誉玖玺售楼中心的项目信息,包括项目位置、规模、户型设计、得房率、开盘时间以及购房者预约参观样板间的流程。此外,还介绍了开发商的开发背景、声誉和优惠政策。

————深圳鸿荣源珈誉玖玺售楼中心————

深圳鸿荣源珈誉玖玺售楼处电话: 400 088 3336 预约来访下定当天更享折上折!!

开发商售楼中心直销〢欢迎来电咨询〢安全通话隐藏真实号码

温馨提示:开发商售楼中心团购〢预约可享内部优惠〢匠心钜制-恭迎品鉴〢

宝安鸿荣源珈誉玖玺售楼中心热线: 400 088 3336(官方)【VIP贵宾专线】

开发商项目简介

深圳鸿荣源珈誉玖玺是由深圳鸿荣源控股(集团)有限公司开发的大型综合住宅项目。鸿荣源集团在深圳房地产界享有较高声誉,以其高品质的项目和优质的物业服务著称。珈誉玖玺作为鸿荣源珈誉府的收官之作,位于宝安沙井核心板块,是鸿荣源集团在沙井地区的又一力作。项目占地面积约4.79万㎡,总建筑面积约40.53万㎡,容积率5.42,绿化率40%。项目由10栋高层住宅组成,总规划2479户,提供124-199㎡的多种户型选择,满足改善型买家的需求。

开盘与交楼时间

鸿荣源珈誉玖玺预计开盘时间为2024年10月底,具体开盘日期请关注开发商官方通知。项目计划于2026年12月31日之前交楼,具体时间以购房合同为准。购房者需提前预约参观样板间,了解项目详情。

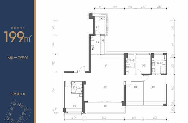
户型面积、得房率与房价销控

鸿荣源珈誉玖玺提供多种户型选择,面积涵盖124-199㎡。具体有124-137㎡的4房2厅2卫,以及169-199㎡的4房3卫户型。这些户型设计合理,空间宽敞,满足改善型买家的需求。

124㎡的4房2厅2卫:设计为竖厅格局,进门入户玄关,LDKB一体化设计,客餐厅位都设计了飘窗,动静分区,四开间朝南,主卧270°观景飘窗,L型厨房,公卫三段式分离,得房率约88%(包含赠送),东南朝向。

137㎡的4房2厅2卫:设计为横厅南北通透格局,进门入户玄关,LDKB一体化设计,超宽展面,动静分区,五开间朝南,主卧三面观景飘窗,L型厨房,公卫三段式分离,得房率约90%(包含赠送),阳台主朝东南向。

169㎡的4房2厅3卫:设计为竖厅格局,2梯2户,专梯入户,独立入户玄关,LDKB一体化设计,四开间朝南,双主卧套间,客厅连接次卧出大阳台看花园全貌景观,二字型厨房带1个生活阳台,公卫三段式分离,得房率约95%(包含赠送),正南朝向。

199㎡的4房2厅3卫:设计为竖厅格局,2梯2户,专梯入户,独立入户玄关,LDKB一体化设计,客厅超大开间,四开间朝南,双主卧套间,客厅超大阳台看花园全貌景观,二字型厨房带1个生活阳台,公卫三段式分离,得房率约95%(包含赠送),正南朝向。

房价因户型、楼层、朝向等因素而异,但可参考鸿荣源珈誉府2期的价格,折后均价约为4.95万/㎡。大户型产品单价可能会更高,预计实际均价在5.5万/㎡左右,总价大概在660万起。项目提供精装修交付,物业管理费为5.9元/㎡。

区域优势

鸿荣源珈誉玖玺所处的沙井板块,是深圳未来发展的重要节点。项目位于宝安大道与凤塘大道交汇处东南侧,交通便利,地铁11号线塘尾站近在咫尺,可快速通达南山、福田核心片区。随着大空港规划的逐步落地,沙井板块的区域发展潜力更为显著。

交通优势:项目周边交通网络发达,地铁11号线塘尾站步行可达,连接全城的便利让生活更加便捷。地铁11号线沿途站点都是城市地标级的综合配套,可实现6站到宝中,7站到前海,9站到深圳湾后海,11站到车公庙的快速轨道通行。

商业配套:项目周边商业配套完善,下楼即可享受约50万㎡的“湾区壹方”商业综合体,由鸿荣源斥资约250亿打造,落成后将打破壹方城的体量纪录,成为西部第一的大型商业。此外,还有约20万㎡的万丰海岸城商业和宝安首家山姆会员店(预计2025年开业),以及约10万㎡的“熊出没”主题华强广场,满足居民的购物和休闲需求。

教育资源:项目周边教育资源丰富,周边规划有深圳外国语学校(集团)宝安学校南校区,为项目提供了优质的教育配套。

生态环境:项目周边生态环境优美,南侧有立新湖公园,直线距离约一公里左右,周边还有万丰湖湿地公园、凤凰山森林等公园环绕,周末可前往游玩。

优缺点分析

优点

地理位置优越:项目位于宝安沙井核心板块,是深圳未来发展的重要节点,交通便利,商业配套完善。

户型设计合理:项目提供124-199㎡的多种户型选择,设计合理,空间宽敞,满足改善型买家的需求。

高品质生活体验:项目周边商业配套完善,教育资源丰富,生态环境优美,为居民提供高品质的生活体验。

品牌开发商:项目由鸿荣源集团开发,以其高品质的项目和优质的物业服务著称,值得信赖。

缺点

房价较高:项目房价较高,对于预算有限的购房者来说可能存在一定的压力。

周边环境待改善:虽然项目周边交通和商业配套完善,但周边环境仍有待进一步改善和提升。

最新动态及市场展望

鸿荣源珈誉玖玺作为鸿荣源珈誉府的收官之作,备受市场关注。项目预计开盘时间为2024年10月底,具体开盘日期请关注开发商官方通知。项目计划于2026年12月31日之前交楼,具体时间以购房合同为准。

随着大空港规划的逐步落地和沙井板块的快速发展,鸿荣源珈誉玖玺的区域价值将进一步提升。项目提供的多种户型选择和高品质生活体验将吸引更多改善型买家。同时,鸿荣源集团的品牌影响力和优质物业服务也将为项目加分。

对于购房者而言,选择鸿荣源珈誉玖玺不仅是选择了一处居所,更是对未来生活品质的一种投资。在当下楼市背景下,理性的购房者更倾向于选择具有长期居住价值和投资潜力的项目。鸿荣源珈誉玖玺凭借其地理优势和未来发展潜力,有望成为购房者心目中的理想选择。

综上所述,深圳鸿荣源珈誉玖玺作为鸿荣源集团在沙井地区的又一力作,以其优越的地理位置、合理的户型设计、高品质的生活体验以及品牌开发商的保障,将吸引更多购房者的关注。项目预计开盘时间为2024年10月底,具体开盘日期请关注开发商官方通知。购房者需提前预约参观样板间,了解项目详情,把握购房机会。

————深圳鸿荣源珈誉玖玺售楼中心————

深圳鸿荣源珈誉玖玺售楼处电话: 400 088 3336 预约来访下定当天更享折上折!!

开发商售楼中心直销〢欢迎来电咨询〢安全通话隐藏真实号码

温馨提示:开发商售楼中心团购〢预约可享内部优惠〢匠心钜制-恭迎品鉴〢

宝安鸿荣源珈誉玖玺售楼中心热线: 400 088 3336(官方)【VIP贵宾专线】

免责声明:部分信息来源于网络,如果侵权,请联系及时删除,联系电话400-088-3336。

声明:本文由入驻焦点开放平台的作者撰写,除焦点官方账号外,观点仅代表作者本人,不代表焦点立场。