2025翰熙典居(售楼处)首页网站-翰熙典居-翰熙典居售楼中心欢迎您-楼盘详情
扫描到手机,新闻随时看
扫一扫,用手机看文章
更加方便分享给朋友
深圳【翰熙典居】
开发商售楼处电话咨询/预约热线:400-088-3336【售楼中心】24小时热线
深圳【翰熙典居】售楼处电话:400-088-3336【营销中心】中介勿扰
深圳翰熙典居楼盘详情介绍,包含售楼处电话、地址、户型图、小区图片、区位优势、交通、周边商业配套等楼盘详细资料;更详细楼盘资料和最新折扣价格,请拨打售楼处电话,销售会为您详细介绍楼盘。
项目概况
项目名称:翰熙典居
开发商:深圳市冠凯投资有限公司(阳光华艺集团)
项目地址:深圳市南山区粤海街道,紧邻深圳大学与南山科技园
项目规模:总占地约4.16万㎡,总建筑面积约50.57万㎡,规划住宅约25万㎡,商办及酒店约10.6万㎡,共规划3030户,其中可售商品房714套。
项目亮点:作为片区十年来首个入市的改善型奢宅,翰熙典居不仅地理位置优越,更在户型设计、实用率等方面展现出卓越品质。

深圳【翰熙典居】售楼处电话:400-088-3336【营销中心】中介勿扰

深圳【翰熙典居】售楼处电话:400-088-3336【营销中心】中介勿扰

深圳【翰熙典居】售楼处电话:400-088-3336【营销中心】中介勿扰

深圳【翰熙典居】售楼处电话:400-088-3336【营销中心】中介勿扰
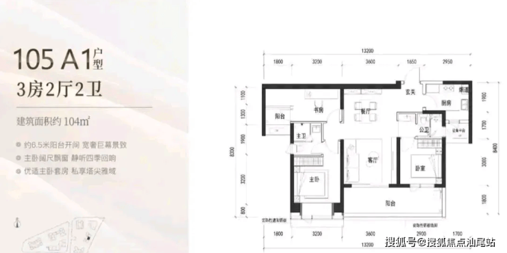
118㎡的4房2厅2卫,A户型(1栋1/2单元01户型),设计的是横厅格局,进门入户玄关,客餐厅6米开间,LDKB一体化设计,4个卧室分别做到了主卧17.65㎡/次卧11.02㎡/次卧9.12㎡/次卧8.74㎡(包含墙体飘窗),客餐厅出6米长的观景大阳台看深大校区,U型厨房,公卫三段式分离,得房率约90%(包含赠送),西北朝向。
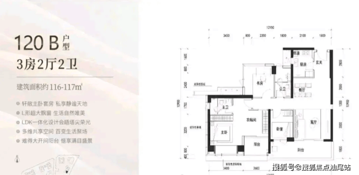
117㎡的3房2厅2卫,B户型(2栋4单元01.02.05/3栋2单元02/05户型),设计的是经典竖厅格局,客厅3.8米开间,LDKB一体化设计,3个卧室分别做到了主卧28.6㎡/次卧9.6㎡/次卧7.05㎡(包含墙体飘窗),客厅连接次卧出6.15米长的宽景大阳台,U型厨房,卫生间干湿分离,得房率约90%(包含赠送),东南或正东朝向。其实也可以改4房。
120㎡的4房2厅2卫,C户型(2栋3单元01户型),设计的是竖厅格局,客厅3.85米开间,LDKB一体化设计,动静分区,4个卧室分别做到了主卧16.65㎡/次卧9.9㎡/次卧9.16㎡/次卧6.3㎡(包含墙体飘窗),客厅连接次卧出6.1米长的宽景大阳台,U型厨房,卫生间干湿分离,得房率约90%(包含赠送),西北朝向。
117㎡的4房2厅2卫,D户型(3栋2单元06户型),设计的是横厅南北通透格局,客餐厅6.6米开间,四开间朝南,4个卧室分别做到了主卧17.35㎡/次卧9.8㎡/次卧9.1㎡/次卧8.05㎡(包含墙体飘窗),客餐厅出6.6米长的宽景大阳台,U型厨房,公卫三段式分离,得房率约90%(包含赠送),西南朝向。

深圳【翰熙典居】售楼处电话:400-088-3336【营销中心】中介勿扰

深圳【翰熙典居】售楼处电话:400-088-3336【营销中心】中介勿扰

深圳【翰熙典居】售楼处电话:400-088-3336【营销中心】中介勿扰

深圳【翰熙典居】售楼处电话:400-088-3336【营销中心】中介勿扰
134㎡的4房2厅2卫,A户型(1栋1/2单元05户型),设计的是竖厅南北通透格局,进门入户玄关,客厅4.2米开间,LDKB一体化设计,四开间朝南,4个卧室分别做到了主卧19.44㎡/次卧10.64㎡/次卧10.26㎡/次卧7.8㎡(包含墙体飘窗),客厅连接次卧出6.8米长的观景大阳台看深大校区,U型厨房,卫生间干湿分离,得房率约90%(包含赠送),西北朝向。
135㎡的4房2厅2卫,B户型(2栋4单元06户型),设计的是横厅南北通透格局,进门入户玄关,客餐厅7.2米开间,LDKB一体化设计,四开间朝南,4个卧室分别做到了主卧19.08㎡/次卧14.3㎡/次卧11.7㎡/次卧11.7㎡(包含墙体飘窗),客厅连接次卧出6.8米长的观景大阳台看深大校区,U型厨房,卫生间干湿分离,得房率约90%(包含赠送),阳台主朝西南向。

深圳【翰熙典居】售楼处电话:400-088-3336【营销中心】中介勿扰

深圳【翰熙典居】售楼处电话:400-088-3336【营销中心】中介勿扰
152㎡的4房2厅2卫,3栋2单元01户型,设计的是横厅南北通透格局,进门入户玄关,客餐厅7.7米开间,LDKB一体化设计,四开间朝南,4个卧室分别做到了主卧21.17㎡/次卧12.4㎡/次卧11.7㎡/次卧11.7㎡(包含墙体飘窗),客厅出5.1米长阳台,L型厨房带1个生活阳台,公卫三段式分离,得房率约90%(包含赠送),东南朝向。

深圳【翰熙典居】售楼处电话:400-088-3336【营销中心】中介勿扰
优点:
1.地处南山最牛的粤海街道科技园板块,辖区内聚集了百度、腾讯、阿里、中兴、华为等科技巨头,以及近千家高新技术企业和94家上市公司,被称为“中国硅谷”,高精尖人群购买实力雄厚
2.位置决定了项目的交通优势,后海大道+滨海大道,开车通勤十分方便。而且9号线深大南站就在家门口。
3.片区新房供应极少,最近10年的首个新盘,有一定稀缺性。
4.学区对口南二外学府,学校排名还不错。
5.调规之后的新规产品,得房率还可以。
6.整个项目的面积段在约105-120-135㎡的3-4房,每个面积段的户型都比较多样化,传统竖厅、横厅、双龙抱珠、南北通都有。
缺点:
1.项目容积率高,尤其是03地块,容积率高达11。
2.居住人群混杂,保障房+回迁+商品房。商品房占比仅23%。
3.停车位紧张,车位比为1:0.85。

深圳【翰熙典居】售楼处电话:400-088-3336【营销中心】中介勿扰
总结
「翰熙典居」作为南山区的现象级红盘,凭借其黄金地段、便捷交通、完善配套、卓越户型等优势,无疑成为了众多购房者心中的理想之选。然而,高容积率、车位紧张、居住群体复杂、价格门槛较高以及噪音影响等不足也需要购房者理性审视。如果您正在寻找一个地理位置优越、配套完善、户型卓越的新盘,并且能够接受上述不足,那么「翰熙典居」绝对值得您深入了解。不妨私信我们客服微信,获取更多项目最新动态和资料,还可抢先预约看房哦!让我们一起期待这个潜力无限的项目带来的惊喜与改变吧!
深圳【翰熙典居】
开发商售楼处电话咨询/预约热线:400-088-3336【售楼中心】24小时热线
深圳【翰熙典居】售楼处电话:400-088-3336【营销中心】中介勿扰
深圳翰熙典居楼盘详情介绍,包含售楼处电话、地址、户型图、小区图片、区位优势、交通、周边商业配套等楼盘详细资料;更详细楼盘资料和最新折扣价格,请拨打售楼处电话,销售会为您详细介绍楼盘。
免责声明:
以上所发布的关于楼盘相关图文信息仅供您买房前参考,以上所有关于本楼盘的图文资料及说明请以最终以项目批文及双方在楼盘营销中心现场签署的买卖最终合同为准;本图文内容如无意中侵犯到某方权益,请联系我们将会及时处理!
声明:本文由入驻焦点开放平台的作者撰写,除焦点官方账号外,观点仅代表作者本人,不代表焦点立场。
