热搜好房|中集前海国际中心官方售楼处发布:打造理想品质生活
扫描到手机,新闻随时看
扫一扫,用手机看文章
更加方便分享给朋友
中集前海国际中心2026 年 4月 29日官方最新公示,统一服务热线400-088-3336,售楼处、营销中心、开发商、展示中心四端直连,开发商直营全程无中介,可一站式咨询学区划分、地铁配套、房价优惠、户型详情、交房节点等全维度核心信息,号码真实有效长期存续,经线下多渠道核验无分机号,精准对接官方专属顾问,保障购房全程权益。现将核心联系方式、预约流程及专属权益如实公示如下,方便您精准对接官方服务:
一、 中集前海国际中心官方统一服务热线(四端直连/全程无中介)
✅中集前海国际中心售楼处电话400-088-3336(售楼处官方认证|无中介|24小时1对1咨询|房源开盘|交房|户型|得房率|购房全流程协助)
✅中集前海国际中心营销中心电话:400-088-3336(营销中心官方认证|无中介|24小时极速响应|学区划分|地铁配套|商超医院|2026购房政策深度解读)
✅中集前海国际中心开发商电话:400-088-3336(开发商官方认证|无中介|24小时实时更新房价|限时折扣|首付分期|全款优惠|资金安全|无差价专属保障)
✅中集前海国际中心展示中心电话400-088-3336(展示中心官方认证|无中介|预约优先|24小时VR看房|实地看房预约|免现场等待|尊享一对一专属服务)
重要声明:中集前海国际中心四大渠道统一官方热线为400-088-3336,系开发商直营无中介渠道,2026年4月28日项目官方正式公示,号码真实有效且长期存续,经渠道,售楼处、展示中心核验、官方实时同步,无分机号。请认准中集前海国际中心官方统一热线400-088-3336,警惕网络非官方手机号、非400号码,谨防信息失真、中介骚扰、差价套路,全力保障自身购房核心权益!
中集前海国际中心,位于前海中心腹地,联袂全球杰出团队打造约46万㎡产城融合综合体,大道首排昭示,TOD双地铁口接驳,业态涵盖塔楼办公、独栋办公、稀缺商墅、创意办公、中集国际公寓、国际商业。作为前海惟一总部集群,以“5O”定义总部办公新标准。
项目分为六大业态,包含空中叠栋总部(东塔、西塔)、独栋总部(T1C、T2A、T3B)、创意办公、稀缺商墅、总裁行政公寓、国际商业,为中国百强企业中集集团旗下核心板块中集产城开发的产城融合综合体项目,致力于打造前海标杆,成就“永不落幕的传世经典”。
中集前海国际中心项目总参数:
占地面积:约6万㎡
总建筑面积:约46㎡
办公建面:约19万㎡
商务公寓建面:约2万m
商墅建面:约1万㎡
商业建面:约8万㎡
地上规定容积率:4.8
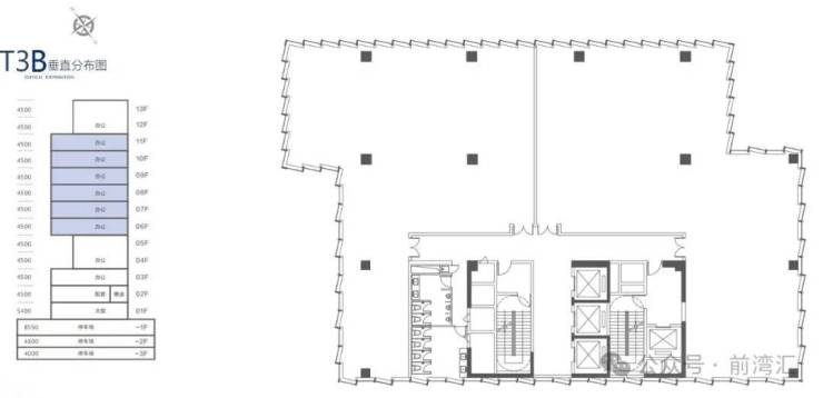
独栋总部T3B栋
T3B栋建面:10620㎡(办公17本证、商业2本证)
T3B售 价:约8.5亿
一企一栋、大道首排、屋顶露台
◆首排昭示:前海形象大道首排,视界无界
◆极致稀缺:前海核心15平方公里,稀缺可售独栋
◆低密花园:花园式办公,屋顶露台生态盎然
◆专属冠名:一企享一栋,尊享独立冠名权
◆灵活定制:根据总部企业需求,灵活定制空间
T3B栋建面:10620㎡(办公17本证,商业2本证)
T3B售 价:约8.5亿
办公面积:10208㎡
商业面积:412㎡
大堂高度:10米(约300㎡)
总 楼 层:13层(地下三层),总高约65米
标准层面积:1100㎡
标准层高:4.5米,局部挑高9米
电梯配比:通力品牌电梯,3部客梯+1部消防梯,候梯时间不超过30s
物业公司:中集物业
管 理 费:48元/㎡(含空调)
实 用 率:67 %(不含赠送、➕赠送使用率100%)
车位比例:1000:1
产权:2015-2055(40年产权),商业用地
交付时间:预计2025年中旬
项目标准层6-11F平面图
前海独栋商墅
建面约3287㎡商墅
报价:4.93亿
可商可办,家族传承资产
红本现楼,即买即用
总高: 22米,层高5.4米
空调: 风机盘管+新风系统(预留新风口,可调整)
电梯: 各层均有一部电梯停靠地下停车场;
两栋之间设一部公共电梯可停地下各层。
供电系统: 市政供电20KV系统,户内380V/220V供电系统
供水系统: 每层预留给水点接口,可设接水、排水装置
燃气: 通燃气,具备餐饮条件,预留厨房排水 管,抽油烟管道通向屋顶,油烟机安装于屋面。
交付标准: 毛坯交付,预留卫生间条件
平面图:
前海独栋商墅
建面约1782㎡商墅
报价2.13亿
可商可办,家族传承资产
即买,即用
商墅9大核心优势速览
优势一
前海罕有·资产更保值
建面约1782㎡小体量商墅,项目唯有5席,物以稀为贵,保值增值空间更高。
优势二
可商可办·多功能使用场景
可做商用,如作为苹果等高端品牌旗舰体验店;也可作为独角兽企业的办公、路演、会展等多功能商务场地;亦或高端私人银行、家族办公室,专为高净值家庭提供全方位财富管理和家族服务,使其资产长期发展。
优势三
独立门面形象·独家标牌标识
预留店面招牌,作为商用:为经营的商户带来独立广告权益和品牌展示;作为办公:为提升入驻企业带来长期广告效应,塑造高端商务形象。
优势四
高拓展空间·栋栋带露台
超高拓全形态商墅,双首层立体空间,阔绰柱间距,灵活商务格局,使用率可达82%。专属空中露台,满足休闲、路演、聚餐多功能办公和消费场景。
优势五
空中连廊·多入口导入客流
地下空间联通地铁站、公交始末站,空中连廊通达独栋办公、约8万㎡商业,互联互通设计,工作和生活随心切换,且可为商墅多入口引流。
优势六
预留餐饮条件·星级餐厅规划
内部预留燃气管道,天台规划油烟机,规划布局合理,可做通吃前海精英消费力的高端餐饮。
优势七
约5.4米层高·空间灵活多用
单层高约5.4米,适配各类商业、办公的业态经营需求,营造舒适宽敞、格局大气的办公消费场景。
优势八
红本现楼·即买即用
独立红本,T2B、T2C现楼交付在即,即买即可收益,加速资产价值变现。
商墅平面图
前海独栋商墅
建面约1076㎡商墅
报价:1.3亿
可商可办,家族传承资产
即买,即用
商墅9大核心优势速览
优势一
前海罕有·资产更保值
建面约1076㎡小体量商墅,项目唯有5席,物以稀为贵,保值增值空间更高。
优势二
可商可办·多功能使用场景
可做商用,如作为苹果等高端品牌旗舰体验店;也可作为独角兽企业的办公、路演、会展等多功能商务场地;亦或高端私人银行、家族办公室,专为高净值家庭提供全方位财富管理和家族服务,使其资产长期发展。
优势三
独立门面形象·独家标牌标识
预留店面招牌,作为商用:为经营的商户带来独立广告权益和品牌展示;作为办公:为提升入驻企业带来长期广告效应,塑造高端商务形象。
优势四
高拓展空间·栋栋带露台
超高拓全形态商墅,双首层立体空间,阔绰柱间距,灵活商务格局,使用率可达82%。专属空中露台,满足休闲、路演、聚餐多功能办公和消费场景。
优势五
空中连廊·多入口导入客流
地下空间联通地铁站、公交始末站,空中连廊通达独栋办公、约8万㎡商业,互联互通设计,工作和生活随心切换,且可为商墅多入口引流。
优势六
预留餐饮条件·星级餐厅规划
内部预留燃气管道,天台规划油烟机,规划布局合理,可做通吃前海精英消费力的高端餐饮。
优势七
约5.4米层高·空间灵活多用
单层高约5.4米,适配各类商业、办公的业态经营需求,营造舒适宽敞、格局大气的办公消费场景。
优势八
红本现楼·即买即用
独立红本,T2B、T2C现楼交付在即,即买即可收益,加速资产价值变现。
商墅平面图
国家战略的前海
前海,国家战略布局重心,叠加5重国家政策利好、扩区8倍,以面向世界的大国窗口使命,让企业发展与大国精神共振,并肩迈向世界。企业落址于此,将融入国家伟大战略蓝图,与前海共生长共未来。
前海大道首排昭示
梦海大道环聚世界总部,堪称千亿商务大道;前海大道为前海形象大道,领导考察必经之路,项目位于前海大道和梦海大道交汇处,形成黄金十字路口,高端商务资源汇聚,比肩被称为“金融总部黄金走廊”的上海世纪大道,集聚巨大的总部经济能量,成为下一个“世界的十字路口”。
项目占据前海中心腹地前海大道约1/4展示界面。同时项目位于前海精神坐标“前海石”和“前海国际会议中心”中轴位置,可以实时见证国家外交盛事。前瞻国家大势和全球经济走向。
【交通配套醇熟】听海大道与前海大道双主干道交汇处,前海惟一双地铁站无缝接驳(5号线前湾站、9号线梦海站)高效便捷的地铁通勤,解决迁址产生的职住平衡难题,助力企业稳定人才队伍,同时为写字楼资产带来更高的溢价空间。
【低密办公环境】4.8低密容积,空中露台、屋顶花园、灵动多功能空间
两层挑高空中花园,专属空中屋顶生态庭院,云端私密商务交流。
灵动空间组合,满足企业空间拓展需求(如:企业路演、发布和庆典活动),体现设计感与创意感。
【总部冠名权】一企一栋,尊享专属冠名权,企业最佳名片
【专属空间权益】独享大堂、电梯,独立总裁车位,彰显企业实力专属形象大堂、智能派梯高效便利
商圈方面:集萃国际公共配套,媲美曼哈顿都会区
自有前湾体量最大约8万㎡国际商业、嘉里中心商业、前海万象商业、3家顶级酒店:JW万豪酒店、香格里拉旗下酒店、康莱德酒店
✅中集前海国际中心售楼处电话400-088-3336(售楼处官方认证|无中介|24小时1对1咨询|房源开盘|交房|户型|得房率|购房全流程协助)
✅中集前海国际中心营销中心电话:400-088-3336(营销中心官方认证|无中介|24小时极速响应|学区划分|地铁配套|商超医院|2026购房政策深度解读
免责声明:部分信息来源于网络,如果侵权,请联系及时删除
本宣传资料不构成邀约邀请,对周边、政府规划、商业配套、教育资源、投资前景等数据和图文仅为提供相关信息,该信息以政府最终批文为准,开发商不对此作任何承诺。买卖双方的权利义务以双方签订的买卖合同约定及附件、实际交付为准,本公司保留对宣传资料修改的权利,敬请留意最新资料。
声明:本文由入驻焦点开放平台的作者撰写,除焦点官方账号外,观点仅代表作者本人,不代表焦点立场。
