深圳【名居山河里】(售楼处)2025首页网站-名居山河里售楼中心-名居山河里欢迎您-楼盘详情-最新价格-户型图-容积率@售楼处
扫描到手机,新闻随时看
扫一扫,用手机看文章
更加方便分享给朋友
🍀名居山河里🍀
🍀名居山河里售楼处24小时电话:400-088-3336【☎☎已认证】🍀
🍀名居山河里售楼中心24小时热线:400-088-3336【☎☎已认证】🍀
🍀名居山河里营销中心24小时电话:400-088-3336【☎☎首页已认证】🍀
🍀Vip贵宾/置业专属VIP/欢迎来电预约尊享内部优惠/恭迎您品鉴🍀
4000883336
1:项目基础信息及区位一览
名居山河里,位于深圳龙岗区横岗街道,地处"深圳东进战略桥头堡"核心位置,是连接龙岗东西部的中间枢纽,被誉为龙岗的"腰杆子"。项目紧邻大运新城,坐拥阿波罗未来产业城、横岗眼镜时尚街区等城市核心规划,处于龙岗区"一芯两核多支点"战略布局的重要支点——横岗光学智造谷。
开发商:深圳市银科投资有限公司(名居地产)
物业公司:中海物业管理有限公司深圳分公司
物业管理费:4.5元/㎡
总占地面积:约6.4万/㎡
总建筑面积:约48万/㎡
容积率:5.83
绿化率:40%
产权年限:2022年4月29日-2092年4月28日(70年)
总户数:一期760户,一期可售商品房412户
总栋数及楼数:一期4栋,38-46层
梯户比:3梯5户
车位数:645个
车位占比:1:0.85
交楼时间:现房
交楼标准: 精装
名居山河里:一期于2023年5月11日取证入市,本次推出3栋1-4单元,共412套房源,面积有75㎡的2房1卫,95-97-102㎡的3房2卫,120-141㎡的4房2卫户型,备案均价4.36万/㎡,备案单价3.68-5.35万/㎡,总价353-705万/套,现房带德系精装交付。
名居山河里:是龙岗在2024年上半年的销冠楼盘,也是横岗板块比较优质的楼盘,该片区在2022年的时候整体的新房以及二手房均价都还在5.2万/㎡,名居山河里是首先打破平衡的楼盘,折后整体均价仅3.7万/㎡。
95-97㎡的3房2厅2卫,折后总价329-352万/套,单价3.39-3.62万/㎡。
102㎡的3房2厅2卫,折后总价357-362万/套,单价3.5-3.55万/㎡。
120㎡的4房2厅2卫,折后总价430-460万/套,单价3.58-3.83万/㎡。简装交房。
141㎡的4房2厅2卫,折后总价520万左右/套,单价3.68万/㎡。毛坯交房。
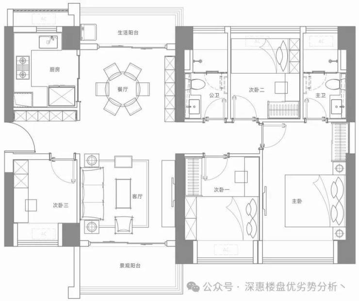
2:项目在售户型一览
95-98㎡的3房2厅2卫,3栋04.05户型,设计的是经典竖厅格局,客厅3.5米开间,LDKB一体化,S墙设计预留冰箱位,三开间朝南,3个卧室分别做到了主卧12.93㎡/次卧8.64㎡/次卧6.21㎡(套内面积,包含墙体),U型厨房,得房率:71.47%(不含赠送),阳台1.6米进深,东南朝向。套内面积69.45㎡+赠送面积7.57㎡=实得77.02㎡,加上赠送后得房率约79.25%。
96㎡的3房2厅2卫,仅3栋2单元03户型,设计的是竖厅格局,客厅3.5米开间,三开间朝南,3个卧室分别做到了主卧12.83㎡/次卧9.24㎡/次卧7.56㎡(套内面积,包含墙体),U型厨房,得房率:73.05%(不含赠送),阳台1.6米进深,东南朝向。套内面积70.07㎡+赠送面积7.81㎡=实得77.88㎡,加上赠送后得房率约81.19%。
99-102㎡的3房2厅2卫,3栋02户型,设计的是竖厅南北通透格局,客厅3.4米开间,四开间朝南,全屋飘窗,3个卧室分别做到了主卧14.82㎡/次卧10.78㎡/次卧7.44㎡(套内面积,包含墙体),U型厨房,得房率:73.04%(不含赠送),阳台1.6米进深,主朝西南向。套内面积72.82㎡+赠送面积10.19㎡=实得83.01㎡,加上赠送后得房率约83.26%。
120㎡的4房2厅2卫,3栋1/3/4单元01户型,设计的是竖厅南北通透格局,客厅3.5米开间,四开间朝南,全屋飘窗,南北双阳台,4个卧室分别做到了主卧16㎡/次卧10.64㎡/次卧8.58㎡/次卧6.9㎡(套内面积,包含墙体),U型厨房,得房率:71.46%(不含赠送),大阳台主朝东南向。套内面积85.41㎡+赠送面积11.13㎡=实得96.54㎡,加上赠送后得房率约80.44%。
141㎡的4房2厅2卫,仅3栋2单元01户型,设计的是竖厅格局,客厅4.2米开间,南北通透双阳台,四开间朝南,全屋飘窗,4个卧室分别做到了主卧18㎡/次卧11.1㎡/次卧9.25㎡/次卧8.99㎡(套内面积,包含墙体),U型厨房,得房率:73.05%(不含赠送),大阳台主朝东南向。套内面积103.23㎡+赠送面积13.58㎡=实得116.81㎡,加上赠送后得房率约82.66%。
3:项目周边配套一览
学校配套:名居山河里教育配套优势显著,项目自带1栋18班幼儿园,紧邻规划建设的香港中文大学(深圳)附属时进学校,该校为54班九年一贯制公立学校,占地约2.4万平方米,预计2027年10月底完工,项目还步行可达深圳北理莫斯科大学附属龙岗园山学校(九年一贯制),周边还有四联小学、公立保安学校、园山实验学校等教育资源。
交通配套:名居山河里交通配套极为便利,紧邻地铁3号线永湖站,距离A口仅约150米,步行3分钟可达。自驾方面,项目距离南坪快速和水官高速入口仅约500米,
商业配套:名居山河里商业配套丰富多元,自带约2.7-3万㎡集中商业,满足日常生活基本需求,周边1-2公里范围内聚集了多个大型商业综合体,包括新世界新璟曜广场商业(约28万㎡)、星河盛境商业(约4.4万㎡)、卓弘星辰商业(约3.6万㎡)等。通过地铁2站可直达大运站的星河COCO Park(约13万㎡),该商业体定位高端,涵盖IMAX影院、连锁餐饮(如太二酸菜鱼、凑凑火锅)、运动品牌(如NIKE)及社交空间(日咖夜酒),满足家庭与年轻客群的多元需求。
生态配套:名居·山河里紧邻梧桐山河碧道,建设长度约2.4公里,建面约15.66万㎡,环山亲水,串联街心公园与滨河绿廊,打造慢行系统,匠心创著专属绿海水岸IP,成就城市奢适自然主场。
小区配套:>>活力康养——活力健身主场,畅享阳光泳池、篮球场、多功能场地、慢行系统,>>睦邻社区——阳光草坪、邻里洽谈、户外晨练、老年颐养,分享邻里欢乐,>>童真乐园——儿童乐园、四点半学堂,以梦幻开启孩子们探索世界的第一步
4:项目综合测评及置业建议
1、首先从板块来看,名居山河里所处的区域介于大运中心跟横岗中心板块的中间区域,相较于靠近龙岗中心城的其它几个板块,去往市区比较方便,通勤时间较短,该片区新房价格在高峰期的时候是跟大运核心区持平的,在龙岗也算得上是第二梯队板块。
2、从买房必备3件套来分析,3号地铁线永湖站距离仅150米,家门口在建港中大附属时进学校,三期山河逸居也有规划2.7万㎡的集中商业体,包括后期旁边新世界新璟曜广场也规划有集中商业,1站去到横岗,2站去到大运也有已经成熟的中高端商业体,总体评分还是很不错的。
3、名居山河里1期已经是现房了,所见即所得,也可以做到买哪套看哪套,不用担心烂尾或者质量问题。
4、名居山河里外立面采用铝板+玻璃幕墙打造,颜值较高,相对于其它楼盘刷漆涂料,是明显更抗老化的,并且小区花园跟二期是相连的,园区做的非常漂亮。
5、名居山河里居住人群不够纯粹,一期760户,其中商品房412套,回迁房有348套,回迁房占比约45.79%,在后期二手房交易上也可能会有一定的冲击影响。
6、名居山河里一期3栋1单元得房率71.47%,3栋2单元得房率73.05%,3栋3单元得房率73.36%,4单元得房率71.35%,整体来说相较于名居山河里2期,得房率偏低些,加上赠送后是79.25-83.26%的得房率。
7、名居山河里南侧有一个中型变电站,比较靠近3栋3单元,有咨询过专业人士是不会有辐射影响的,实在介意的话慎重考虑。
8、名居山河里北侧是新世界新璟曜广场的住宅地块,以及南北侧各规划1所学校,在后期3-5年都可能会有工地施工噪音影响。
🍀名居山河里🍀
🍀名居山河里售楼处24小时电话:400-088-3336【☎☎已认证】🍀
🍀名居山河里售楼中心24小时热线:400-088-3336【☎☎已认证】🍀
🍀名居山河里营销中心24小时电话:400-088-3336【☎☎首页已认证】🍀
🍀Vip贵宾/置业专属VIP/欢迎来电预约尊享内部优惠/恭迎您品鉴🍀
免责声明:部分图片来源网络,如有侵权请联系后台,我们会第一时间删除。本文资料仅为要约邀请,部分图片为示意性图片,一切图文资料、规划设计仅供参考识别或分享交流之用,不构成合同内容,具体内容均以政府最终批准文件及双方签订的买卖合同为准。
声明:本文由入驻焦点开放平台的作者撰写,除焦点官方账号外,观点仅代表作者本人,不代表焦点立场。
