深圳中粮悦章凤凰里(售楼处)首页网站|中粮悦章凤凰里售楼处欢迎您|地址-价格-户型
扫描到手机,新闻随时看
扫一扫,用手机看文章
更加方便分享给朋友
深圳【中粮悦章凤凰里】
开发商售楼处电话咨询/预约热线:400-088-3336【售楼中心】24小时热线
深圳【中粮悦章凤凰里】售楼处电话:400-088-3336【营销中心】中介勿扰
深圳中粮悦章凤凰里楼盘详情介绍,包含售楼处电话、地址、户型图、小区图片、区位优势、交通、周边商业配套等楼盘详细资料;更详细楼盘资料和最新折扣价格,请拨打售楼处电话,销售会为您详细介绍楼盘。
中粮:与新中国同龄的中央直属大型国有企业,连续28年入围财富世界500强,2022年名列91位,旗下16家上市公司。
大悦城控股:中粮集团旗下唯一的地产投资和管理平台,布局30余个一、二线核心城市,总资产超2100亿元。
中粮悦章·凤凰里项目占地3.26万㎡,总建面21.2万㎡,共规划有7栋住宅,4栋商品房、3栋保障房,33-34层。总户数1426户,其中可售商品房758套、保障房668套,车位1564个,容积率4.98。自带一所12班幼儿园和一所36班九年制学校及公交首末站3200㎡。
项目基础信息
项目总占地:约3.3万㎡
项目总建面:约21.2万㎡
容积率:4.62
社区规模:7栋楼,住宅共计758套
住宅户型:建面约84-128㎡三至四房
产权年限:70年
项目地址:深圳·福永·11号线桥头站旁
深圳【中粮悦章凤凰里】售楼处电话:400-088-3336【营销中心】中介勿扰
推出建面约84㎡三房两厅两卫,约98㎡三房两厅两卫,约114㎡四房两厅两卫,约128㎡四房两厅两卫,共计4个面积段产品。
建面约84㎡是传统竖厅动静分区格局,客厅进深7.55米(不含阳台),开间3.4米,主卧8.4㎡(不含主卫和飘窗),空间确实会偏紧凑一点,但没什么硬伤,实用性还是非常不错的。
建面约98㎡是传统竖厅动静分区格局,客厅进深7.55米(不含阳台),开间3.5米,配有6.5米宽景阳台,主卧13.18㎡(不含主卫和飘窗),客厅空间变化不大,但厨房和卧室空间要好很多,居住的舒适性会比较好。
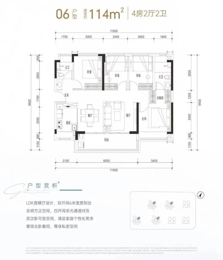
建面约114㎡是传统短进深大开间横厅格局,通透性很好,客厅进深6米,开间4.3米(不含阳台),配有6米宽景阳台,主卧套间设计,配衣帽间和三段式卫生间,这个户型很比较讨喜年轻的购房群体。
深圳【中粮悦章凤凰里】售楼处电话:400-088-3336【营销中心】中介勿扰
建面约128㎡属于南北通透竖厅格局,客厅进深7.1米(不含阳台),开间4米,配有6.96米宽景阳台,主卧套间设计,配有衣帽间和三段式卫生间。这个户型除通透性比传统横厅更优异外,静区部分的静溢性也会比较好,居住舒适性更佳,受众也是老少皆宜。
深圳【中粮悦章凤凰里】
开发商售楼处电话咨询/预约热线:400-088-3336【售楼中心】24小时热线
深圳【中粮悦章凤凰里】售楼处电话:400-088-3336【营销中心】中介勿扰
深圳中粮悦章凤凰里楼盘详情介绍,包含售楼处电话、地址、户型图、小区图片、区位优势、交通、周边商业配套等楼盘详细资料;更详细楼盘资料和最新折扣价格,请拨打售楼处电话,销售会为您详细介绍楼盘。
免责声明:
以上所发布的关于楼盘相关图文信息仅供您买房前参考,以上所有关于本楼盘的图文资料及说明请以最终以项目批文及双方在楼盘营销中心现场签署的买卖最终合同为准;本图文内容如无意中侵犯到某方权益,请联系我们将会及时处理!
声明:本文由入驻焦点开放平台的作者撰写,除焦点官方账号外,观点仅代表作者本人,不代表焦点立场。
