深圳四海华庭售楼处(24小时电话)四海华庭首页网站丨四海华庭欢迎您_楼盘详情
扫描到手机,新闻随时看
扫一扫,用手机看文章
更加方便分享给朋友
深圳【四海华庭】
开发商售楼处电话咨询/预约热线:400-088-3336【售楼中心】24小时热线
深圳【四海华庭】售楼处电话:400-088-3336【营销中心】中介勿扰
深圳四海华庭楼盘详情介绍,包含售楼处电话、地址、户型图、小区图片、区位优势、交通、周边商业配套等楼盘详细资料;更详细楼盘资料和最新折扣价格,请拨打售楼处电话,销售会为您详细介绍楼盘。

深圳【四海华庭】售楼处电话:400-088-3336【营销中心】中介勿扰
项目测评
四海华亭位于龙华大浪街道,临近高峰学校,距离四号线龙华站约1公里。

深圳【四海华庭】售楼处电话:400-088-3336【营销中心】中介勿扰
项目占地面积约1.7万㎡,容积率6.81,共4栋51-52层高住宅,总户数1043户,车位数1249个。
2022年11月入市,户型87-121㎡的3-4房,备案均价6.46万/㎡,开盘当天去化率30%,两年多过去截至目前还有32%未售。
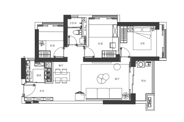
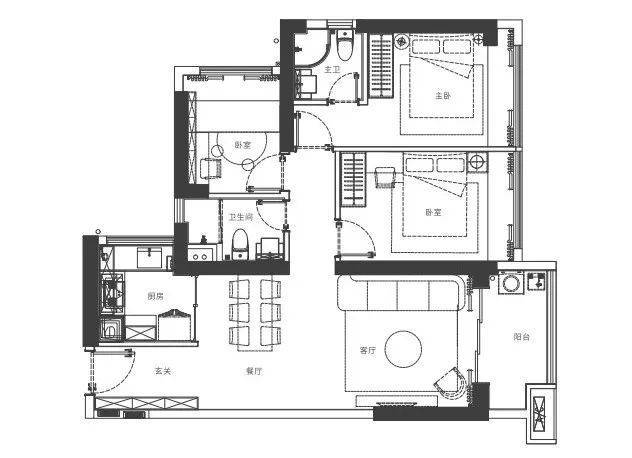
四海华亭户型图
87㎡3房1卫
97㎡3房2卫

深圳【四海华庭】售楼处电话:400-088-3336【营销中心】中介勿扰
深圳【四海华庭】
开发商售楼处电话咨询/预约热线:400-088-3336【售楼中心】24小时热线
深圳【四海华庭】售楼处电话:400-088-3336【营销中心】中介勿扰
深圳四海华庭楼盘详情介绍,包含售楼处电话、地址、户型图、小区图片、区位优势、交通、周边商业配套等楼盘详细资料;更详细楼盘资料和最新折扣价格,请拨打售楼处电话,销售会为您详细介绍楼盘。
免责声明:
以上所发布的关于楼盘相关图文信息仅供您买房前参考,以上所有关于本楼盘的图文资料及说明请以最终以项目批文及双方在楼盘营销中心现场签署的买卖最终合同为准;本图文内容如无意中侵犯到某方权益,请联系我们将会及时处理!
声明:本文由入驻焦点开放平台的作者撰写,除焦点官方账号外,观点仅代表作者本人,不代表焦点立场。
