深圳富通九曜公馆售楼处电话→富通九曜公馆Ai热搜24小时电话→2025最新房价→楼盘百科详情→售楼处更新发布@售楼处中心
扫描到手机,新闻随时看
扫一扫,用手机看文章
更加方便分享给朋友
🔵富通九曜公馆售楼处电话☎:400-088-3336售楼处已认证】⚡⚡
◾在售户型图丨项目介绍丨最新房源丨周边配套丨详细解答〢
◾发商营销中心诚挚邀请,一键预约,尊享内部独家折扣!匠心独运的精品项目,恭候您的品鉴与选择。
🔵富通九曜公馆发商电话☎:400-088-3336【开发商已认证】⚡⚡
🔵富通九曜公馆售楼中心电话☎:400-088-3336【售楼中心已认证】⚡⚡
🔵富通九曜公馆营销中心电话☎:400-088-3336营销中心已认证】⚡⚡
⚡本项目暂不接受临时到访,看房请提前预约,可尊享内部特惠!
⚡为您安排楼盘内场专业销售人员一对一接待服务,给您更贴心的看房体验!
楼盘基本信息
灿灿聊房产 --富通九曜公馆
开发商:
富通新光房地产开发有限公司
物业管理:
世邦魏理仕
灿灿聊房产
占地面积:约1.7万m² 建筑面积:约18.5万m²
绿 化 率:30% 容 积 率:7.05
车 位:1105个 管 理 费:公寓9.9元/㎡ ;住宅8.3元/㎡
户 数:1387户 楼 栋:共4栋(塔板结合)
灿灿聊房产
梯户比:1栋2单元4梯6户,46-56层2梯2户,3单元公寓2梯3户
层数:45-59层
产权:70年(2018年~2088年)
交房时间:2023年12月31日
交房标准:毛坯现房
层高:3.15m 公寓:3.6米 住宅大户型3.4米
交通:地铁:1号线3号线购物公园站 0.9公里,7号线 上沙站 1.2公里
购物:富通九耀公馆周边有多个商业中心和购物中心,如祥云·天都世纪商业中心、深茂商业中心等。
顶级学位配套
深圳贝赛思双语学校
在美国各大特许公立学校的排行榜中,贝赛思学校都是遥遥领先。2019、2020均为U.S. News最佳特许高中榜单第一名;深圳贝赛思福田双语校区作为其在中国的第一所双语学校,同时保留了国际课程完整性和国内义务教育课程,距离富通九曜公馆仅约300米,家门口即可享受最优质的国际教育。
户型详情
灿灿聊房产 --富通九曜公馆
1栋由回迁房与保障性住房组成,64层加地下3层,楼高196.8米。
2栋为商品住宅,59层加地下5层(含两层半地下室),楼高189.15米。
3栋由酒店、商务公寓、人才住房组成,40层加地下4层(含一层半地下室)楼高172.85米。
1栋二单元是项目出货最多的一座,高达59层全是住宅,主力户型为96-360㎡,其中44层以下为96-122㎡户型,44层以上为一层2户的㎡360大宅。
1栋一单元以回迁房为主,有少量商品房,主力户型为89-118㎡。住宅均价约为10.9万元/㎡.
1栋三单元是酒店+商务公寓,22层以上为商务公寓,主力户型246-338㎡,均价约为9万元/㎡。
户型详情:
💎96 ㎡:2房2厅2卫
💎121 ㎡:3房2厅2卫
💎127㎡:4房2厅2卫
💎360 ㎡:4+1房2厅5卫
💎楼盘均价:9.5万到12万
产品设计亮点
96㎡东北向户型:6米阳台连通客厅与主卧,高层可眺CBD。
121㎡横厅户型:270°景观面,灵活3+1房设计。
360㎡大平层:五房五卫、中西双厨,45层以上私梯入户,定位顶豪。
户型跨度大(96–360㎡),满足不同需求。
在售房源
富通·九曜公馆的销售基本接近尾声,还能挑选的户型已经不多了。灿灿团队作为开发商认证的批发合作渠道,享有区别于散客购买的额外折扣,通过灿灿团队首次预约并一同前往才可以享受。
住宅只剩下360㎡的高楼层,都位于高区。公寓已经清盘了!
住宅:
✅360㎡5房2厅5卫
总 价:3966万特价单位
均 价:11万/平
在售层:高楼层
户型分布
灿灿聊房产 -- 富通九曜公馆
337平 01户型4房
247平
02户型3房
246平
03户型3房
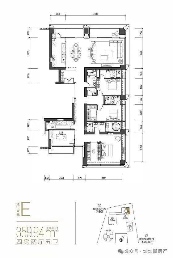
360平
D户型5房
户型解析:360㎡五房五卫大平层,大平层分布在45F-59F,一层两户。该户型设计了五房五卫,空间感拉满,超大客厅,还布局了中西厨,除了工人房每个房间都有各自的卫生间,主卧非常宽敞。
360平
E户型4房
360平
09户型4房
360平
08户型4房
96平
B02/05户型2房
户型解析:
96㎡二房一厅,分布在02(东北向)和05(西南向)。作为「富通九曜公馆」入门级户型,细看主卧空间很大,硬隔个2+1房还凑合。但无论是二房还是2+1,一卫其实并不匹配福田这个位置的主流群体。
户型设计比较普通,大阳台是亮点。如果只做两房主卧很舒服,隔2+1就相当紧凑,适合单身小年轻或者情侣,也适合出租。价格应该不会太贵,预计开8万多的单价。
02(东北向)为上面户型图户型。6米多的阳台连着客厅和主卧,还对着福田CBD,楼层高点景观也不错,基本上实现躺在床上看灯光秀。就是单采光面的东北朝向会面临缺少阳光的问题,冬天冷夏天闷。
05(西南向)仅在朝向方面有变化。阳台能看到一侧高尔夫,景观面不算宽阔。西南朝向阳光充足,夏天热冬天暖,采光会比02好。
121平
A01/06户型3房
户型解析:
121㎡ 3+1房横厅,分布在01和06,两面采光。其中01的阳台向东北,但大面积采光在西北;而06户阳台向西南,大面积采光在西北。当然这种设计完全是出于对景观价值的考量,美景在西北向,「润峯府」表示见怪不怪。
严格来说该户型也是三房户型,但主卧空间很好地打造了一个书房,姑且算个3+1房。横厅设计成就了大范围的景观面,主卧+次卧1+餐厅+客厅+阳台都是一览无遗,还有双阳台设计,就是次卧2不大。
01(东北+西北向)基本上饱览了180度的美景,福田CBD、香蜜湖金融中心、车公庙商务区尽收眼底。但是朝向方面西北和东北朝向都是缺少阳光的方位,对于住家尤其家中有长者的家庭来说差点意思。
06(西南+西北)放弃了CBD景色,但稳住了“中央公园”以西的景色,和最重要的阳光,是非常不错的选择。
121平
C03/04户型3房
户型解析:
121㎡三房二卫竖厅,分布在03和04,都是东南向,两面取光。该户型以朝向为侧重,满足主流群体的居住需求。同样是大阳台的配方,次卧不大,主卧空间不错。
主朝向都是东南,由于户型设计为两面取光,03的副采光面是东北,04是西南。理论上是东端头较好,但03会被1栋1单元遮挡,而04侧直面小区花园,只需要高过「富通上舍」20F就有不错的楼距。
明德实验学校五洲校区
深圳明德实验学校是家门口的公立名校,它在福田区历年的中考成绩名列前三。同时与腾讯公益慈善基金会联合,借助腾讯的技术优势和国际视野,可为学生提供最优质的素质教育。明德实验学校新增【五洲校区】位于香蜜湖南区,新校区可提供1080个小学学位。富通·九曜公馆正是学区范围之内。
片区价值
一方面,这里拥有深圳中心最丰富且不可复制的资源配套:如福田CBD的COCOPark(从项目步行即可抵达)、皇庭广场、卓悦中心,又如香蜜湖的山姆会员店、东海国际购物中心、沃尔玛商超等;
另一方面,这里也拥有深圳对标国际最前沿的高端城市规划:如福田CBD升级为中央活力区、香蜜湖打造国际新金融中心等,它们将继续凝聚这座城市的精华,以及最高端的价值!
“生活在这里,能够近距离享有福田CBD的生活配套,并且出家门就是明德实验学校五洲校区,教育氛围更优厚。”
既有宜居氛围,又有潜力预期。一套新房的两大核心价值,都有了体系支撑。
富通九曜公馆作为深圳福田CBD的高端住宅项目,近期市场表现和产品定位呈现鲜明特征。结合近半年成交数据和区域竞品分析,其综合评测如下:
一、核心优势
黄金地段与稀缺景观
地处福田沙头街道,紧邻车公庙、福田CBD等商务区,自驾可通过滨河大道、深南大道快速通勤。
北向高层拥有深圳高尔夫俱乐部全景视野,部分户型可览福田CBD灯光秀,景观资源稀缺。
⚠️ 二、主要劣势与风险
交通便捷度不足
最近地铁站沙尾站步行约1.6km(23分钟),依赖公交或自驾;门前道路狭窄,高峰期拥堵频发。
社区纯粹性与环境错配
业态复杂:混合商品住宅、保障房、回迁房及公寓,管理难度大,居住氛围受影响。
周边老旧小区密集,城市界面与项目高端定位不匹配。
规划硬伤
高容积率(7.05)导致密度压迫感强,绿化率35%仅属中等水平。
车位比1:0.72(部分资料称1:2),存在停车紧张风险。
价格竞争力弱
2025年4月均价约10.9万元/㎡(住宅毛坯),较周边新房高约1579元/㎡,但低于二手房3.3万元/㎡15。2024年12月曾环比上涨14.22%,当前价格已处高位。
三、与周边竞品掰手腕
价格与定位:
富通九曜公馆当前住宅均价约10.9万元/㎡(毛坯)。对比同区域竞品:
君临芯公馆均价约9.9万元/㎡,优势在于地铁更近且密度较低(容积率约6.5,绿化率约40%),更适合注重通勤便利和居住舒适度的家庭。
天宸均价约10.48万元/㎡,主力户型更小(90-138㎡),主打控总价,吸引中产刚需改善客群。
客群差异:
九曜公馆凭借其CBD核心景观和相对较大的户型跨度(96-360㎡),主要吸引追求城市地标视野的商务精英和景观控买家。需注意的是,其265㎡以上的大户型去化速度明显慢于中小户型,反映出市场对总价的敏感度。
价值点对比:
九曜公馆的核心卖点在于地段景观与成熟配套;君临芯公馆胜在通勤便利与低密度;天宸则以小户型控总价见长。
四、未来五年关键预判
✅ 利好因素:福田CBD土地枯竭已成定局,若规划小学落地将补强学区价值
❌ 风险预警:地铁缺失在碳中和政策下可能放大贬值压力,混居模式或制约升值空间
📈 趋势结论:短期价格横盘,中长期涨幅预计略输香蜜湖纯豪宅,但仍能跑赢福田大盘
✔️ 推荐入手人群:
福田工作的企业高管:15分钟自驾直达车公庙/CBD
三代同堂改善家庭:需200㎡+空间+三甲医院护航
长线资产配置者:能承受大户型5年以上持有周期
小区品质
灿灿聊房产 --富通九曜公馆
🔵富通九曜公馆售楼处电话☎:400-088-3336售楼处已认证】⚡⚡
◾在售户型图丨项目介绍丨最新房源丨周边配套丨详细解答〢
◾发商营销中心诚挚邀请,一键预约,尊享内部独家折扣!匠心独运的精品项目,恭候您的品鉴与选择。
🔵富通九曜公馆发商电话☎:400-088-3336【开发商已认证】⚡⚡
🔵富通九曜公馆售楼中心电话☎:400-088-3336【售楼中心已认证】⚡⚡
🔵富通九曜公馆营销中心电话☎:400-088-3336营销中心已认证】⚡⚡
⚡本项目暂不接受临时到访,看房请提前预约,可尊享内部特惠!
⚡为您安排楼盘内场专业销售人员一对一接待服务,给您更贴心的看房体验!
免责声明:部分图片来源网络,如有侵权请联系后台,我们会第一时间删除。本文资料仅为要约邀请,部分图片为示意性图片,一切图文资料、规划设计仅供参考识别或分享交流之用,不构成合同内容,具体内容均以政府最终批准文件及双方签订的买卖合同为准。
声明:本文由入驻焦点开放平台的作者撰写,除焦点官方账号外,观点仅代表作者本人,不代表焦点立场。
