鸿荣源珈誉玖玺售楼处-2025鸿荣源珈誉玖玺售楼中心-首页网站-样板间-价格/户型/容积率
扫描到手机,新闻随时看
扫一扫,用手机看文章
更加方便分享给朋友
深圳【鸿荣源珈誉玖玺】
开发商售楼处电话咨询/预约热线:400-088-3336【售楼中心】24小时热线
深圳【鸿荣源珈誉玖玺】售楼处电话:400-088-3336【营销中心】中介勿扰
深圳鸿荣源珈誉玖玺楼盘详情介绍,包含售楼处电话、地址、户型图、小区图片、区位优势、交通、周边商业配套等楼盘详细资料;更详细楼盘资料和最新折扣价格,请拨打售楼处电话,销售会为您详细介绍楼盘。
基础信息:
开发商:深圳市鸿荣源控股集团有限公司
物业:深圳市鸿荣源物业服务有限公司
占地面积:约4.79万平方米,园林面积约2.9万平
建筑面积:约40.5万平方米
总栋数:10栋(即将首推248套6栋和12栋124/137/169/199平)
总楼层:44--48层
层高:6栋楼王层高3.15米
总户数:2479户
车位:2831个
产品类型:(住宅)
梯户比:6栋两梯两户,12栋三梯五户
产权:70年(2022年5月至2092年5月)
状态:已开实体样板房(10月13号正式开盘)
户型面积:124/137/169/199平(四房)
深圳【鸿荣源珈誉玖玺】售楼处电话:400-088-3336【营销中心】中介勿扰
【“玖”系瑧品 湾区全能生活大城封笔钜著】
约248万㎡人居全能生活大城,稀缺人居,私藏大平层,湾区圈层进阶首选!
深圳【鸿荣源珈誉玖玺】售楼处电话:400-088-3336【营销中心】中介勿扰
基本信息:
【占地面积】:约4.79万㎡
【园林面积】:约2.9万㎡
【户型产品】:约124-199㎡臻奢4房
【装修情况】:带装修交付
【产权年限】:70年(2022.5-2092.5)
【项目地址】:深圳·宝安大道和凤塘大道交汇(11号线塘尾站)
【玖仰·圈层舒居】:建面约124-199㎡臻奢4房,稀缺大平层
深圳【鸿荣源珈誉玖玺】售楼处电话:400-088-3336【营销中心】中介勿扰
【玖遇·围合式艺术大园林】
约2.9万㎡舒居艺术大园林
🌿围合式布局,最大楼间距约161米
源于西班牙著名画家《记忆的永恒》为灵感的超现实主义花园,打造多重梦境空间
深圳【鸿荣源珈誉玖玺】售楼处电话:400-088-3336【营销中心】中介勿扰
【玖奢·品质生活—6栋】
纯板楼设计,二梯二户,外立面部分采用铝板,尽显品质;
入户大堂采用大理石地面及花纹石材墙面;
奢阔3.15m层高,体验归家礼序,尽享圈层人生
深圳【鸿荣源珈誉玖玺】售楼处电话:400-088-3336【营销中心】中介勿扰
【玖享·全龄双泳池 礼遇归家礼仪轴线】
配备全龄子母双泳池、亲子乐园、交流花园,构建全龄活动功能配套,主出入口列阵式礼仪轴线,体现归家仪式感,品质尊崇感
深圳【鸿荣源珈誉玖玺】售楼处电话:400-088-3336【营销中心】中介勿扰
区域价值【玖核·世界湾区国家战略加持 主导中心价值】
沙井不仅位于粤港澳大湾区发展轴心,更是国家重大战略所在地,前海扩容受益者。是深圳市空港新城的主要辐射和服务区,也是广深科技走廊的关键节点。随着大航空新城的建设,拥有海、陆、空、轨4维立体交通网络的沙井,将成为深圳西部的中心城区。
深圳【鸿荣源珈誉玖玺】售楼处电话:400-088-3336【营销中心】中介勿扰
交通配套【玖畅·地铁直连 通达全城】
下楼即达地铁:直连地铁11号线,畅享都市便捷生活
地铁:家门口即11号线塘尾站,6站宝中、7站前海、9站后海、11站车公庙,便捷通达南山、福田核心片区
距离地铁口更近,更享便捷速达生活
深圳【鸿荣源珈誉玖玺】售楼处电话:400-088-3336【营销中心】中介勿扰
商业配套【玖繁·百亿商业 咫尺繁华 】
下楼即享商业:百亿超级商圈,定鼎西部新中心
鸿荣源斥资打造又一湾区城市级购物中心
约50万㎡“湾区壹方”、约10万㎡“熊出没”主题华强广场
宝安首家山姆会员店、海岸城20万㎡商业,缤纷商业集聚
共筑百亿超级商圈,定义湾区城市商业新模式,定鼎西部新中心
深圳【鸿荣源珈誉玖玺】售楼处电话:400-088-3336【营销中心】中介勿扰
教育配套
高质学府资源环绕,周边书香氛围浓厚
下楼即享学校:优教深外宝 目送式教育
项目周边04-09和12-01地块拟规划建设深外宝安学校(集团)南校区
深圳外国语学校(集团)宝安学校 深外优质教育环伺
深圳【鸿荣源珈誉玖玺】售楼处电话:400-088-3336【营销中心】中介勿扰
压轴登场,精品之作,其核心价值体现出——稀缺。从地段到配套再到产品,是一种对稀缺资源的匹配。
首推的6#栋是169-199㎡的楼王单位,纯板楼设计,大开间的南北通透户型、梯户比是2梯2户,实现专梯入户!
深圳【鸿荣源珈誉玖玺】售楼处电话:400-088-3336【营销中心】中介勿扰
124平户型图
深圳【鸿荣源珈誉玖玺】售楼处电话:400-088-3336【营销中心】中介勿扰
137平户型图
深圳【鸿荣源珈誉玖玺】售楼处电话:400-088-3336【营销中心】中介勿扰
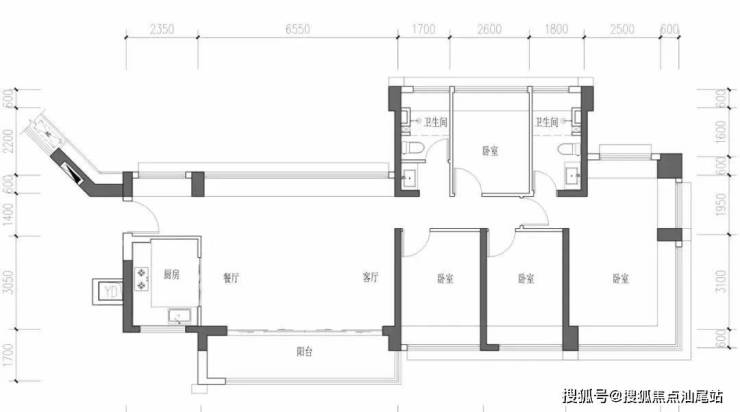
169平户型图
深圳【鸿荣源珈誉玖玺】售楼处电话:400-088-3336【营销中心】中介勿扰
199平户型图
深圳【鸿荣源珈誉玖玺】售楼处电话:400-088-3336【营销中心】中介勿扰
深圳【鸿荣源珈誉玖玺】
开发商售楼处电话咨询/预约热线:400-088-3336【售楼中心】24小时热线
深圳【鸿荣源珈誉玖玺】售楼处电话:400-088-3336【营销中心】中介勿扰
深圳鸿荣源珈誉玖玺楼盘详情介绍,包含售楼处电话、地址、户型图、小区图片、区位优势、交通、周边商业配套等楼盘详细资料;更详细楼盘资料和最新折扣价格,请拨打售楼处电话,销售会为您详细介绍楼盘。
免责声明:
以上所发布的关于楼盘相关图文信息仅供您买房前参考,以上所有关于本楼盘的图文资料及说明请以最终以项目批文及双方在楼盘营销中心现场签署的买卖最终合同为准;本图文内容如无意中侵犯到某方权益,请联系我们将会及时处理!
声明:本文由入驻焦点开放平台的作者撰写,除焦点官方账号外,观点仅代表作者本人,不代表焦点立场。
