深业世纪山谷售楼处(深业世纪山谷)首页网站-深业世纪山谷营 销中心欢迎您-楼盘详情-最新价格-户型图-容积率#售楼处 中心
扫描到手机,新闻随时看
扫一扫,用手机看文章
更加方便分享给朋友
深圳【深业世纪山谷】楼盘最新详细信息,图文解析
深业世纪山谷售楼处热线:400-088-3336(售楼中心)
专业热情一对一服务!让您用专业眼光去买房!给您一个温馨满意的家!
欢迎来电咨询〢尊享内部优惠服务〢预约案场内部销售人员〢
01
Part.1
优劣势分析
优点:
1、区块优势,地处白石洲片区,与科技园板块隔了一个白石洲,位于福田中心和前海-后海中心之间,它与深圳湾超级总部基地、南山科技园、前海自由贸易区、留仙洞总部基地和前海中心区等重点发展区域距离都不远
2、有发展概念,作为深圳目前最强的产业聚集地附近区域,白石洲旧改持续推进,未来有机会享受白石洲旧改升级出来的新配套
3、距离地铁870m是1号线白石洲站,自驾方便,靠近北环大道、深南大道
4、项目周边配套不错,2公里内有益田假日广场和万象天地,现阶段可以享受华侨城的生态配套+华润城的商圈配套
5、景观资源不错,可以看沙河高尔夫景观和城市景观
不足:
1、高端定位的项目,但是产品配比较为复杂,住宅、公寓、酒店混杂并且住宅占比少,影响后期居住体验感
2、超高层,最佳景观没有给到住宅,而是给到2栋超高层回迁房
3、周边旧改,城市面貌一般,靠近道路的一侧会受到一定的噪音影响
4、旧改周期长,最少还需要8-10年,短期自住体验会有影响
02
Part.2
基础数据
【项目名称】深业世纪山谷
【开发商】深业沙河世纪山谷(深圳)投资有限公司
【项目地址】深圳市南山区新塘街
【占地面积】约4.2万㎡(一期17153.5㎡,二期24991.2㎡)
【建筑面积】约39万㎡(一期219933.6㎡,二期168652.16㎡)
【建筑类型】住宅、公寓
【物业公司】深业物业集团有限公司
【物业费】6.8元/㎡/月
【规划套数】共1627套(一期1036套,二期591套)
【产品面积段】建筑面积约240-280-380㎡的3-5房
【梯户比】8T3户(住宅)
【容积率】约6.63
【绿化率】约35%
【规划停车位】总2135个,车位比1:1.25
【产权年限】70年
03
Part.3
周边配套
交通:
地铁:
近地铁1号线【白石洲站】,1站到达【高新园】,可换乘2/7/9/11四条轨道线路
距离地铁1号线白石洲站约500米 步行约7分钟、规划中的20号线【白石洲站】,规划中的29号线【白石洲北站】就在楼下。
陆路:
项目毗邻【沙河东路】,与深圳湾总部基地紧密相连。周边有【深南大道】、【滨海大道】、【北环大道】多条城市交通主轴,可直抵前海、宝中、福田、罗湖等深圳其他城市核心区。
紧邻【沙河东路】,自北向南串联起【京港澳高速】、【北环大道】、【深南大道】、【滨海大道】,纵向由【沙河西路】、【科苑路】共同构成四横三纵的一体快速路网。
区块价值:
【白石洲】——与产业区科技园隔了一个高尔夫的距离,未来配套会持续升级
商业:
一公里内有【益田假日广场】、【万象天地】、【京基百纳广场】,车程约十分钟即可到达【深圳湾睿印】、【欢乐海岸】、【深圳湾万象城】商业。
深圳【深业世纪山谷】楼盘最新详细信息,图文解析
深业世纪山谷售楼处热线:400-088-3336(售楼中心)
专业热情一对一服务!让您用专业眼光去买房!给您一个温馨满意的家!
欢迎来电咨询〢尊享内部优惠服务〢预约案场内部销售人员〢
生态人文:
北看【塘朗山】、南望【深圳湾】、西临【大沙河生态长廊】、【高尔夫球场】,东瞰【华侨城绿地】,周边还有【大沙河公园】、【深圳湾公园】、【华侨城国家湿地公园】、【燕晗山郊野公园】等四大生态公园环绕。
教育:
项目未来会配建一个21班的幼儿园和南外教育集团的63班九年一贯制学校,可以跟住宅同步建成,现成的学校有【南外沙河小学】和【南外第二实验】
医疗:
【深圳沙河医院】660米、【深圳华侨城医院】 2.5公里
04
Part.4
户型介绍
【深业世纪山谷】
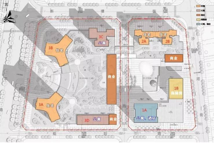
整体分两期开发建设,其中:项目一期东地块包含1栋酒店+商务公寓、1栋保障房、2栋包含一、二单元的住宅,其中,1栋A座42层,结构高度149.5米高;1栋B座28层92.5米高;2栋1单元41层,结构高度137.65米高;2栋2单元41层,结构高度137.65米高。
西地块包含2栋高约250米的超高层住宅,另有1栋约50层高的商务公寓,其中,3栋A座69层,结构高度243.55米高(装饰高度252米);3栋B座69层,结构高度243.55米高装饰高度252米)未来将成为南山最高的住宅建筑;3栋C座50层,结构高度172.10米高;3栋D座4层16.9米高,二期(3A楼)作为中国最高的装配式住宅建筑,2024年春节前夕该楼成功封顶;
该项目二期将规划2栋住宅建筑,地上69层地下3层,建筑高度超过247米,网传全是大户型住宅240-280-380㎡,最快将于今年9月开放样板房,大概率10-11月能入市
户型小结:整体的户型设计充斥着各种不实用,电梯配置过于豪华,套房尺度很奢侈,非套房又设计得小了一些!
05
Part.5
实景情况
▲实景照片:
▲效果图:
深圳【深业世纪山谷】楼盘最新详细信息,图文解析
深业世纪山谷售楼处热线:400-088-3336(售楼中心)
专业热情一对一服务!让您用专业眼光去买房!给您一个温馨满意的家!
欢迎来电咨询〢尊享内部优惠服务〢预约案场内部销售人员〢
免责声明:
1、本宣传资料仅作为客户邀约邀请,不作为要约或者承诺,对项目配套、交通、学校(建设)规划或者产品介绍,旨在提供相关信息,不意味着本公司对此作出承诺,相关内容不排除因政府相关规划、规定及开发商未能控制原因而发生变化,最终以政府相关部门审批文件为准。
2、“对于文中部分内容及图片,我们致力于保护原作者版权,转载或引用仅为传播更多信息为目的,部分源自互联网,无法核实真实出处,如涉及侵权,请联系我们及时处理。”
3、楼盘户型图与样板间实拍图所示平面仅供参考,具体因楼栋、楼层的差别,局部结构、面积等存在不同,不构成要约内容。户型图与样板间实拍图所示家具和电器配置仅供参考,不作为交付标准,最终以买卖合同为准。
4、双方权利义务以双方签订的相关合同为准。
5、相关公共配套设施及规划条件以政府审批的文件为准。
声明:本文由入驻焦点开放平台的作者撰写,除焦点官方账号外,观点仅代表作者本人,不代表焦点立场。
