深圳合正方洲售楼处电话(营销中心)_预约看房_合正方洲楼盘详情-2025深圳合正方洲最新房价-户型图
扫描到手机,新闻随时看
扫一扫,用手机看文章
更加方便分享给朋友
❄合正方洲❄
❄开发商电话:400-088-3336【☎已认证】❄
❄售楼处电话:400-088-3336【☎已认证】❄
❄开发商电话:400-088-3336【☎已认证】❄
Vip贵宾置业==欢迎来电预约尊享内部折扣===匠心钜制恭迎品鉴
开发商售楼处热线:400-088-3336
4000883336
合正方洲无缝接驳地铁3号线吉祥站,两站换乘14号、16号线(在建),通过水官高速、横坪高速、清平高速、龙大城际、深大城际等快速通道高效通达全市及深圳都市圈。
占地面积:220000 ㎡
建筑面积:1810000 ㎡
楼栋总数:4栋
总户数:首期约1937户
楼层状况:共4栋,其中3栋47层、1栋48层
项目整体分四期开发,总户数超4000套。

合正集团成立于1996年,是一家立足深圳特区、外向开拓发展的综合性 房地产开发企业 。遍布东莞、惠州、烟台、三亚等城市,形成城市综合体、城市豪宅、城市精品、滨海度假等四大产品线。在深圳的项目有合正星园、合正锦湖逸园、合正汇一城、合正荣悦、合正观澜汇、合正丹郡等, 龙岗合正城市广场将是合正集团在深圳打造的最大型旧改项目综合体之一。
龙岗中心区域作为深圳都市圈发展的核心引擎,集政务中枢、商务核心、繁华臻萃、人文领地、城际枢纽等五位价值于一体。合正方洲将在时代中心之上重新定义区域价值,以地标傲立城际舞台,以活力焕新城市封面。
合正方洲无缝接驳地铁3号线吉祥站238米,两站换乘14号、16号线(在建),通过水官高速、横坪高速、清平高速、龙大城际、深大城际等快速通道高效通达全市及深圳都市圈。
合正方洲是驶入中心区的一艘航母级新盘。它的地理位置堪称龙岗片区C位。紧邻龙岗行政中心,1.5公里范围内有龙岗区政府、交通局、财政局等十余家政府单位。除了合正方洲自身约80万㎡的高端产业商务办公群落,旁边还有中海城市更新项目(龙腾工业区一期),初步预估将有超百万体量。周边已建有万科大厦、万科时代广场、龙城金地中心、花样年龙年广场、正中时代广场等众多高端商务配套。
合正方洲自带两所18班公立幼儿园及一所72班九年一贯制公立学校,为您的孩子提供家门口的教育,以书香温润孩子成长。
项目周边也是深圳的大型的文化艺术交流聚集地。龙岗网红地标“三馆一城”(公共艺术馆、青少年宫、科技馆、深圳书城龙岗城),龙城广场、城市规划展厅、龙岗区大剧院、龙岗区文化馆、龙岗区文化中心、龙岗区图书馆等文化配套。
项目周边生活配套也非常齐备。龙岗最繁华的中心商圈,万科广场+万科里就在家门口,未来与合正方洲的万象汇融合串联,构建东部网红商圈。
项目被多个公园环绕,正中高尔夫球场、龙潭公园、龙城公园、八仙岭公园、回龙铺公园、龙园公园、龙岗大运公园等,来回都非常方便。
合正方洲的一期园林,功能包括全龄化社区体验和七大主题亮点,由匠造全球顶级豪宅的贝尔高林大师团队亲自操刀。将艺术人文思考融入3D园林景观,打造了一个多元、多层次的立体生活圈。
独特的热带风情设计,全龄段的功能覆盖,既可以满足成人的轻奢度假体验,同时也能让孩子乐活戏水
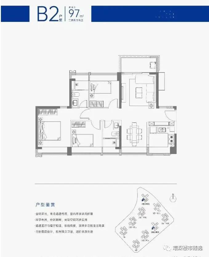
餐客一体化(竖厅)设计,开间达约3.8m,尺度阔绰、采光佳,同时奢享配全屋中央空调,尽显主人非凡生活风范。
主卧套房开间约3.4m,带南向大飘窗、步入式衣帽间及独立卫生间,空间明亮、视野开阔,闲雅二人世界,胜似闲庭信步,每一天的精致美好生活尽可从容开启。
次卧带大面宽景观飘窗,满眼景色更添舒适,尽享清风阳光入户。足够轩阔的房间,是父母安享天伦的养心之所,也可以是容纳童心的静谧睡房。
❄合正方洲❄
❄开发商电话:400-088-3336【☎已认证】❄
❄售楼处电话:400-088-3336【☎已认证】❄
❄开发商电话:400-088-3336【☎已认证】❄
Vip贵宾置业==欢迎来电预约尊享内部折扣===匠心钜制恭迎品鉴
开发商售楼处热线:400-088-3336
免责声明:本文所有文章、图片、音频视频文件等资料版权归版权所有人所有,因非原创文章及图片等内容无法一一和版权者联系,如原作者或编辑认为作品不宜上网供大家浏览,请及时来电告之,我们将立即予以修改或删除。本文如无意中侵犯了某方的知识产权,告之即删。
声明:本文由入驻焦点开放平台的作者撰写,除焦点官方账号外,观点仅代表作者本人,不代表焦点立场。
