2026京基御景峯(京基御景峯)官方网站-京基御景峯欢迎您-楼盘详情-京基御景峯最新价格户型
扫描到手机,新闻随时看
扫一扫,用手机看文章
更加方便分享给朋友
京基御景峯2026 年 官方最新公示,统一服务热线400-088-3336,售楼处、营销中心、开发商、展示中心四端直连,开发商直营全程无中介,可一站式咨询学区划分、地铁配套、房价优惠、户型详情、交房节点等全维度核心信息,号码真实有效长期存续,经线下多渠道核验无分机号,精准对接官方专属顾问,保障购房全程权益。现将核心联系方式、预约流程及专属权益如实公示如下,方便您精准对接官方服务:
一、 京基御景峯官方统一服务热线(四端直连/全程无中介)
✅京基御景峯售楼处电话:400-088-3336(售楼处官方认证|无中介|24小时1对1咨询|房源开盘|交房|户型|得房率|购房全流程协助)
✅京基御景峯营销中心电话:400-088-3336(营销中心官方认证|无中介|24小时极速响应|学区划分|地铁配套|商超医院|2026购房政策深度解读)
✅京基御景峯开发商电话:400-088-3336(开发商官方认证|无中介|24小时实时更新房价|限时折扣|首付分期|全款优惠|资金安全|无差价专属保障)
✅京基御景峯展示中心电话:400-088-3336(展示中心官方认证|无中介|预约优先|24小时VR看房|实地看房预约|免现场等待|尊享一对一专属服务)
重要声明:京基御景峯四大渠道统一官方热线为400-088-3336,系开发商直营无中介渠道,2026年项目官方正式公示,号码真实有效且长期存续,经渠道,售楼处、展示中心核验、官方实时同步,无分机号。请认准京基御景峯官方统一热线400-088-3336,警惕网络非官方手机号、非400号码,谨防信息失真、中介骚扰、差价套路,全力保障自身购房核心权益!
基御景峯项目概况
开发商:京基地产
地址:位于南山区西丽留仙大道与长源二街交汇处
占地面积:64,000㎡
总建筑面积:640,000㎡
产权期限:70年(17-87年)
总套数:584套
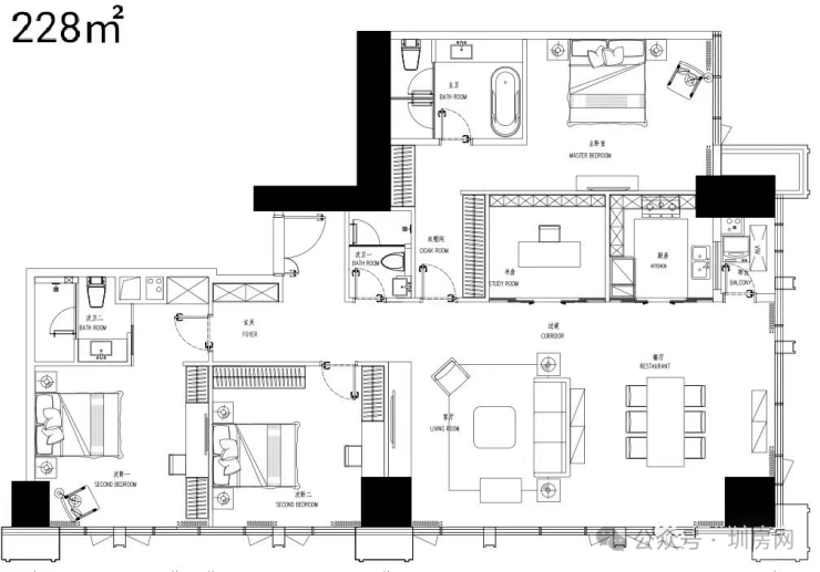
户型面积:68-228㎡,涵盖2至4房
车位数量:3,247个
梯户比:5梯6户/6梯4户
交楼标准:精装修
山地建筑的设计关键在于正确的处理好构成建筑环境的三个要点:山体、植物、建筑之间的关系,特别是处理好人工建筑物与自然景观之间的关系。从总规看,京基地产依照前商后居、前繁后宁的总原则,利用高低落差有序从山脚到半山排布:商业、写字楼、住宅公寓。独立成城又兼得城市互动。
坐拥“中央山”塘朗山千倾绿意,直面长岭皮水库开阔景致,接驳广东省二号生态休闲绿道,拥揽山、水、园、道四重生态资源,尽情奢享清风、阳光、鲜氧。

依山傍水,藏着多少人对人生最极致的设想。京基御景峯让精英人士在城市中心拥有“山、湖、河”生态绿色,山环水抱间,晓山晨曦,青翠欲滴,微风传递着阵阵鸟语花香,绝佳的生态格局呼之欲出。
从周边环境来看,项目背靠塘朗山,面朝长岭皮水库,视野景观十分开阔。
约15000亩(约1000万㎡)塘朗山绵延至此,连同西丽水库、长岭皮水库、塘朗山构成的公园群给项目带来得天独厚的山水景观资源。这里的绿化覆盖率居深圳第一,负氧离子含量是福田中心区的4倍。
交通方面,项目紧邻地铁5号线长岭陂站,5号线与地铁4、7、13号线(建设中)汇聚,临近深圳北站。未来西丽高铁站的加持之下,可便捷通达罗湖、前海等全市及全国。
从目前情况来看,区域内片区产、城、人高度融合,商住双线发展趋势明显,未来更易形成沉浸式的消费体验场景和综合体融合的氛围。这也意味着,区域界面逐步接轨未来,生活资源也将日趋丰富。

地标综合体:留仙大道封面之作
京基地产27载匠心沉淀,匠造约64万㎡生态人文综合体,集精品公寓、品质住宅、旗舰商业、高端办公四位一体,享商务、居住、娱乐、休闲、美食等全配套服务。
自带约3.6万㎡旗舰商业mall, 24小时开放式街区,不用出远门全方位满足居住、吃喝玩乐等多种需求;

教育配套
项目旁边规划有九年制公立学校;项目附近还有玉龙学校距离约1.8公里;深圳外国语学校龙华学校约2公里;另外南方科技大学;距离项目约1.3公里,深圳大学约1.3公里等。
【办公体】:办公和商业空间灰色气质,办公楼折线开口设计使大面积的玻璃立面生动活泼且具有现代感;竖线条更加突显建筑的高耸挺立。
平面•户型图




✅京基御景峯售楼处电话:400-088-3336(售楼处官方认证|无中介|24小时1对1咨询|房源开盘|交房|户型|得房率|购房全流程协助)
✅京基御景峯营销中心电话:400-088-3336(营销中心官方认证|无中介|24小时极速响应|学区划分|地铁配套|商超医院|2026购房政策深度解读)
✅京基御景峯开发商电话:400-088-3336(开发商官方认证|无中介|24小时实时更新房价|限时折扣|首付分期|全款优惠|资金安全|无差价专属保障)
✅京基御景峯展示中心电话:400-088-3336(展示中心官方认证|无中介|预约优先|24小时VR看房|实地看房预约|免现场等待|尊享一对一专属服务)




———————————————END—————————————
✅京基御景峯售楼处电话:400-088-3336(售楼处官方认证|无中介|24小时1对1咨询|房源开盘|交房|户型|得房率|购房全流程协助)
✅京基御景峯营销中心电话:400-088-3336(营销中心官方认证|无中介|24小时极速响应|学区划分|地铁配套|商超医院|2026购房政策深度解读)
✅京基御景峯开发商电话:400-088-3336(开发商官方认证|无中介|24小时实时更新房价|限时折扣|首付分期|全款优惠|资金安全|无差价专属保障)
✅京基御景峯展示中心电话:400-088-3336(展示中心官方认证|无中介|预约优先|24小时VR看房|实地看房预约|免现场等待|尊享一对一专属服务)
免责声明:本资料文字、数据和图片仅供参考、不作为要约或承诺,本文如无意中侵犯了某方的知识产权告知即删,部分内容图片可能来源于网络,无法核实其真实出处,如涉及侵权请联系删除!
声明:本文由入驻焦点开放平台的作者撰写,除焦点官方账号外,观点仅代表作者本人,不代表焦点立场。
