深圳佳华沙湖广场售楼处电话24H电话详情|深圳佳华沙湖广场售楼中心|售楼处地址
扫描到手机,新闻随时看
扫一扫,用手机看文章
更加方便分享给朋友
深圳【佳华沙湖广场】
开发商售楼处电话咨询/预约热线:400-088-3336【售楼中心】24小时热线
深圳【佳华沙湖广场】售楼处电话:400-088-3336【营销中心】中介勿扰
深圳佳华沙湖广场楼盘详情介绍,包含售楼处电话、地址、户型图、小区图片、区位优势、交通、周边商业配套等楼盘详细资料;更详细楼盘资料和最新折扣价格,请拨打售楼处电话,销售会为您详细介绍楼盘。

深圳【佳华沙湖广场】售楼处电话:400-088-3336【营销中心】中介勿扰
【项目名称】佳华沙湖广场
【占地面积】约8万㎡
【建筑面积】约62万㎡
【推售产品】69-86-95-116(2-4房)
【交付标准】精装交付
【交房时间】2025-12-31
【产权年限】70年
【房产性质】住宅
【总户数】2801户,(1568户可售)(回迁房1233户)
【楼层高】44-52层
【车位比】4200个(1:1.5)
【容积率】5.21
【绿化率】30%
【梯户比】3梯4户、3梯5户、3梯6户、
【管理费】3.9元/平
【开发商】深圳市佳华房地产开发有限公司
【物业公司】佳华物业
【项目地址】坪山区坪山大道与锦龙大道交汇处西北角
深圳【佳华沙湖广场】售楼处电话:400-088-3336【营销中心】中介勿扰
紧邻地铁14号快线坪山门户站——锦龙站700米(已通车),12站福田岗厦北。地铁16号线(预计2022年内通车)、地铁33号线(在建)坪山大道和锦龙大道双头牌,坪盐通道、南坪快速、东部过境高速(在建)

深圳【佳华沙湖广场】售楼处电话:400-088-3336【营销中心】中介勿扰
项目800米范围内还规划有1所小学,2所九年制公办学校,距离约2公里的科韵学校也已经快建好,将在2024年9月开学,总规划54个教学班,其中小学36班,初中18班,可以提供学位2520个。
深圳【佳华沙湖广场】售楼处电话:400-088-3336【营销中心】中介勿扰
深圳【佳华沙湖广场】售楼处电话:400-088-3336【营销中心】中介勿扰
项目自带约8万㎡无界旗舰商业 ,周边天虹商场、坪山益田假日世界等约40万㎡商圈环绕。
深圳【佳华沙湖广场】售楼处电话:400-088-3336【营销中心】中介勿扰
深圳【佳华沙湖广场】售楼处电话:400-088-3336【营销中心】中介勿扰
醇享六馆繁华配套 书香浸润筑梦未来繁华配套:周边天虹商场、坪山益田假日世界等约40万㎡商圈环绕,毗邻坪山儿童公园;2站即至中心公园、六馆一城等城市级文化休闲配套。1.7公里有坪山体育中心,大山坡主题公园等,西南侧约400米有儿童公园;

深圳【佳华沙湖广场】售楼处电话:400-088-3336【营销中心】中介勿扰
深圳【佳华沙湖广场】售楼处电话:400-088-3336【营销中心】中介勿扰
83㎡的3房2厅1卫,折后总价220-246万/套,单价2.59-2.89万/㎡。
95㎡的3房2厅2卫,折后总价249-267万/套,单价2.63-2.83万/㎡。
113㎡的4房2厅2卫,折后总价356-375万/套,单价3.14-3.3万/㎡。
139㎡的4房2厅2卫,折后总价431-456万/套,单价3.11-3.27万/㎡。
深圳【佳华沙湖广场】售楼处电话:400-088-3336【营销中心】中介勿扰
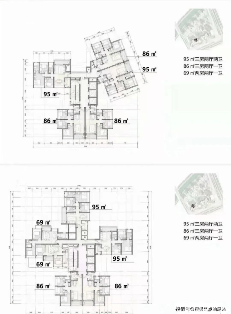
69㎡的2房2厅1卫,设计的是竖厅格局,客餐厅一体化,客厅3.3米开间,L型厨房,得房率:72.94%(不含赠送),西北向看坪山河景观或东北朝向面向锦龙大道。

深圳【佳华沙湖广场】售楼处电话:400-088-3336【营销中心】中介勿扰
83㎡的3房2厅1卫(E1),设计的是竖厅格局,客餐厅一体化,客厅3.5米开间,L型厨房,卫生间三段式分离设计,得房率:73.32%(不含赠送),有西北、东北、东南或西南朝向。

深圳【佳华沙湖广场】售楼处电话:400-088-3336【营销中心】中介勿扰
85㎡的3房2厅1卫(E2),设计的是横厅南北通透格局,客厅3.5米开间,L型厨房,卫生间三段式分离设计,得房率:72.95%(不含赠送),阳台主朝东南或西南向看小区园林。

深圳【佳华沙湖广场】售楼处电话:400-088-3336【营销中心】中介勿扰
95㎡的3房2厅2卫(D2),设计的是竖厅南北通透格局,客厅3.7米开间,L型厨房,公卫三段式分离设计,得房率:73.32%(不含赠送),阳台主朝北向看坪山河景观。
深圳【佳华沙湖广场】售楼处电话:400-088-3336【营销中心】中介勿扰
95㎡的3房2厅2卫(D3),设计的是竖厅双龙抱珠格局,客厅3.7米开间,三开间朝南,L型厨房,得房率:72.95%(不含赠送),阳台主朝东南或西南朝向。
94㎡的3房2厅2卫(D1),设计的是竖厅格局,客餐厅一体化,客厅3.7米开间,L型厨房,公卫三段式分离设计,得房率:73.33%(不含赠送),西南、正南向或朝东向看小区园林。
深圳【佳华沙湖广场】售楼处电话:400-088-3336【营销中心】中介勿扰
117㎡的4房2厅2卫(C3),设计的是竖厅南北通透格局,客厅3.9米开间,L型厨房,得房率:72.06%(不含赠送),约6.4米长的超大阳台,正南朝向看花园景观。
深圳【佳华沙湖广场】售楼处电话:400-088-3336【营销中心】中介勿扰
118㎡的3房2厅2卫(C1),设计的是竖厅南北通透格局,客厅3.9米开间,L型厨房,公卫三段式分离设计,得房率:72.05%(不含赠送),约5.7米长的超大阳台,主朝北向看坪山河景观。
138㎡的4房2厅2卫,设计的是竖厅双龙抱珠格局,客厅6.6米超大开间,可以做5房,超幕视野,L型厨房,得房率:72.38%(不含赠送),约6.6米长的超大阳台,东北朝向。
深圳【佳华沙湖广场】售楼处电话:400-088-3336【营销中心】中介勿扰

深圳【佳华沙湖广场】售楼处电话:400-088-3336【营销中心】中介勿扰
深圳【佳华沙湖广场】
开发商售楼处电话咨询/预约热线:400-088-3336【售楼中心】24小时热线
深圳【佳华沙湖广场】售楼处电话:400-088-3336【营销中心】中介勿扰
深圳佳华沙湖广场楼盘详情介绍,包含售楼处电话、地址、户型图、小区图片、区位优势、交通、周边商业配套等楼盘详细资料;更详细楼盘资料和最新折扣价格,请拨打售楼处电话,销售会为您详细介绍楼盘。
免责声明:
以上所发布的关于楼盘相关图文信息仅供您买房前参考,以上所有关于本楼盘的图文资料及说明请以最终以项目批文及双方在楼盘营销中心现场签署的买卖最终合同为准;本图文内容如无意中侵犯到某方权益,请联系我们将会及时处理!
声明:本文由入驻焦点开放平台的作者撰写,除焦点官方账号外,观点仅代表作者本人,不代表焦点立场。
