荣超新时代广场售楼处电话_荣超新时代广场24小时电话_营销中心地址/户型/备案价
扫描到手机,新闻随时看
扫一扫,用手机看文章
更加方便分享给朋友
【荣超新时代广场开发商线上售楼处咨询/预约TEL热线📞:400-088-3336 】
温馨提示:过来现场看房请务必提前拨打400-088-3336来电预约!
4000883336
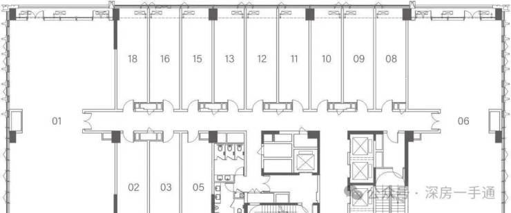
荣超新时代广场观澜唯一可售商业写字楼龙华北部新中心 鹭湖中心城新地标观澜未来唯一可售商业办公 准现楼唯一专业写字楼开发商 荣超打造面积:约41-123-253-499-1035㎡ 热销中!💯地铁口•购物中心上•带阳台/上下水
🏙【城市中心 双核叠加汇聚产业精粹资源】
龙华产核——鹭湖中心城地处龙华万亿级数字经济圈、梅观创新走廊的交汇中心,亦是龙华六大重点片区的核心枢纽城市新核——鹭湖中心城定位为深圳北部新中心,龙华区“行政+科技+文化+生活”综合服务中心,城市精华配套、产业要素完善。作为区政府所在地,其低密度生态环境、文体设施齐全[鹭湖四馆:龙华区图书馆、群艺馆、大剧院和科技馆]、豪宅小区聚集,非常宜居宜业,价格抗跌
🏙【总部中心 科创集群引领区域价值腾飞】观澜高新园——鹭湖中心城定位最前沿、发展最成熟、实力最强劲区域:上市企业数量占龙华区50%,占鹭湖中心城70%,是龙华上市公司最密集区域观澜高新园将构建 “BT+IT” (生物技术和信息技术)融合发展示范区,并依托上述龙头企业,吸引龙头企业及上下游企业,持续提升商务氛围与区域价值
🏙【枢纽中心 立体交通加速商务通勤效率】鹭湖枢纽——2地铁1城际1电车交汇,与深圳北站形成一南一北双枢纽
🏙【时代中心 首排封面助力企业屹立前沿】观澜高新园主入口首排标准商务综合体 大气双塔360度无遮挡昭示 视野开阔舒心
🏙【商务中心 纯粹甲级营造舒适高效办公】全玻璃幕墙 彰显不凡气魄两层挑高大堂 大气通透 企业尊崇会客厅10部三菱电梯 配比3000:1 引领高效商务50:1超高车位配比 畅享无忧出行带双阳台+开启扇 24小时鲜氧环绕
🏙【稀缺商办 鹭湖唯一可售商业写字楼】鹭湖中心城唯一可售商业写字楼/准现楼可个人名义购买,转让灵活,持有期间无需缴纳房产税
🏙【轻松进阶 鹭湖唯一1035㎡享整层权益】建面1035㎡区域内最低整层门槛,独立整层,不受外部干扰,办公形象高端且实用率高达75%14个独立红本单位,单套41㎡起,户型方正可任意组合,融资变现更灵活
🏙【特色配置 鹭湖唯一带上下水办公产品】带上下水,[ 办公+ ] 组合更丰富多元🏙【顶尖配套 鹭湖唯一大型购物中心】片区唯一大型购物中心,建面约3.1万㎡,提升整体形象的同时,可满足企业商务接待与员工就餐等一站式需求
【荣超新时代广场开发商线上售楼处咨询/预约TEL热线📞:400-088-3336 】
温馨提示:过来现场看房请务必提前拨打400-088-3336来电预约!
免责声明:本宣传资料仅作为客户邀约邀请,不作为要约或者承诺,对本楼盘配套、交通、学校(建设)规划或者产品介绍,旨在提供相关信息,不意味着本公司对此作出承诺,相关内容不排除因政府相关规划、规定及开发商未能控制原因而发生变化,最终以政府相关部门审批文件为准
声明:本文由入驻焦点开放平台的作者撰写,除焦点官方账号外,观点仅代表作者本人,不代表焦点立场。
