京基御景峯售楼处电话→深圳-京基御景峯售楼中心首页网站→楼盘图文详情
扫描到手机,新闻随时看
扫一扫,用手机看文章
更加方便分享给朋友
深圳【京基御景峯】在售户型,房价走势以及楼盘折扣详情!
京基御景峯售楼处咨询/预约热线:400-088-3336(售楼中心)
◆提前来访-预约登记尊享售楼处1v1销售专业讲解〢一对一热情服务〢
◆温馨提示:网上售楼中心〢预约可享内部优惠〢匠心钜制-恭迎品鉴〢
注:暂不接受临时到访客户,看房请提前预约。
4000883336
占地面积:约64000平方米
建筑面积:约640000平方米
容积率:7.74
绿化率:30%
楼栋数:2栋(另有说法为多栋)
总户数:584户(另有说法为更多户数)
梯户比:南北通透4梯6户(另有说法为2梯5户)
物管费:4.9元/平方米
层高:3.1米(另有说法为最高3.7米奢阔层高)
车位:3427个(总数)
交通配套
轨道交通方面,项目距离现有5号线地铁口长岭陂站约100米左右,算的上是真正的地铁口物业;
商业配套
项目自身规划有建面3.8万平商业,可满足日常生活所需。距离项目约2公里范围内有宝能城和塘朗城的商业;
教育配套
项目旁边规划有九年制公立学校;项目附近还有玉龙学校距离约1.8公里;深圳外国语学校龙华学校约2公里;另外南方科技大学;距离项目约1.3公里,深圳大学约1.3公里等。
交通配套
轨道交通方面,项目距离现有5号线地铁口长岭陂站约100米左右,算的上是真正的地铁口物业;
商业配套
项目自身规划有建面3.8万平商业,可满足日常生活所需。距离项目约2公里范围内有宝能城和塘朗城的商业;
教育配套
项目旁边规划有九年制公立学校;项目附近还有玉龙学校距离约1.8公里;深圳外国语学校龙华学校约2公里;另外南方科技大学;距离项目约1.3公里,深圳大学约1.3公里等。
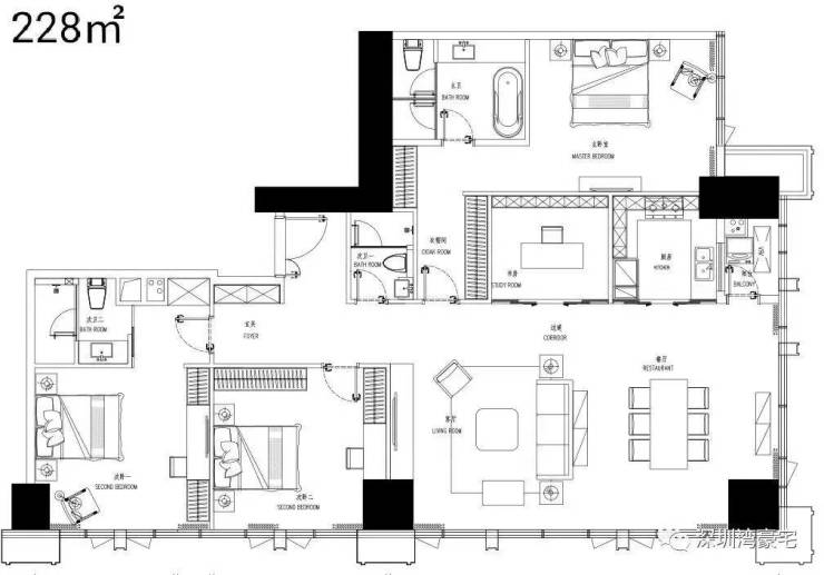
户型图:御景峯大厦 157-228㎡
商铺户型图产品面积:约157-228㎡
总楼层:1座47层,2座41层(在售楼层为6-23F)
单层高:3.7m
梯户比:6梯6户
深圳【京基御景峯】在售户型,房价走势以及楼盘折扣详情!
京基御景峯售楼处咨询/预约热线:400-088-3336(售楼中心)
◆提前来访-预约登记尊享售楼处1v1销售专业讲解〢一对一热情服务〢
◆温馨提示:网上售楼中心〢预约可享内部优惠〢匠心钜制-恭迎品鉴〢
注:暂不接受临时到访客户,看房请提前预约。
免责提示:(1)本文有关项目的信息来源于网络,具体项目信息(包括规划建设指标、建造工艺、户型图、交付标准、房源价格、优惠信息等)应以开发商最终签署的《商品房买卖合同》及相关文件约定为准。(2)文章内图片仅供读者参考。(3)我们所转载的所有文章、图片、音频视频文件等资料版权归版权所有人所有,因非原创文章及图片等内容无法一一和版权者联系,如原作者或编辑认为作品不宜上网供大家浏览,或不应无偿使用,请及时通知我们,本网页如无意中侵犯了媒体或个人的知识产权,请来电告之,我们立即予以删除。
声明:本文由入驻焦点开放平台的作者撰写,除焦点官方账号外,观点仅代表作者本人,不代表焦点立场。
