玖玖颂阁售楼处【玖玖颂阁】首页网站-玖玖颂阁售楼处-玖玖颂阁欢迎您丨户型价格-容积率-样板房-配套详情@售楼处
扫描到手机,新闻随时看
扫一扫,用手机看文章
更加方便分享给朋友
❄现场详细解答❄项目介绍❄户型图❄在售房源❄特价房❄学校❄交通位置❄样板房❄小区图片❄交房时间❄周边配套
🍎玖玖颂阁售楼处电话:400-088-3336【📱售楼处电话已认证】
🍎玖玖颂阁营销中心电话:400-088-3336【📱售楼处电话已认证】
🍎玖玖颂阁开发商电话:400-088-3336【📱开发商电话已认证】
#当下买房就买核心区真现房
┏┅✨✨#玖玖颂阁✨✨┅┓
┗ 前海唯一在售板式精装现房
💎三地铁 双学校 南北通 三阳台
🏠约89-133㎡ 今天买 马上住
4000883336
开发商:深圳市俊弘星实业有限公司
项目位置:宝安区新安街道新安四路与建安一路交汇处
总占地:约1.4万㎡
总建面:约10.41万㎡
可售套数 :379
推售面积段:83-133平方米3-4房
梯户比:A-C座2梯4户,D座2梯5户
容积率:5.04
车位数:752
物业公司:中熙物业
物业费:住宅6.00元/平方米·月
产权年限:70年
交楼标准:精装交付
02,十二大必买价值
享受千亿醇熟配套,成中央核心居住区
项目地处前海核心区域,位于城市发展动力最强劲的前海核心轴上。新安与宝中已经正式一体化,近享大湾区时代前海的超级发展红利。目前,新安片区,尤其是在沿前进路正在进行着大规模的城市更新,分布着众多城市更新项目,超千万的更新体量,其中超过400万平米的城市综合体,拥有逾100万平米的商业,周边价值腾飞在即。
全维路网链动世界,半小时通达全城
项目周边目前已开通的地铁5号线,同时享受在建12、15号线(规划中)共三地铁线环绕,自驾由广深公路行、宝安大道,30分钟可达福田、南山、宝安中心区。
出入公园环绕,优享丰富自然生态资源
项目周边配备13大公园:流塘公园、宝安公园、碧海湾公园、西乡公园、灵芝公园、新安公园、滨海文化公园等,项目距离宝安公园直线距离仅1.5公里,距离流塘公园直线距离仅607米,出入公园环绕,宜居属性高。
全成长生活场,优质教育举步即达
项目2公里范围内拥有9所中小学,是宝安区内的高密度教育资源片区、其中有两所广东省一级学校:弘雅小学、文汇学校(初中部),文汇学校作为新安片区的黑马学校,一跃成为宝安区第二。项目目周边还拥有大量优质的少儿培训机构,满足孩子成长教育的多样化需求。
万千精彩聚场,享步行可达的奢侈
项目1公里范围内有天虹商场,万达广场、沃尔玛等商业配套。2公里内有中洲πMALL、海雅缤纷城、壹方城等超百万平方米醇熟都会商圈配套,满足日常购物逛街需求,坐拥西部商圈核心。
超千万旧改,焕新片区人居生活
新安片区,尤其是在沿前进路正在进行着大规模的城市更新,分布着共20个旧改项目,超千万的旧改体量,相当于新安整个片区重建。仅我们项目2公里范围内就汇聚了8个旧改项目,分别是沃尔玛购物广场片区旧改、安华工业东区旧改,卓越翻身旧改、宝城碧海花园旧改、公路局西侧旧改、甲岸村旧改、宏发新领域、中洲中央公园二期。
全球顶尖景观设计AECOM,营建穿越花园的旅行
聘请设计“深圳湾一号”、“深圳华润悦府”的全球顶尖景观设计AECOM团队,对标城市一线豪宅,斥巨资打造项目空中花园,充分运用入户景观、中央水院、迎宾广场、喷泉水景等景观营造手法,呈现完美的视觉体验和移步换景之美,让业主的每次归家,一步一景之间,都是一场穿越花园的旅行。
新锐设计团队“诗意空间”精心设计,品质见微知著
对标深圳核心区域一线豪宅设计理念,由设计过深圳华润悦府、深圳华润润府、深圳万科臻系高端项目的“诗意空间”设计团队担纲本项目的公共空间设计,在用材用料、审美艺术等方面,参照南山、前海的一线豪宅;入户大堂均设置会客区,满足社区入户的自然社交功能,空间布局充分考虑社交功能与迎接宾客的用户需求,在保留阔绰的大堂空间的基础之上满足客户大堂会客的第一重礼仪;打造轻奢电梯厅作为入户前的一道风景,给予业主全方位的荣耀体验,呈现非凡礼仪序列感,造就无与伦比的居住体验,鼎成生活至高礼遇。
均好性强且奢适实用,打造雅而奢的生活
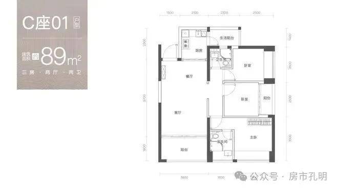
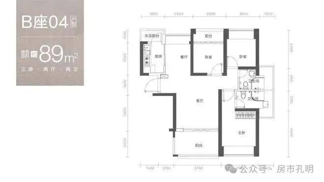
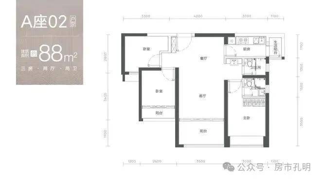
玖玖颂阁复兴生活之雅,践行“奢适实用”的生活方式,打造约83-133㎡雅奢空间,全动静分区,设计更人性化,精心设计多种实用功能,打造舒适生活空间,全南向通透户型打造全采光户型。83-90平米户型均为3房2厅2卫,主卧都搭配了套间,128-133平米4房户型以陪伴为主设计概念,打造实用家庭厅,空间尺度合理。
深耕莞深20多年,所到之处皆繁华
中熙集团先后开发了香缇湾、香缤山、君南山、君墅湾、玖颂江湾、香缇公馆、珑湾等品质用心之作,以户型创新实用得到业界好评,有较好的市场影响力及业主口碑。深莞开发项目十几个,皆占踞城市中心绝佳位置,坐拥醇熟完善配套,推动一方繁华发展。
03,户型鉴赏
HUXING JIANSHANG
广州全面取消住房限购,非户籍居民家庭不再审核购房资格
新京报贝壳财经讯(记者段文平)9月29日,广州市人民政府办公厅发布关于调整房地产市场平稳健康发展措施的通知,其中明确,取消居民家庭在本市购买住房的各项限购政策,通知自2024年9月30日起正式实施。
根据通知,本次限购政策调整后,本市户籍、非户籍居民家庭和单身人士在全市范围内购买住房的,不再审核购房资格,不再限制购房套数。
广州此前的限购政策是,根据《广州市人民政府办公厅关于优化我市房地产市场平稳健康发展政策的通知》,越秀、海珠、荔湾、天河、白云(不含江高镇、太和镇、人和镇、钟落潭镇)、南沙等区为住房限购区域,在限购区域购买建筑面积120平方米以上(不含120平方米)住房不限购,非本市户籍居民家庭和单身人士能提供购房之日前6个月在本市连续缴纳个人所得税缴纳证明或社会保险缴纳证明的,在限购区域分别限购2套和1套住房(建筑面积120平方米及以下)。
❄现场详细解答❄项目介绍❄户型图❄在售房源❄特价房❄学校❄交通位置❄样板房❄小区图片❄交房时间❄周边配套
🍎玖玖颂阁售楼处电话:400-088-3336【📱售楼处电话已认证】
🍎玖玖颂阁营销中心电话:400-088-3336【📱售楼处电话已认证】
🍎玖玖颂阁开发商电话:400-088-3336【📱开发商电话已认证】
免责声明:本文部分内容来源于网络,如有侵权,请联系小编删除。
声明:本文由入驻焦点开放平台的作者撰写,除焦点官方账号外,观点仅代表作者本人,不代表焦点立场。
