汉京中心开发商招租(租赁中心) 汉京中心首页网站-汉京中心诚邀入驻!南山汉京中心写字楼详情@招商热线 ,售价优惠,需提前预约看房
扫描到手机,新闻随时看
扫一扫,用手机看文章
更加方便分享给朋友
汉京中心开发商招租电话:400-088-3336(租赁中心)汉京中心,作为汉京集团未来的总部所在地,将成为深南大道上一座引人注目的新地标。这座近八十层的高楼,矗立于南山高新区,紧邻深南大道北侧,地理位置得天独厚。
汉京中心坐落于南山科技园商务核心区,占领深南大道一线优质领地,享成熟配套与多维交通,快速通达三大口岸、高铁站、机场。由普利兹克奖获得者汤姆·梅恩倾力打造,采用独特的核心筒外置设计,成就办公区270度景观,三倍节能效果。项目荣获“金块奖”、”国际地产奖”、“深圳最佳创意建筑奖”及LEED铂金级认证和绿色建筑三星认证等多项荣誉,是深南道商务艺术地标名片。汉京中心总户数255套,当期户数可售办公101套。
汉京中心写字楼出售价格【售楼中心】汉京中心写字楼售楼处限时一口价6.2万/㎡
16周年限时一口价
️建筑面积:2084.81㎡
原售单价:8.8万/㎡
️限时特价:6.2万/㎡
汉京中心开发商招租电话:400-088-3336(租赁中心)
汉京中心租赁咨询请拨打:400-088-3336✔✔【已认证】
温馨提示:看房需提前预约,感谢您的配合!!
【汉京金融中心】
全球顶配 未来办公
PART
1
项目简介
01
项目基础信息
【楼体高度】350m
【租赁面积】71-286㎡
【楼层净高】4.5m,净高3m
【楼层净深】11.8-18.45m
【楼板承重】250公斤/平方米
【空调标准/提供时间】
集中式中央空调四管制;
早8:00至晚22:00;
空调加时费:600元/小时;
【物业管理公司】仲量联行
【物业管理费】48元/㎡/月(含空调费)
【水费/电费/水牌收费】
3.77元/平方米;
1.21元/度;
500元/个;
【停车场】
881个车位(商场及写字楼);
B2/B3/B4/B5层:临时停车5元/小时;
固定车位2400元/个/月;
非固定车位1200/个/月;
02
项目地址
深圳市南山区深圳市南山区深南大道9968号,科技中一路以右、深南大道以北。
深圳汉京金融中心售楼处电话:400-088-3336(营销中心)

03
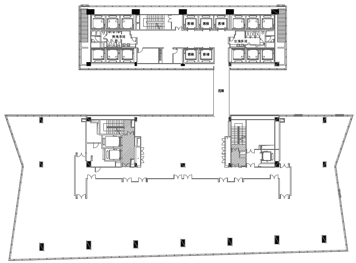
项目平面图及剖面图


汉京中心开发商招租电话:400-088-3336(租赁中心)
汉京中心租赁咨询请拨打:400-088-3336✔✔【已认证】
温馨提示:看房需提前预约,感谢您的配合!!
04
项目图片
向 向
PART
2
项目优势
优势一 运营服务商
运营服务商为物业持有人提供全方位资产运营及增值服务;秉承轻资产办公理念,为入驻企业提供灵活多选的办公空间解决方案及一站式商务服务,共筑城市楼宇新生态。

优势二 精装修带家私
带有精装修和家私,更为大面积和整层及多层办公需求提供定制化设计和装修。为客户提供寻址、定位、设计、施工、运维、企服一站式定制服务。
汉京中心开发商招租电话:400-088-3336(租赁中心)
汉京中心租赁咨询请拨打:400-088-3336✔✔【已认证】
温馨提示:看房需提前预约,感谢您的配合!!
优势三 现代化智能设备
前台全自动高清屏幕(放置宣传片、海报等)、人脸识别系统开门(打卡系统及开门)、进门可视对讲,直接对接物管等人性化智能设备。

优势四 共享多功能厅
现代化全自动路演厅(手机端自动控制灯光系统)、每层有会议室3个,8楼有路演厅可坐(60-90人)。
优势五 超高知名度及昭示性
项目楼高350m,属亚洲最高全钢结构建筑,且项目位于深南首排,昭示性好;
环幕全景视野,从前海至福田中心区景观一览无遗,远眺深圳湾海景,俯瞰深圳大学--国内十大最美校园之一,以环幕全景视角,将都会繁华与磅礴湾区尽收眼底。

优势六 超高品质硬件标准
绿色健康环境,提升创造力与幸福感,人性化设计,用心关照每处细节。

优势七 铂金级LEED认证
汉京中心摘得LEED最高级别铂金级认证,全世界仅7%的LEED认证项目能获此殊荣,全深圳仅9座;
汉京中心,采取的绿色生态和建筑节能技术达54项,荣膺绿色建筑最高级别认证--LEED铂金级。

汉京中心开发商招租电话:400-088-3336(租赁中心)
汉京中心租赁咨询请拨打:400-088-3336✔✔【已认证】
温馨提示:看房需提前预约,感谢您的配合!!
双大堂设计,首层挑高30m;
国际一线进口日立电梯,最高8m/s尖峰时刻等候不超过35s。

汉京中心开发商招租电话:400-088-3336(租赁中心)
汉京中心租赁咨询请拨打:400-088-3336✔✔【已认证】
温馨提示:看房需提前预约,感谢您的配合!!
免责声明:本文内容非物业及开发商,内容仅供参考,如有错误内容感谢您及时联系告知我们,谢谢!
声明:本文由入驻焦点开放平台的作者撰写,除焦点官方账号外,观点仅代表作者本人,不代表焦点立场。
