2025丹华公馆售楼处首页网站-楼盘介绍-售楼处地址-户型图-价格-丹华公馆售楼处电话
扫描到手机,新闻随时看
扫一扫,用手机看文章
更加方便分享给朋友
深圳【丹华公馆】
开发商售楼处电话咨询/预约热线:400-088-3336【售楼中心】24小时热线
深圳【丹华公馆】售楼处电话:400-088-3336【营销中心】中介勿扰
深圳丹华公馆楼盘详情介绍,包含售楼处电话、地址、户型图、小区图片、区位优势、交通、周边商业配套等楼盘详细资料;更详细楼盘资料和最新折扣价格,请拨打售楼处电话,销售会为您详细介绍楼盘。
南山丹华公馆位于深圳市南山区西丽留仙洞片区打石一路西南侧,是片区内大体量居住社区。项目占地约4万㎡,建面约32万㎡,总户数3019户。
丹华公馆目前在售的户型面积为58-101㎡,包括1室1厅1卫、2室2厅2卫和3室2厅2卫等。
所见即所得,不用想象更放心,目前已完成工程验收,外立面,园林,大门配套硬件已接近完工。
深圳【丹华公馆】售楼处电话:400-088-3336【营销中心】中介勿扰
【中心地段】位于南山核心区,西丽高铁新城/留仙洞战略性新兴产业总部基地/西丽湖国际科教城三大引擎助力未来发展
深圳【丹华公馆】售楼处电话:400-088-3336【营销中心】中介勿扰
精工匠心打造品质人居范本
豪宅标准打造
香槟金铝板+玻璃幕墙外立面,恒久如新
归家礼序,独创三进制合院,享受回家路途

深圳【丹华公馆】售楼处电话:400-088-3336【营销中心】中介勿扰

深圳【丹华公馆】售楼处电话:400-088-3336【营销中心】中介勿扰
2.5万平超大园林
前瞻设计,生态光苑与泳池联通互动
600米风雨连廊,衔接大堂主入口
社区型全龄段乐园 ,重新定义社区生活方式

深圳【丹华公馆】售楼处电话:400-088-3336【营销中心】中介勿扰

深圳【丹华公馆】售楼处电话:400-088-3336【营销中心】中介勿扰
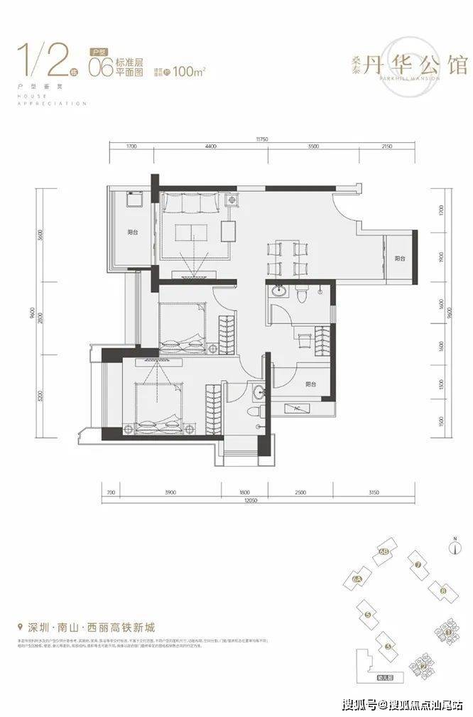
户型鉴赏
约58-101㎡户型;
深圳【丹华公馆】售楼处电话:400-088-3336【营销中心】中介勿扰
深圳【丹华公馆】售楼处电话:400-088-3336【营销中心】中介勿扰
深圳【丹华公馆】售楼处电话:400-088-3336【营销中心】中介勿扰
户型解读
户型主要考虑房间数量,空间和布局合理性等因素(优先考虑面向刚需的小3房户型)。丹华公馆有101平的标准3房,但价格不属于刚需了。所以这里按58平的看,58平做成3室或4室,真是挺让人开眼的。官方说层高3.9米,去掉一些楼层中间的高度,估计有效层高还得少一些,可能只有3.7米多,做成复式,还是比较让人难以接受的。一般正常的复式要达到5米。那3.7米给下面2米2的话,上面最多1米5。很难称为一个房间,说是上铺可能更合适。
4梯12户,36层,房子小楼道里多个门口可能会放鞋柜或婴儿车。高峰期做电梯估计要等不少时间。
深圳【丹华公馆】售楼处电话:400-088-3336【营销中心】中介勿扰
深圳【丹华公馆】售楼处电话:400-088-3336【营销中心】中介勿扰
深圳【丹华公馆】售楼处电话:400-088-3336【营销中心】中介勿扰
交通配套
1小时湾区生活圈 通勤无忧
紧邻西丽高铁站,4高铁+2城际1小时捷达湾区生活圈,6地铁(5号/7号/13号(在建)/15号(在建)/27号(规划)/29号(规划))通达全城

深圳【丹华公馆】售楼处电话:400-088-3336【营销中心】中介勿扰
教育配套
优质教育环伺 坐享全龄教育
出家门进校门,目送式教育,自带18班幼儿园,深中南山创新学校等优质学校聚集,书香环伺
深圳【丹华公馆】售楼处电话:400-088-3336【营销中心】中介勿扰
商业配套
紧邻绿肺公园 无忧商业配套
0距离西丽生态公园,拥享城央自留绿肺,创智云城/益田假日里广场/万科里等超20万㎡无忧商业配套
深圳【丹华公馆】售楼处电话:400-088-3336【营销中心】中介勿扰
文体配套
西丽湖国际科教城,智集清华、北大等18所顶尖高校,深圳智脑造就书香起点
深圳【丹华公馆】售楼处电话:400-088-3336【营销中心】中介勿扰
生态配套
项目紧邻西丽生态公园,开车10分钟左右可达西丽湖。塘朗山,大沙河生态长廊

深圳【丹华公馆】售楼处电话:400-088-3336【营销中心】中介勿扰
深圳【丹华公馆】
开发商售楼处电话咨询/预约热线:400-088-3336【售楼中心】24小时热线
深圳【丹华公馆】售楼处电话:400-088-3336【营销中心】中介勿扰
深圳丹华公馆楼盘详情介绍,包含售楼处电话、地址、户型图、小区图片、区位优势、交通、周边商业配套等楼盘详细资料;更详细楼盘资料和最新折扣价格,请拨打售楼处电话,销售会为您详细介绍楼盘。
免责声明:
以上所发布的关于楼盘相关图文信息仅供您买房前参考,以上所有关于本楼盘的图文资料及说明请以最终以项目批文及双方在楼盘营销中心现场签署的买卖最终合同为准;本图文内容如无意中侵犯到某方权益,请联系我们将会及时处理!
声明:本文由入驻焦点开放平台的作者撰写,除焦点官方账号外,观点仅代表作者本人,不代表焦点立场。
