深圳华润置地大厦售楼处首页网站-华润置地大厦营销中心-华润置地大厦欢迎您-楼盘详情-最新价格-户型图-容积率-地址@售楼处
扫描到手机,新闻随时看
扫一扫,用手机看文章
更加方便分享给朋友
华润置地大厦现楼发售!整层起售:1016-2400平,粤海街道办-科技园核心,高精尖企业云集,楼下就是23万㎡华润万象天地-网红商业体。
华润置地大厦售楼处电话:400-088-3336【售楼中心】
深圳科技园华润置地大厦销中心电话:400-088-3336【营销中心】
华润置地大厦售楼处电话:400-088-3336【售楼中心】
深圳科技园华润置地大厦销中心电话:400-088-3336【营销中心】
南山科技园,华润置地大厦现楼发售!整层起售:1016-2400平,粤海街道办-科技园核心,高精尖企业云集,楼下就是23万㎡华润万象天地-网红商业体。
华润城基本料资介绍
【地址】南山区大冲一路18号
【用地性质】商业性办公用地
【土地年限】40年
【总建筑面积】11.1万㎡
【办公建面】8.0万㎡
【可售楼层】4-5层(整层起售)
【整层面积】约1770㎡/层
【使用率】75%
【销售单价】约5万/㎡
【交楼时间】现楼
【交楼标准】精装修
【物业管理】华润万象生活
【管理费】28元/㎡/月(含空调)
【停车位】地下3层,345个车位
南山科技园华润置地大厦售楼处电话:400-088-3336【售楼中心】
【1号线地铁上盖 万象综合体配套】
华润置地大厦E座,深南大道沿线商务典范之作,地处高新园核心地段,与1号线高新园地铁站无缝衔接,是高新园片区内稀缺地铁上盖物业。
地下连通23万㎡万象天地创新商业空间,包含润府、润玺、万象府高端公寓、全球顶级豪华酒店ROSEWOOD等多元商务居住配套,在产业生态、人才吸引等方面拥有超强吸附力。


项目基础信息
【建筑面积】约6.5万㎡
【高度】172m/38层
【标准层面积】1016-2400㎡
【使用率】75%
【幕墙】三层中空LOW-E钢化夹胶玻璃
【销售价格】6.8万/㎡
【推售楼层】D 座整栋在售,单层起售,优先整栋购买(空置楼层14、23、31+32F,其他楼层带租约出售)。
【租金均价】250元/㎡/月,入住率85%
【主力租户】世界500强、芯片龙头、律所事务所、金融头部公司等
【停车位】3500个(月卡900元/月,固定车位1500元/月)
【电梯品牌】:日立,共16部
【空调系统】风机盘管+新风系统
【物业公司】华润物业
【物业管理费】33元/㎡/月(含空调)
【交付标准】公区精装、15cm网络地板、墙面刷白。
【交楼时间】现楼
【特色配备】配套高端会所、路演会议厅、万象天地、五星级酒店,全方位的商务礼遇服务。
南山科技园华润置地大厦售楼处电话:400-088-3336【售楼中心】


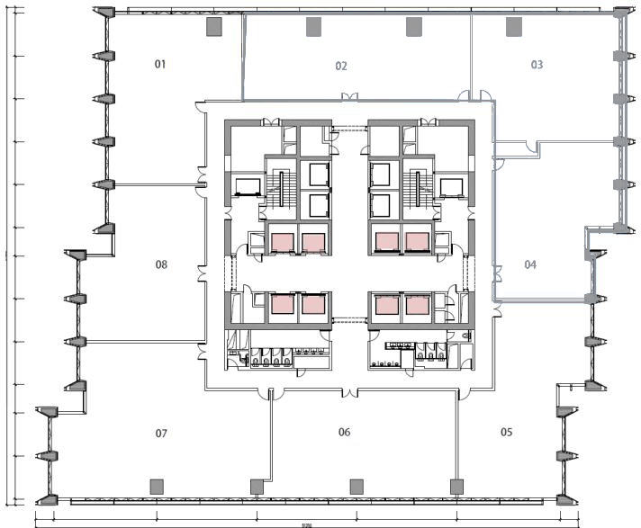
【整层平面图】

华润置地大厦售楼处电话:400-088-3336【售楼中心】
深圳科技园华润置地大厦销中心电话:400-088-3336【营销中心】
免责声明:部分图片来源网络,如有侵权请联系后台,我们会第一时间删除。本文资料仅为要约邀请,部分图片为示意性图片,一切图文资料、规划设计仅供参考识别或分享交流之用,不构成合同内容,具体内容均以政府最终批准文件及双方签订的买卖合同为准。
声明:本文由入驻焦点开放平台的作者撰写,除焦点官方账号外,观点仅代表作者本人,不代表焦点立场。
