湾啓紫荆府→湾啓紫荆府售楼中心→楼盘百科详情→首页网站→湾啓紫荆府售楼处电话→户型价格-容积率-样板房-配套详情@售楼处
扫描到手机,新闻随时看
扫一扫,用手机看文章
更加方便分享给朋友
深圳「湾啓紫荆府」
湾啓紫荆府售楼处电话:400-088-3336【中介勿扰】
欢迎来电咨询,一对一专业服务
物业中心暂不接受临时到访客户,请提前预约!
项目位于前海三湾的宜居妈湾,听海望山、社区纯粹。经反复推敲建筑排布、户型格局、室内精装、社区配套等,让居住者体验松弛的人居生活方式。
【项目数据】
加推套数:165套(2栋)
层高:37层,室内约3.1m
交付时间:2027.3.30
交付标准:品质精装
梯户比:4梯5户
管理费:9.5元/㎡(招商积余)
批地:2024.3月(70年产权)
总户数:485户
车位:595个
地铁:五号线妈湾站
学校:楼下配备18班幼儿园,隔壁规划1所九年义务制学校;荟同,中欧等国际教育资源
使用率:新规住宅,拓展后约92%以上
整个湾啟紫荆府项目占地面积14953平方,共有3栋住宅楼,总层高36-37楼,主力户型为96、111、121、122、142平,共规划485套纯商品房。
车位共595个,车位比约1:1.2,容积率约4.47,梯户比例为4梯5户。
【妈湾HIGH CITY执笔者】
自贸投资由“招商局集团”携手“前海管理局”联袂成立,定位为全球领先的自贸新城开发和运营服务商,作为单一主体统筹运营开发妈湾2.9平方公里。HIGH CITY,力图将“一张蓝图”逐步落成“实景画卷”,开启一个更加美好、更加智慧、可持续发展的理想未来。
1)妈湾立体之城,因坐拥前海核心优质资产而松弛
位于前海三湾之一妈湾,背衔大、小南山,享山河海景观、纯粹居住社区,给予目标人群在前海置业的更好生活形态。
2)灵动空间格局,因更高的获得感而松弛
• 四梯五户,独立电梯厅;
• 户户均有南向视野,空间格局通透敞亮;
• 270°弧形无柱大尺度飘窗、大宽厅、大阳台,带来更多使用空间。
3)人性精装交付,因更心安的品质而松弛
• 人性化品质精装交付、高颜满配美妆细节;
• 高效便捷的收纳设计、隐藏式音箱接口预留;
• 静音专项设计、线形地漏(淋浴间)、同层排水。
4)回归情感,因更从容的生活而松弛
构建5大家居松弛感场景+3大社区生活场景,
营造一种超越日常的宁静与自在,妥帖生活每一个细节。
【交通】立体便捷交通,更便捷高效出行
距5号线妈湾站约550m,毗邻听海大道,可快速通达南山、福田、宝安及大湾区生活圈;
规划8条轨道(城际+城市)、4条快速路、1条跨海通道(建设中)1个海空口岸(规划中)。
【教育】国际人文教育,更广阔成长空间
楼下配套18班幼儿园(建设中),隔壁规划1所九年义务学校;周边配套9所幼儿园、2所九年义务制学校+1所高中(规划中);荟同、中欧等国际教育资源,开启更加广阔的成长空间。
【商业】全维商业覆盖,满足生活所需
毗邻自贸时代中心商业(建设中),项目周边共配套1个商业综合体、6大商业中心和建面约67.5万㎡滨海活力商业,满足日常生活所需。
【人文】国际生活配套,松弛的烟火气息流动
汇集文化艺术中心(规划中)、前海博物馆(建设中)等国际人文配套,赛艇、帆船、戏剧、音乐节等国际范活动持续进行。
户型鉴赏:
本次推的2栋更靠近前湾河,可以看到河景,周边无高层遮挡,高区可看海。项目拥有山海河多重景观资源,精装交付。
户型:新规设计、高使用率,规划主力为3-4房产品。
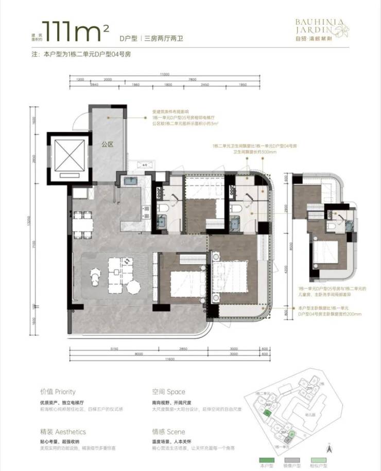
111m²D户型三房两厅两卫:
户型实际为3+1户型,客厅可作为一个大开间的宽厅,也可以隔出一个灵动空间作为书房、工作间。主卧空间南北通透,飘窗也得到了进一步的有效利用。同样是贯通式阳台联通客厅、卧室,阳台的宽度要比96㎡户型大许多,空间尺度提升明显,且有东南、西南两种朝向。
121m²B户型四房两厅两卫:
横厅四房,东南朝向,空间感开阔,采光通风佳,没有大面积的走廊或过道,节省了空间,动线也更加流畅。主卧拥有更加开阔的景观面,大面积
122m²C户型四房两厅两卫:
双龙抱珠户型,书房分布于客厅另一侧,且难得是双面采光+270°景观视野。主卧南北通透,且拥有十分开阔的景观面。贯通式阳台联通客厅以及靠近动区的次卧,实现长观景阳台。
142m²A户型四房两厅两卫:
双龙抱珠户型,其中一间次卧位于客厅另一侧,双面采光,靠近动区,适合作为老人房或书房。客餐厅南北通透,兼顾横厅与竖厅优点,空间感足,利用率高,动静分离、干湿分离设计合理。贯通式超长宽境阳台,采光舒适度高。
深圳「湾啓紫荆府」
湾啓紫荆府售楼处电话:400-088-3336【中介勿扰】
欢迎来电咨询,一对一专业服务
物业中心暂不接受临时到访客户,请提前预约!
免责声明:部分图片来源网络,如有侵权请联系后台,我们会第一时间删除。本文资料仅为要约邀请,部分图片为示意性图片,一切图文资料、规划设计仅供参考识别或分享交流之用,不构成合同内容,具体内容均以政府最终批准文件及双方签订的买卖合同为准。
声明:本文由入驻焦点开放平台的作者撰写,除焦点官方账号外,观点仅代表作者本人,不代表焦点立场。
