满京华金硕和府(售楼处)首页网站-满京华金硕和府欢迎您—满京华金硕和府楼盘详情@售楼处
扫描到手机,新闻随时看
扫一扫,用手机看文章
更加方便分享给朋友
深圳【满京华金硕和府】楼盘最新详细信息,图文解析
售楼处热线:400-088-3336(售楼中心)
★★售楼中心——欢迎来电咨询〢——匠心钜制恭迎品鉴!
◆◆营销中心——欢迎来电咨询〢———匠心钜制恭迎品鉴!

2024年8月10日开盘推出的满京华金硕和府,规划总占地面积约0.88万㎡,总建筑面积7.48万㎡,计容建筑面积约5.28万㎡,容积率5.74,绿化率30.01%,共规划2栋33-49层住宅,其中1栋住宅49F,3梯6户,2栋住宅33F,2梯6户。
最新消息:光明中心区首现100%使用率新盘---满京华金硕和府刚刚取证,今晚正式开盘选房,建筑新规落地后,现在不止于卷价格,更在卷户型了,85㎡就可以做到三房两卫!刚刚首推2栋186套房源,面积有85-88㎡的3房2厅2卫,110-113-114-119㎡的4房2厅2卫户型,本次备案均价4.71万/㎡,目前折后均价约4.3万/㎡!本期推售产品传使用率约95%,全屋飘窗均可改造!目前已开放展厅及样板间,可预约参观!总价约3字头起可买3房2卫!
总规划有458户,全部都是商品房,地下室有3层,停车位505个,车位占比1:1.1。
项目介绍
满京华金硕,前身为光明狮山利益统筹项目,由满京华集团全盘操刀,涵盖有10块用地,总占地面积约10.9万㎡,总建筑面积约32.38万㎡,其中住宅用地有7块,返还用地1块,公共绿化用地2块,住宅用地有:满京华金硕和府,满京华金硕瑞府,满京华金硕臻府,满京华金硕华府,满京华金硕悦府,满京华金硕嘉府。
满京华狮山利益统筹项目一共7个地块,除楼村商业大厦是为商业地块外,其它都是住宅地块,分别为金硕华府、金硕瑧府、金硕瑞府、金硕和府、金硕悦府和金硕嘉府,未来也是科学公园片区主要供应项目。
项目效果图
满京华·金硕和府项目位于光明光辉大道与狮山三街交汇处,6号线光明站D出口约800m,是光明区8个土整利益统筹试点项目之一,是光明中心区建设的重要组成部分。
项目基础信息:
开发商:满京华置业投资有限公司
物业公司:满京华物业管理有限公司
物业管理费:4.3元/㎡
总占地面积:0.88万㎡
总建筑面积:7.48万㎡
容积率:5.74
绿化率:30.1%
产权年限:2023.4-2093.4(70年)
开发商电话 :400 880 7297(官方)
总户数:458户
总栋数及楼高:1栋49F/2栋33F
层高:2.9米
梯户比:1栋3梯6户/2栋2梯6户
停车位:505个(占比约1:1.1)
交房时间:2026年12月底
交付标准:简装
较多数据还未公布,陆续更新中...
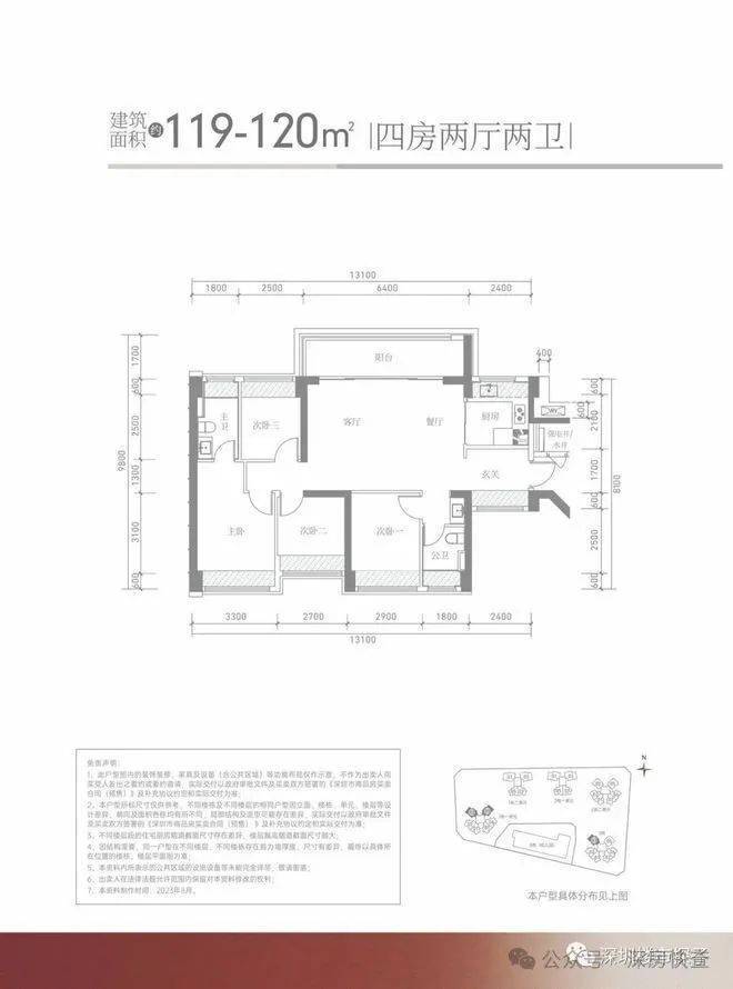
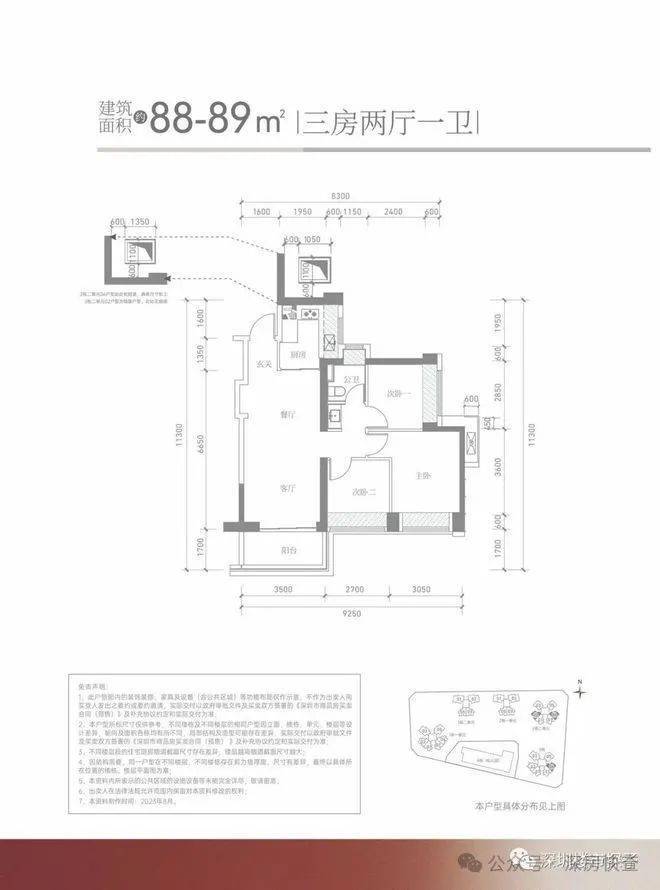
88㎡的3房2厅2卫,设计的经典竖厅格局,客厅3.4米开间,LDKB一体化设计,S墙设计预留冰箱卡槽位,3个卧室分别做到了3.55米/2.6米/2.4米的宽度,U型厨房,公卫三段式分离设计,得房率约:95%(包含赠送),阳台进深1.8米,有西南或东南朝向。110㎡的4房2厅2卫,设计的是经典竖厅格局,客厅3.8米开间,进门独立玄关,LDKB一体化设计,S墙设计预留冰箱卡槽位,4个卧室分别做到了3.8米/3.2米/2.55米/2.44米的宽度,U型厨房,公卫三段式分离设计,得房率约:95%(包含赠送),客厅连接次卧出6.2米的大阳台,朝西南向。114㎡的4房2厅2卫,设计的是经典竖厅格局,客厅3.8米开间,进门独立玄关,LDKB一体化设计,S墙设计预留冰箱卡槽位,4个卧室分别做到了3.8米/3.2米/2.55米/2.44米的宽度,U型厨房,公卫三段式分离设计,得房率约:95%(包含赠送),客厅连接次卧出6.2米的大阳台,朝东南向。
目前主体出地面约10层左右,计划在11月份封顶,下面是上个月航拍的照片。
项目户型介绍
85㎡的3房2厅2卫,设计的经典竖厅格局,客厅3.4米开间,LDKB一体化设计,S墙设计预留冰箱卡槽位,3个卧室分别做到了3.55米/2.6米/2.4米的宽度,U型厨房,公卫三段式分离设计,得房率约:95%(包含赠送),阳台进深1.8米,有西南或东南朝向。
113㎡的4房2厅2卫,设计的竖厅南北通透格局,客厅4米开间,进门独立玄关,4个卧室分别做到了4米/2.8米/2.7米/2.6米的宽度,U型厨房,公卫三段式分离设计,得房率约:95%(包含赠送),阳台主朝西北或东北向,看科学公园景观。
119㎡的4房2厅2卫,设计的竖厅南北通透格局,客厅4米开间,进门独立玄关,4个卧室分别做到了4米/2.8米/2.7米/2.6米的宽度,U型厨房,公卫三段式分离设计,得房率约:95%(包含赠送),阳台主朝西北或东北向,看科学公园景观。
共规划2栋33-49层住宅,其中1栋住宅49F,3梯6户,2栋住宅33F,2梯6户。
满京华项目总平面图
其中:满京华金硕华府仍在销售中
88-100㎡户型
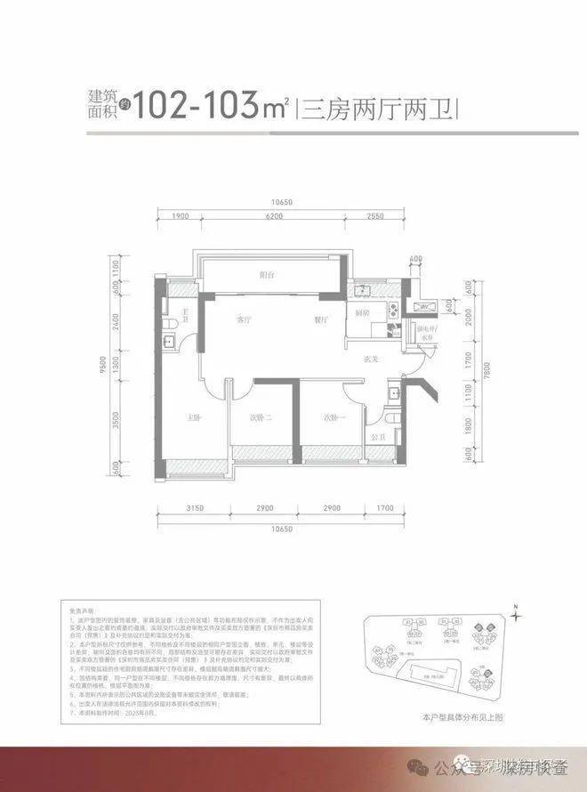
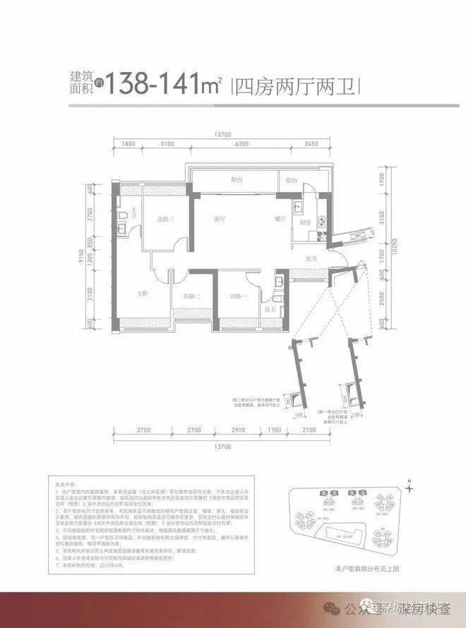
102-141㎡户型
深圳【满京华金硕和府】楼盘最新详细信息,图文解析
售楼处热线:400-088-3336(售楼中心)
★★售楼中心——欢迎来电咨询〢——匠心钜制恭迎品鉴!
◆◆营销中心——欢迎来电咨询〢———匠心钜制恭迎品鉴!
免责声明:
1、以上部分图片素材源自网络,如有侵权,请联系我们删除;
2、本广告相关文字、图片以及建筑设计效果图是对项目所做的示意表现,仅供参考,最终标准详见政府相关部门批准文件,经政府批准的详细规划以销售现场公示为准,敬请查看;
3、本广告为要约邀请,买卖双方的权利以及义务以双方签订的合同为准。相关内容如有更新,请以最新资料内容为准。
声明:本文由入驻焦点开放平台的作者撰写,除焦点官方账号外,观点仅代表作者本人,不代表焦点立场。
