深圳南山佳华沙湖广场售楼处电话→楼盘百科→首页网站详情→24小时热线电话
扫描到手机,新闻随时看
扫一扫,用手机看文章
更加方便分享给朋友
深圳【佳华沙湖广场】楼盘最新详细信息,图文解析
佳华沙湖广场售楼处热线:400-088-3336(售楼中心)
专业热情一对一服务!让您用专业眼光去买房!给您一个温馨满意的家!
欢迎来电咨询〢尊享内部优惠服务〢预约案场内部销售人员〢
4000883336
1、项目简介

项目概述
【项目名称】佳华沙湖广场
【占地面积】约8万㎡
【建筑面积】约62万㎡
【推售产品】69-86-95-116(2-4房)
【交付标准】精装交付
【产权年限】70年
【房产性质】住宅
【总户数】2801户,(1568户可售)(回迁房1233户)
【楼层高】44-52层
【车位比】4200个(1:1.5)
【容积率】5.21
【绿化率】30%
【梯户比】3梯4户、3梯5户、3梯6户、
【管理费】3.9元/平
【开发商】深圳市佳华房地产开发有限公司
【物业公司】佳华物业
【项目地址】坪山区坪山大道与锦龙大道交汇处西北角



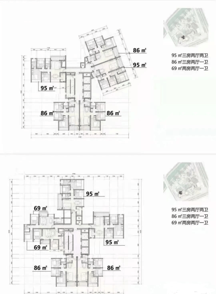
2、项目平面图


3、项目户型图及价格
83㎡的3房2厅1卫,折后总价220-246万/套,单价2.59-2.89万/㎡。
95㎡的3房2厅2卫,折后总价249-267万/套,单价2.63-2.83万/㎡。
113㎡的4房2厅2卫,折后总价356-375万/套,单价3.14-3.3万/㎡。
139㎡的4房2厅2卫,折后总价431-456万/套,单价3.11-3.27万/㎡。
69㎡的2房2厅1卫,设计的是竖厅格局,客餐厅一体化,客厅3.3米开间,L型厨房,得房率:72.94%(不含赠送),西北向看坪山河景观或东北朝向面向锦龙大道。
83㎡的3房2厅1卫(E1),设计的是竖厅格局,客餐厅一体化,客厅3.5米开间,L型厨房,卫生间三段式分离设计,得房率:73.32%(不含赠送),有西北、东北、东南或西南朝向。
85㎡的3房2厅1卫(E2),设计的是横厅南北通透格局,客厅3.5米开间,L型厨房,卫生间三段式分离设计,得房率:72.95%(不含赠送),阳台主朝东南或西南向看小区园林。
94㎡的3房2厅2卫(D1),设计的是竖厅格局,客餐厅一体化,客厅3.7米开间,L型厨房,公卫三段式分离设计,得房率:73.33%(不含赠送),西南、正南向或朝东向看小区园林。
95㎡的3房2厅2卫(D2),设计的是竖厅南北通透格局,客厅3.7米开间,L型厨房,公卫三段式分离设计,得房率:73.32%(不含赠送),阳台主朝北向看坪山河景观。
95㎡的3房2厅2卫(D3),设计的是竖厅双龙抱珠格局,客厅3.7米开间,三开间朝南,L型厨房,得房率:72.95%(不含赠送),阳台主朝东南或西南朝向。
113㎡的4房2厅2卫(C2),设计的是竖厅南北通透格局,客厅阳台5.6米长的大阳台,主卧大套间设计,全屋飘窗,L型厨房,得房率:73.52%(不含赠送),阳台西南朝向看花园景观。
117㎡的4房2厅2卫(C3),设计的是竖厅南北通透格局,客厅3.9米开间,L型厨房,得房率:72.06%(不含赠送),约6.4米长的超大阳台,正南朝向看花园景观。
118㎡的3房2厅2卫(C1),设计的是竖厅南北通透格局,客厅3.9米开间,L型厨房,公卫三段式分离设计,得房率:72.05%(不含赠送),约5.7米长的超大阳台,主朝北向看坪山河景观。
138㎡的4房2厅2卫,设计的是竖厅双龙抱珠格局,客厅6.6米超大开间,可以做5房,超幕视野,L型厨房,得房率:72.38%(不含赠送),约6.6米长的超大阳台,东北朝向。





4、项目配套
交通配套
地铁:紧邻地铁14号快线坪山门户站——锦龙站700米(已通车),12站福田岗厦北。地铁16号线(预计2022年内通车)、地铁33号线(在建)
快道:项目紧邻坪山大道和锦龙大道双头牌,坪盐通道、南坪快速、东部过境高速(在建),速达全城。
高铁:厦深高铁坪山站,1站深圳北,2站福田。坪山候机楼:紧邻坪山候机楼,直达宝安机场。

学校配套
佳华沙湖广场自带1所幼儿园,根据2023年坪山区教育局的大学区划分,小学学区划分在坪山实验教育集团科源实验学校小学部,坪山实验教育集团科悦实验小学,中学学区划分在碧岭实验学校、坪山高级中学教育集团中山中学、坪山实验教育集团科源实验学校初中部。
另外值得一提的是深实验坪山学校计划在2024年开学,根据当前坪山教育局大学区划分来看,初中部是可以就读的,小学部待定。
在项目800米范围内还规划有1所小学,2所九年制公办学校,距离约2公里的科韵学校也已经快建好,将在2024年9月开学,总规划54个教学班,其中小学36班,初中18班,可以提供学位2520个。
商业配套
约62万㎡大城综合体际遇世界峯范佳华沙湖广场汇聚精品智慧住宅、无界旗舰商业、商务公寓、办公等多元业态于一体,满足半城繁华半城自然的生活全配套需求。

约8万㎡无界旗舰商业 筑就商业新时代以商业立城芯,约8万㎡无界旗舰商业,创造大型旗舰MALL和开放式立体街区的商业共融体,缔造东部商业新时代。周边天虹商场、坪山益田假日世界等约40万㎡商圈环绕。
文体配套
醇享六馆繁华配套 书香浸润筑梦未来繁华配套:周边天虹商场、坪山益田假日世界等约40万㎡商圈环绕,毗邻坪山儿童公园;2站即至中心公园、六馆一城等城市级文化休闲配套。

约1.7公里有坪山体育中心,大山坡主题公园等,西南侧约400米有儿童公园;
书香文脉:周边教育资源丰富,坪山打造深圳实验学校高中园(在建)和坪山大学城(在建)等,实现全链条优质教育发展。

6、综合测评
1、佳华沙湖广场,从坪山区位来看,属于坪山相对中心的区域,目前在坪山除了区政府高铁站那一块,就属这个区域地段最繁华,并且交通四通八达,去盐田,罗湖,南山,龙岗,福田都比较方便。
2、从买房必备3件套分析,14号地铁线锦龙站距离不远,也是深圳为数不多的快线,线路价值较高,项目也自带8万㎡的大型商业,周边教育配套丰富,还有深实验坪山学校初中部的加持,整体评分在坪山是优先的。
3、佳华沙湖广场总高44-52层的超高层住宅,是目前坪山除了华侨城和城里、财富城2期、深业山水东城2期之外,建筑高度最高的小区,整体住家舒适度稍差。
4、小区回迁房比例占比过大,总共2801套,其中商品房1568户,回迁房1233户,可以看出回迁户的占比高达44%,在整个坪山区的商品房住宅当中都属于首例,对于后期的物业管理要求很高,在后期的二手房市场流通上面也可能会有影响。
5、小区户型得房率整体偏低,加上赠送预计是在80%左右,对于目前坪山区域内的新房,这个得房率确实不占优势。
6、佳华沙湖广场目前最大的优势就是价格,可以说是坪山的商品房地板价,不管对于新盘还是二手房,都已经有明显的倒挂优势,自从上次5栋降价加推后,也是一度成为坪山新房销冠楼盘,是当下坪山买房最佳选择。
深圳【佳华沙湖广场】楼盘最新详细信息,图文解析
佳华沙湖广场售楼处热线:400-088-3336(售楼中心)
专业热情一对一服务!让您用专业眼光去买房!给您一个温馨满意的家!
欢迎来电咨询〢尊享内部优惠服务〢预约案场内部销售人员〢
免责声明:
本文网络转载,版权归原作者所有,本栏目所使用部分文字、图片来自互联网收集,主要用于供给大家学习、交流。我们尊重原创作者和单位,若本文侵犯了您的权益,请直接留言或电话联系我们,我们将立刻删除。
声明:本文由入驻焦点开放平台的作者撰写,除焦点官方账号外,观点仅代表作者本人,不代表焦点立场。
