深圳翠园华府售楼处(翠园华府)2025首页网站-翠园华府营销中心欢迎您-楼盘详情-最新价格-户型图-容积率@售楼处
扫描到手机,新闻随时看
扫一扫,用手机看文章
更加方便分享给朋友
翠园华府
售楼处电话:400-088-3336一对一对接,享受额外优惠!
在售户型图丨项目介绍丨房源丨周边配套丨详细解答
开发商售楼处直销_欢迎来电预约享受内部折扣_恭迎品鉴!
温馨提示:看房请提前来电预约,谢谢您的配合!(中介勿扰)

一、项目概况
翠园华府位于深圳市罗湖区东盛路与布心路交汇处,由深圳市宁图顺实业有限公司开发,物业公司为深圳东晨物业管理有限公司。项目总建面约15.5万㎡,容积率为9.5,总层高为45层,梯户比为D座2梯4户、C座3梯6户,车位比为1:1.13,提供790个车位,占地面积约1万㎡,装修情况为精装,现已为现房状态,交付时间为即买即住。
二、周边配套
区域与交通优势:翠园华府位于罗湖“东进战略”的桥头堡位置,享受粤港澳湾区及先行示范区政策利好。项目距离3号线水贝站约650米(也有资料称为710米),步行约9分钟即可到达;同时,距离5/7号线太安站约900米,周边还有清平高速、北环大道、丹平等交通干道,以及正在建设中的清水河高铁站和罗湖火车站,出行条件十分便利。
商业配套:项目自带底商,还临近粤海城、IBC项目(已有多家商家入住),自建9260㎡地上和地下商业,满足日常购物需求。此外,周边还有喜荟城、万象会等购物中心,如距离最近仅需760米步行约10分钟的IBC环球商务中心,以及距离1.6公里的京基水贝时代广场等。
教育配套:小学方面,周边有东昌小学、东晓小学、布心小学等;中学方面,可就读翠园中学东晓校区(深圳名校,教学质量有保障)、奥斯翰外语学院、市第十九高级中学等。
医疗配套:周边有深圳市人民医院、罗湖妇幼保健院等医疗机构,为居民提供优质的医疗服务。
文体配套:罗湖青少年活动中心、罗湖图书馆百仕达社区分馆、悠图书馆、黄金文化艺术馆、深圳美术馆以及市工人文化宫等文体设施环伺,丰富居民的文化生活。
生态配套:项目毗邻87万㎡原山公园,背靠围岭山原山公园,红岗、洪湖、翠竹公园围合,登临高层可远眺梧桐山、深圳水库湖光山色,生态环境优美。
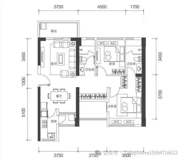
三、户型鉴赏
翠园华府提供的户型多样,包括建面88㎡、87㎡、93㎡(有两种)、91㎡的三房二厅一卫或二卫户型,以及建面107㎡、129㎡的四房二厅二卫户型,满足不同家庭的居住需求。
四、优缺点分析
优点:
项目周边有多个公园环绕,生态环境优美;
翠园中学东晓校区为深圳名校,教学质量有保障;
项目自带商业,周边购物中心众多,休闲购物方便;
交通出行便利,周边有多条地铁线路和交通主干道。
缺点:
小区内有1栋保障房和人才房,居住氛围不够纯粹;
楼盘周边老小区众多,城市界面稍显旧;
五、总结
对于注重学校和周边配套,且在罗湖本地生活或上班的购房者来说,翠园华府是一个值得考虑的楼盘。然而,如果购房者更注重楼盘的增值潜力或投资回报,那么可能需要考虑其他更有潜力的区域或楼盘。总的来说,翠园华府以其独特的地理位置和丰富的周边配套,为购房者提供了一个优质的居住选择。但购房者在做出决定前,还需结合自身需求和预算进行综合考虑。
翠园华府
售楼处电话:400-088-3336一对一对接,享受额外优惠!
在售户型图丨项目介绍丨房源丨周边配套丨详细解答
开发商售楼处直销_欢迎来电预约享受内部折扣_恭迎品鉴!
温馨提示:看房请提前来电预约,谢谢您的配合!(中介勿扰)
免责声明:
1、以上部分图片素材源自网络,如有侵权,请联系我们删除;
2、本广告相关文字、图片以及建筑设计效果图是对项目所做的示意表现,仅供参考,最终标准详见政府相关部门批准文件,经政府批准的详细规划以销售现场公示为准,敬请查看;
3、本广告为要约邀请,买卖双方的权利以及义务以双方签订的合同为准。相关内容如有更新,请以最新资料内容为准。
声明:本文由入驻焦点开放平台的作者撰写,除焦点官方账号外,观点仅代表作者本人,不代表焦点立场。
