深圳中建鹏宸云筑(鹏宸云筑售楼处)首页网站-中建鹏宸云筑营销中心欢迎您-楼盘详情-周边配套-最新价格-户型图-容积率@Ai热搜楼盘
扫描到手机,新闻随时看
扫一扫,用手机看文章
更加方便分享给朋友
♐♐【中建鹏宸云筑】售楼处24小时电话:400-088-3336(开发商直销)现场详细解答丨项目介绍丨户型图丨在售房源丨特价房丨学校丨交通位置丨样板房丨小区图片丨交房时间丨周边配套丨
♐♐中建鹏宸云筑售楼处电话☎:400-088-3336【售楼处预约热线】(一对一热情服务)
看房请务必提前致电销售确认时间,只有预约客户才能享受开发商提供的内部优惠以及专属的老客户推荐奖励!我们提供专业的一对一热情服务,助您以专业视角挑选理想的房产。
4000883336
位于龙华梅林关的网红楼盘【中建鹏宸云筑】西区即将加推,本次首推西区的8栋,总高32层,2T5户,面积102-118-139平的3-4房!8栋位置相对会比较好,视野更开阔,价格可能会贵些,实体样板房不久将会开放,8栋预计在8月底取证开盘,目前东区2栋还有少量房源。
欢迎预约看房,请勿自行前往(判为上门客)将会失去渠道购房优惠!
【开 发 商】中建壹品&湖北文旅
【占地面积】约4.33万㎡
【建筑面积】约31万㎡
【容 积 率 】≤5.37
【梯 户 比】西区高层2梯5户,超高层3梯6户(东区3梯6户)
【楼 栋 高】8栋32层,标准层高约3米
【绿 化 覆 盖 率 】40.01%
【车位比】1:1.03
【产权年限】70年2024年批地
【交房时间】待定
【总户数】总户数1992户(东区1016户,西区976户)
首开368套,二开推出154套,三开推出248套,四开推出242套,本次共154套
【停车位】总2155个(东区1059个,西区1096个,东西区停车场不连通)
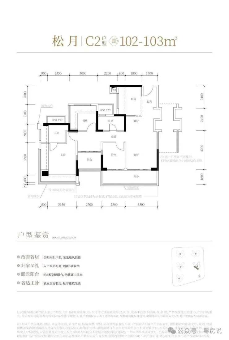
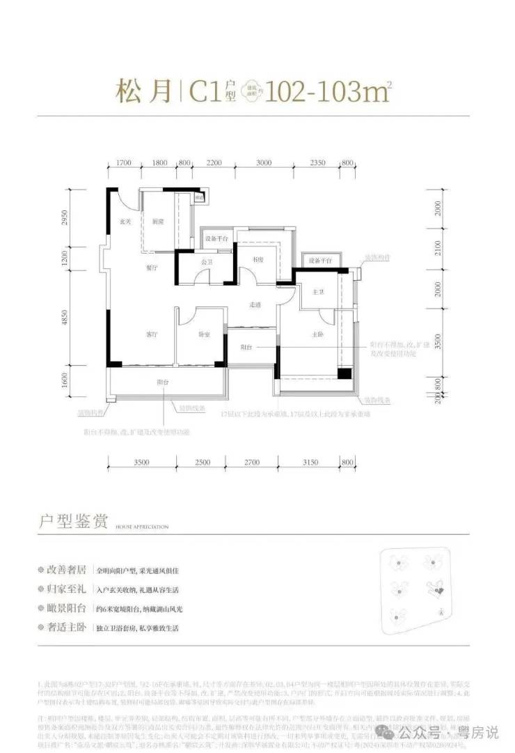
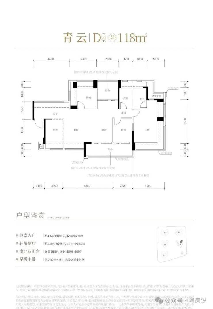
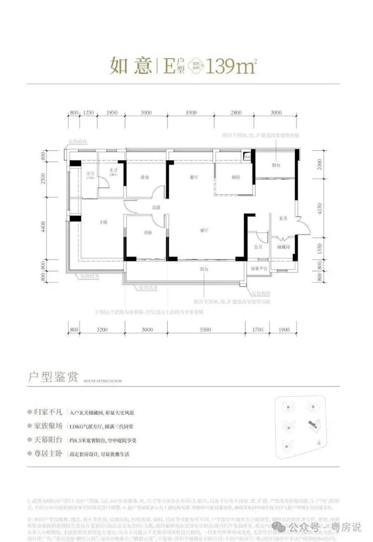
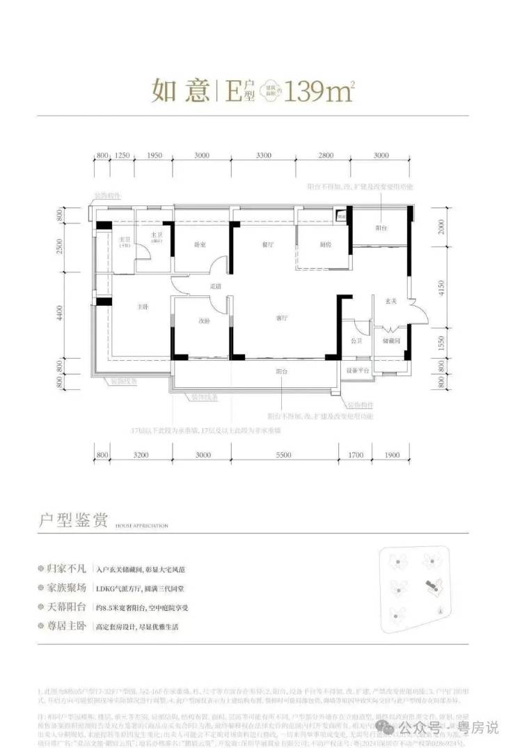
【本次户型】建筑面积约102-103㎡(91套)118㎡(31套)、139㎡(31套)
【东区推售产品】建面约81㎡-91㎡-107㎡-126㎡
户型图
西区首推户型:
项目缺点:
1.虽在梅林关片区但不是核心位置
2.旁边是华南物流园会有车流噪音影响
3.华南实验书包比较一般
4.距离地铁站也比较远
5.低楼层大部分受前面写字楼遮挡
6.虽有商业配套但距离都较远
7.后面附近地块发展如何不好预测
项目优点:
1.新规楼盘户型使用率高
2.地处梅林关片区比较中心位置
3.国央企开发品质好有保障
4.地铁、商业、学校、医疗,配套相对齐全
5.周边民房比较少,未来发展可能性比较大
6.部分户型高层可看到民治水库的湖景
♐♐【中建鹏宸云筑】售楼处24小时电话:400-088-3336(开发商直销)现场详细解答丨项目介绍丨户型图丨在售房源丨特价房丨学校丨交通位置丨样板房丨小区图片丨交房时间丨周边配套丨
♐♐中建鹏宸云筑售楼处电话☎:400-088-3336【售楼处预约热线】(一对一热情服务)
看房请务必提前致电销售确认时间,只有预约客户才能享受开发商提供的内部优惠以及专属的老客户推荐奖励!我们提供专业的一对一热情服务,助您以专业视角挑选理想的房产。
声明:本文由入驻焦点开放平台的作者撰写,除焦点官方账号外,观点仅代表作者本人,不代表焦点立场。
