深圳四海华庭售楼处电话_四海华庭交房时间/最新房价|户型|学校|地铁
扫描到手机,新闻随时看
扫一扫,用手机看文章
更加方便分享给朋友
深圳【四海华庭】
开发商售楼处电话咨询/预约热线:400-088-3336【售楼中心】24小时热线
深圳【四海华庭】售楼处电话:400-088-3336【营销中心】中介勿扰
深圳四海华庭楼盘详情介绍,包含售楼处电话、地址、户型图、小区图片、区位优势、交通、周边商业配套等楼盘详细资料;更详细楼盘资料和最新折扣价格,请拨打售楼处电话,销售会为您详细介绍楼盘。

深圳【四海华庭】售楼处电话:400-088-3336【营销中心】中介勿扰
项目测评
四海华亭位于龙华大浪街道,临近高峰学校,距离四号线龙华站约1公里。

深圳【四海华庭】售楼处电话:400-088-3336【营销中心】中介勿扰
项目占地面积约1.7万㎡,容积率6.81,共4栋51-52层高住宅,总户数1043户,车位数1249个。
2022年11月入市,户型87-121㎡的3-4房,备案均价6.46万/㎡,开盘当天去化率30%,两年多过去截至目前还有32%未售。
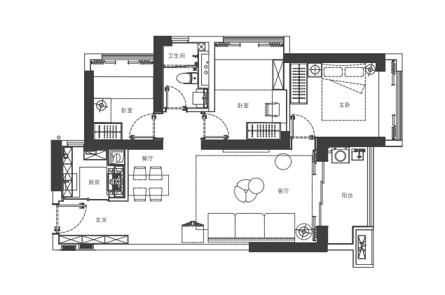
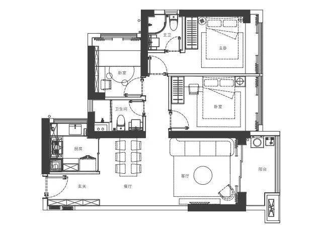
四海华亭户型图
87㎡3房1卫
97㎡3房2卫

深圳【四海华庭】售楼处电话:400-088-3336【营销中心】中介勿扰
深圳【四海华庭】售楼处电话:400-088-3336【营销中心】中介勿扰
交通配套
周边地铁四号线和六号线,不过距离较远,距4号线龙华站约1公里,步行15分钟。
道路方面,周边有布龙路、龙观大道、福龙路等主干道,自驾通勤是比较方便的,不过高峰期会有点拥堵。
教育配套
根据龙华招生学区划分,项目小学是在龙华高峰学校小学部招生范围内,初中在龙华高峰学校初中部和龙华中学弘毅校区初中部招生范围内。
高峰学校是龙华排名前三的老牌名校,被评为“广东省一级学校”,升学率和学术表现一直保持在高水平。
深圳【四海华庭】售楼处电话:400-088-3336【营销中心】中介勿扰
商业配套
整个旧改项目自身配建商业面积约5.11万㎡,项目1.5公里范围内还分布有壹方天地商业、百佳华购物中心、龙华商业中心、天虹商场、华润万家等多个商业中心。
深圳【四海华庭】售楼处电话:400-088-3336【营销中心】中介勿扰
文体配套
周边有深圳美术馆新馆、深圳市第二图书馆(已开放)、深圳文化馆新馆(在建中)、简上体育综合体、深圳书城(龙华城)等市级文体项目。
深圳【四海华庭】售楼处电话:400-088-3336【营销中心】中介勿扰
深圳【四海华庭】
开发商售楼处电话咨询/预约热线:400-088-3336【售楼中心】24小时热线
深圳【四海华庭】售楼处电话:400-088-3336【营销中心】中介勿扰
深圳四海华庭楼盘详情介绍,包含售楼处电话、地址、户型图、小区图片、区位优势、交通、周边商业配套等楼盘详细资料;更详细楼盘资料和最新折扣价格,请拨打售楼处电话,销售会为您详细介绍楼盘。
免责声明:
以上所发布的关于楼盘相关图文信息仅供您买房前参考,以上所有关于本楼盘的图文资料及说明请以最终以项目批文及双方在楼盘营销中心现场签署的买卖最终合同为准;本图文内容如无意中侵犯到某方权益,请联系我们将会及时处理!
声明:本文由入驻焦点开放平台的作者撰写,除焦点官方账号外,观点仅代表作者本人,不代表焦点立场。
