中海云启源境售楼处电话→中海云启源境售楼中心首页网站→楼盘百科
扫描到手机,新闻随时看
扫一扫,用手机看文章
更加方便分享给朋友
深圳【中海云启源境】
中海云启源境开发商网上售楼处电话:400-088-3336(营销中心)
网上售楼中心〢欢迎来电咨询〢专业一对一热情服务〢
给您专业的置业方案〢期待您成为我们的尊贵的业主⇈
项目规划与硬核实力
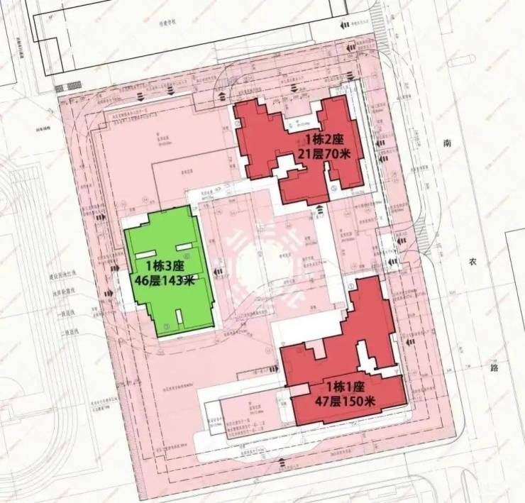
1️⃣ 地块背景:
前身为润亚奕拓厂房旧改,非限价地块,定价自由度较高,但需承担旧改历史成本。
毒舌点评
:旧改进度磨叽?中海2023年拿地,2025年火速入市,旧改效率吊打民企!
深圳【中海云启源境】售楼处电话:400-088-3336【营销中心】中介勿扰
2️⃣ 开发商底牌:
中海地产
(央企)操刀,深圳标杆项目包括深圳湾壹号、中海天钻,交付品质稳定超预期。
避坑指南
:央企债务稳健,烂尾风险≈0,但需警惕“保障房混居”社区氛围。
深圳【中海云启源境】售楼处电话:400-088-3336【营销中心】中介勿扰
3️⃣ 品质真功夫:
外立面用三层中空夹胶LOW-E玻璃+铝板,对标深圳湾香格里拉酒店;
园林复刻南洋度假风,6大会客厅+星光跑道,刚改盘玩出豪宅范儿;
施工方
:中海自建团队,YKK AP系统窗+隔音降噪设计,实测噪音≤35分贝(低楼层除外)。
深圳【中海云启源境】售楼处电话:400-088-3336【营销中心】中介勿扰
4️⃣ 户型逆天操作:
新规赠送开挂
!105㎡≈旧规134㎡,143㎡吊打183㎡,飘窗、双阳台全送面积;
硬伤预警
:90㎡东北朝向采光受限,143㎡总价千万级,刚需够不着,土豪看不上。
深圳【中海云启源境】售楼处电话:400-088-3336【营销中心】中介勿扰
深圳【中海云启源境】售楼处电话:400-088-3336【营销中心】中介勿扰
深圳【中海云启源境】售楼处电话:400-088-3336【营销中心】中介勿扰
深圳【中海云启源境】
中海云启源境开发商网上售楼处电话:400-088-3336(营销中心)
网上售楼中心〢欢迎来电咨询〢专业一对一热情服务〢
给您专业的置业方案〢期待您成为我们的尊贵的业主⇈
免责声明:
本文网络转载,版权归原作者所有,本栏目所使用部分文字、图片来自互联网收集,主要用于供给大家学习、交流。我们尊重原创作者和单位,若本文侵犯了您的权益,请直接留言或电话联系我们,我们将立刻删除。
声明:本文由入驻焦点开放平台的作者撰写,除焦点官方账号外,观点仅代表作者本人,不代表焦点立场。
