深圳中信城开红树湾(售楼处)首页网站|中信城开红树湾售楼处|地址-价格-户型-位置
扫描到手机,新闻随时看
扫一扫,用手机看文章
更加方便分享给朋友
深圳【中信城开红树湾】
开发商售楼处电话咨询/预约热线:400-088-3336【售楼中心】24小时热线
深圳【中信城开红树湾】售楼处电话:400-088-3336【营销中心】中介勿扰
深圳中信城开红树湾楼盘详情介绍,包含售楼处电话、地址、户型图、小区图片、区位优势、交通、周边商业配套等楼盘详细资料;更详细楼盘资料和最新折扣价格,请拨打售楼处电话,销售会为您详细介绍楼盘。
中信城开·红树湾位于福田保税区红花道与香樟道交汇处,毗邻福田红树林公园。总建筑面积66748.02㎡;计容积率建筑面积44638.62㎡;不计容积率建筑面积22109.4㎡;含商品房373户,安居房24户;以小户型为主,梯户比有2梯2户、2梯3户。
深圳【中信城开红树湾】售楼处电话:400-088-3336【营销中心】中介勿扰
深圳【中信城开红树湾】售楼处电话:400-088-3336【营销中心】中介勿扰
【项目名称】:中信城开·红树湾
【建筑面积】:约32000㎡
【占地面积】: 约9467平米
【 总层高 】: 15层
【 梯户比 】: 2梯2户/3户(亮点)
【可售房源】:317套
【户型面积】:约60-119㎡
【车位数量】: 340个
【交楼标准】:待定
【产权年限】:70年
【项目地址】:福田区红树林公园东侧红花道与香樟道交汇处

深圳【中信城开红树湾】售楼处电话:400-088-3336【营销中心】中介勿扰
国有大型综合性跨国企业集团——中信集团,重归红树湾中信集团为国有大型综合性跨国企业集团,世界500强第115位。
中信城开为中信集团一级全资子公司,践行新型城镇化战略,开展城市综合开发运营业务,涵盖城市运营、城市更新、地产开发、TOD/基础设施建设。
继承原中信地产30多年开发经验,全国累计开发项目近百个,开发面积超3000万平方米。布局粤港澳大湾区、海南自贸港,打造多个精品项目,信立湾区,为美好而来
深圳【中信城开红树湾】售楼处电话:400-088-3336【营销中心】中介勿扰
作为深圳市中心城区, 福田拥有全国含金量最高的中央商务区——福田CBD,以及国家级科技创新平台——河套深港科技创新合作区。
站在新的历史节点,福田将以河套深港科技创新合作区,香蜜湖新金融中心,环中心公园活力圈,“三大新引擎”为总牵引,突出科创、金融、时尚“三大产业”,瞄准中央创新区、中央商务区、中央活力区,“三大定位”,奋力推动新三十年再出发,首善之区开新局,启动全面建设 ,社会主义现代化典范城区的新征程!
深圳【中信城开红树湾】售楼处电话:400-088-3336【营销中心】中介勿扰
三大金融聚集地
作为与北京金融街、上海陆家嘴并驾齐驱中国三大金融集聚地之一,福田拥有得天独厚的金融资源和区位优势,金融总量持续增长、机构密布。
近年来,福田高端机构扎堆集聚,本土世界500强总部企业增至4家,占全市的一半。2020年,福田金融业增加值首次超过2000亿元,占全市近一半,深交所和全市近七成持牌金融机构齐聚福田。
深圳【中信城开红树湾】售楼处电话:400-088-3336【营销中心】中介勿扰
交通方面:三号延长线福保站去年已经开通,距离1.3公里。
深圳【中信城开红树湾】售楼处电话:400-088-3336【营销中心】中介勿扰
学校方面:周边配套小学是福苑小学(公办),初中是福田外国语中学(原名福田保税区实验学校);幼儿园则在距离项目约350米处有福田第八幼儿园。
深圳【中信城开红树湾】售楼处电话:400-088-3336【营销中心】中介勿扰
商超方面:楼下自带商业,目前距离比较近的益田中心广场,中港城的CTMALL。
深圳【中信城开红树湾】售楼处电话:400-088-3336【营销中心】中介勿扰
医疗方面:项目距离最近的是福田妇幼保健院。
深圳【中信城开红树湾】售楼处电话:400-088-3336【营销中心】中介勿扰
生态方面:项目隔壁就是最大的湿地公园-福田红树林湿地公园,运动休闲都能满足。
深圳【中信城开红树湾】售楼处电话:400-088-3336【营销中心】中介勿扰
红树湾主推户型为79-143㎡单,共397套房源,其中小户型1-2房主要分布在H座、J座,从户型分布上来看,主力户型为102-119㎡的3房户型,135-143㎡的4房户型和60㎡的1房户型较少。
梯户比方面,多为2梯2户、2梯3户,H座多为小户型则是2梯6户。
深圳【中信城开红树湾】售楼处电话:400-088-3336【营销中心】中介勿扰
1房2厅1卫
约59㎡
深圳【中信城开红树湾】售楼处电话:400-088-3336【营销中心】中介勿扰
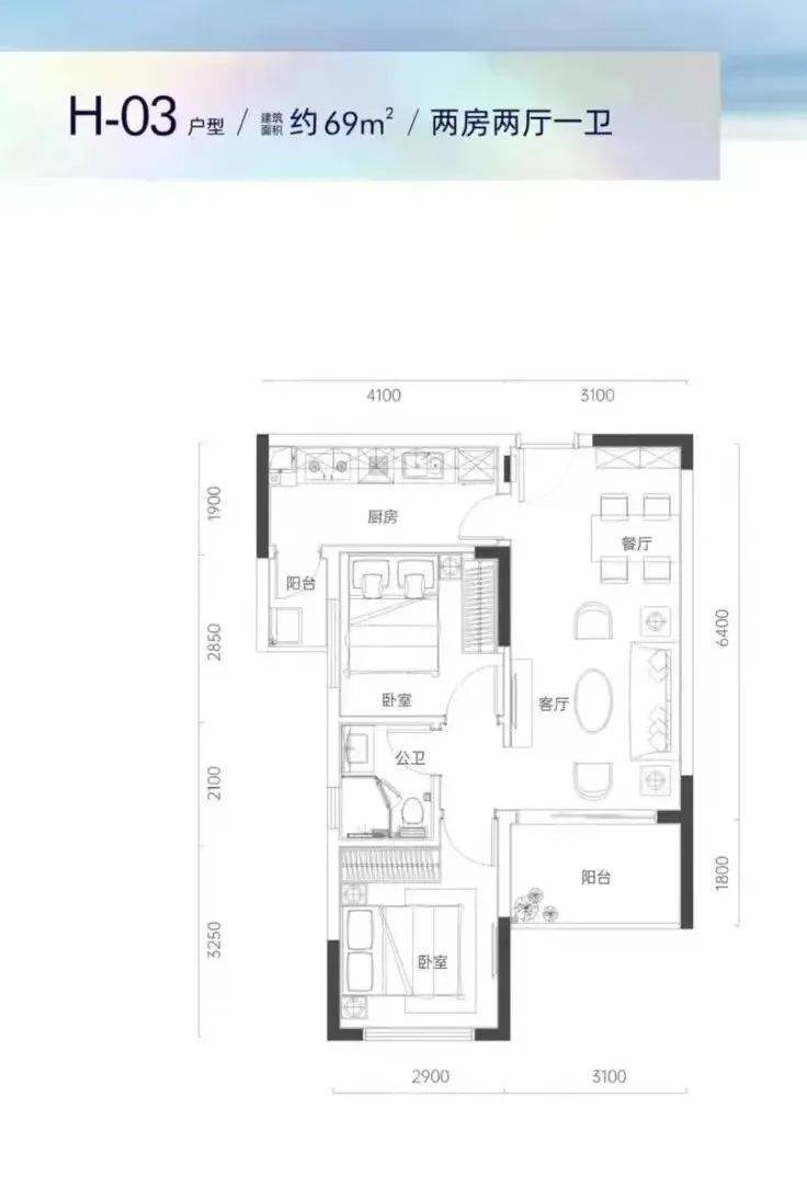
2房2厅1卫
约63-69-75-76-77-79-80㎡
深圳【中信城开红树湾】售楼处电话:400-088-3336【营销中心】中介勿扰
深圳【中信城开红树湾】售楼处电话:400-088-3336【营销中心】中介勿扰
深圳【中信城开红树湾】售楼处电话:400-088-3336【营销中心】中介勿扰
深圳【中信城开红树湾】售楼处电话:400-088-3336【营销中心】中介勿扰
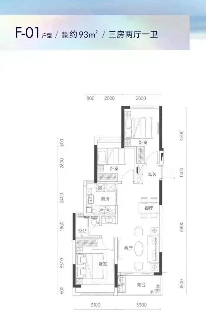
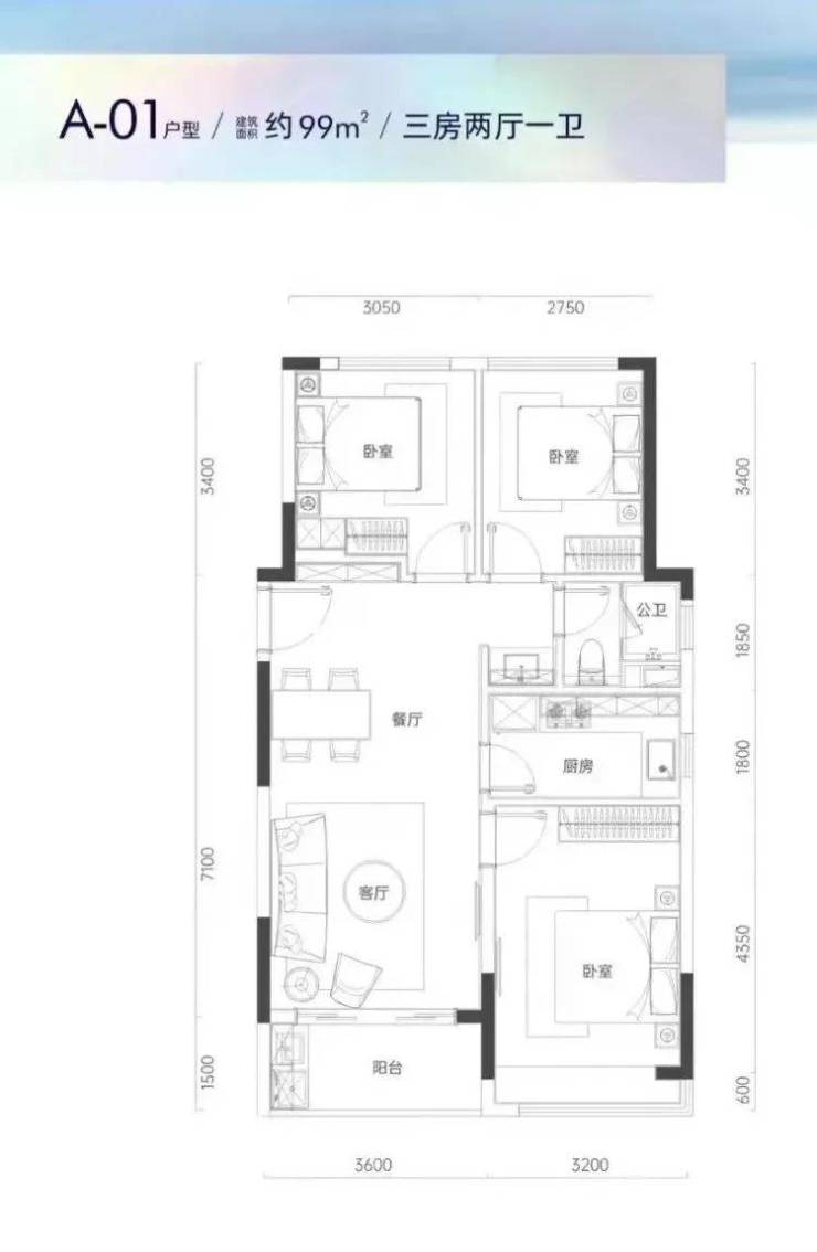
3房2厅1卫
约93-99㎡
深圳【中信城开红树湾】售楼处电话:400-088-3336【营销中心】中介勿扰
深圳【中信城开红树湾】售楼处电话:400-088-3336【营销中心】中介勿扰
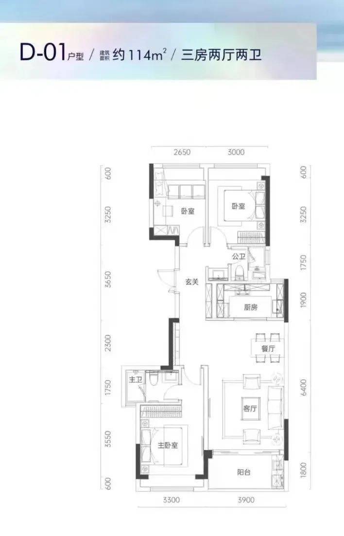
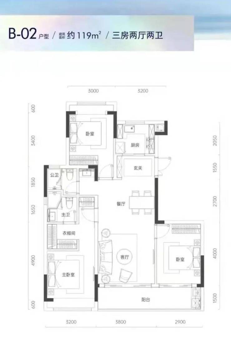
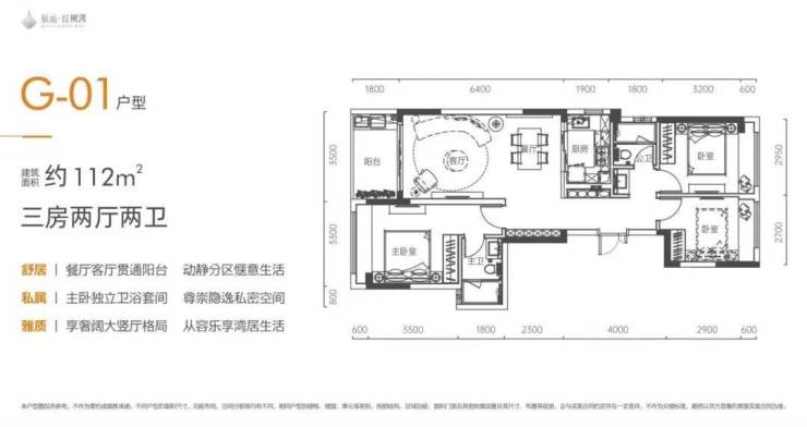
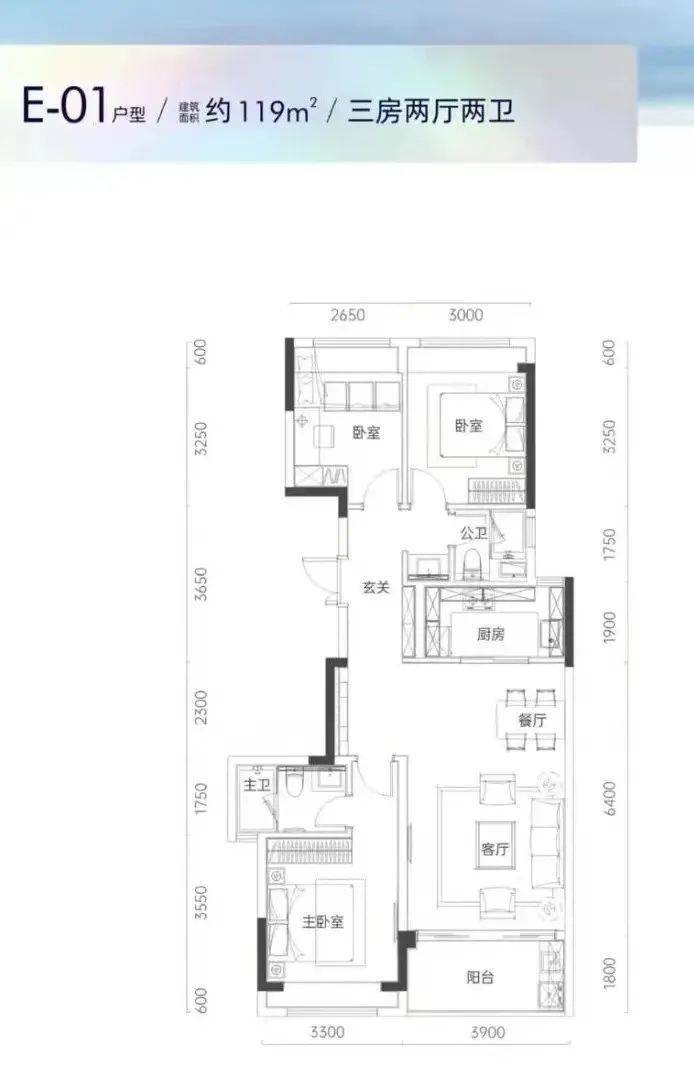
3房2厅2卫
约103-104-105-112-111-114-115-119㎡
深圳【中信城开红树湾】售楼处电话:400-088-3336【营销中心】中介勿扰
深圳【中信城开红树湾】售楼处电话:400-088-3336【营销中心】中介勿扰
深圳【中信城开红树湾】售楼处电话:400-088-3336【营销中心】中介勿扰
深圳【中信城开红树湾】售楼处电话:400-088-3336【营销中心】中介勿扰
深圳【中信城开红树湾】售楼处电话:400-088-3336【营销中心】中介勿扰
深圳【中信城开红树湾】售楼处电话:400-088-3336【营销中心】中介勿扰
4房2厅2卫
约134-142㎡
深圳【中信城开红树湾】
深圳【中信城开红树湾】售楼处电话:400-088-3336【营销中心】中介勿扰
开发商售楼处电话咨询/预约热线:400-088-3336【售楼中心】24小时热线
深圳【中信城开红树湾】售楼处电话:400-088-3336【营销中心】中介勿扰
深圳中信城开红树湾楼盘详情介绍,包含售楼处电话、地址、户型图、小区图片、区位优势、交通、周边商业配套等楼盘详细资料;更详细楼盘资料和最新折扣价格,请拨打售楼处电话,销售会为您详细介绍楼盘。
免责声明:
以上所发布的关于楼盘相关图文信息仅供您买房前参考,以上所有关于本楼盘的图文资料及说明请以最终以项目批文及双方在楼盘营销中心现场签署的买卖最终合同为准;本图文内容如无意中侵犯到某方权益,请联系我们将会及时处理!
声明:本文由入驻焦点开放平台的作者撰写,除焦点官方账号外,观点仅代表作者本人,不代表焦点立场。
