深圳湾1号开发商现场招租电话→租赁中心电话→深圳湾1号开发商直租
扫描到手机,新闻随时看
扫一扫,用手机看文章
更加方便分享给朋友
深圳湾1号大厦租赁中心电话:4000-88-3336

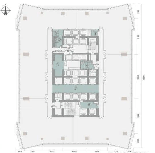
项目建筑面积:17万㎡(办公面积7万㎡)
标准层面积:2300-2600㎡
物业管理费:38元/㎡(含空调早8晚7)
使用率:62%
楼高:350米
标准层高:4.5米 / 净高3.2米
层数:72层
停车位:479个
电梯数:办公楼层10台讯达双轿厢电梯
空调系统:AVA中央空调系统
物业管理公司:
大堂高度:11米
交付标准:天地墙+窗帘(可直接入驻)
天花:金属铝扣板天花+灯盘,全部安装到位
墙面:高级乳胶漆刷白,并安装双开玻璃门
窗帘:安装电动智能窗帘(根据日照采光自动调节)
地面:150mm硫酸钙网络地板

深圳是一座堪称人类发展史上奇迹的年轻城市,短短数十年,从当年的小渔村发展成如今的国际化大都市。
回顾深圳的发展历程,填海造地贯穿始终。1979年,蛇口炸山填海,打响中国改革开放第一炮。接着一路高歌猛进,从东边到西边,沿着海岸线向海要地30年,助力深圳快速崛起和腾飞。




深圳湾片区位于南山蛇口东部,深圳湾与珠江出海口交汇处,由后海滨路以东、滨海大道以南和深圳湾围合而成,全部填海造陆而成。
含着金汤匙出生的深圳湾,一出生就被赋以厚爱,经过十年蝶变,成为深圳的“心脏”,大湾区的核心。得天独厚的地理位置和海景资源,让深圳湾成为独一无二的深圳名片和总部基地,沿线也成为了深圳最顶级的豪宅海岸线。深圳湾由三部分构成:深圳湾超级总部基地+后海商务总部基地+深圳湾豪宅区。凭借这两个总部基地坐镇,将共同组成未来整个湾区的核心和经济高地。

整个粤港澳大湾区的未来,还看深圳湾。深圳湾的未来,基本上看两大总部的运营状况。
我们知道深圳湾超总定位是“全球产业链终端”,即是要做最高等级的经济形态;而科技园是整个中国高新技术企业最多、地均产值最高的科创中心。
后海总部基地介于这两者之间,定位于“总部经济+科创高地”,发展开始加速,在近三五年真正走向巅峰。
目前深圳湾超级总部基地尚在规划建设中,后海总部基地基本落成,且在深圳的影响力数一数二。


【深圳湾一号】写字楼T7栋 招商热线:4000883336

区位优势
【总部区位】作为粤港澳大湾区的重要海岸线,堪称大湾区中的核心。15公里城市滨海观景长廊,现代建筑鳞次栉比;腾讯、阿里巴巴、百度等创新科技和中海油、中国航天、华润等

免责声明:
1、内容部分来源网络,因编辑需要文字和图片之间亦无必然联系,仅供读者参考。
2、此号所转载的所有文章、图片、音频视频文件等资料版权归版权所有人所有,因非原创文章及图片等内容无法一一和版权者联系,如原作者或编辑认为作品不宜上网供大家浏览,或不应无偿使用,请及时通知我们,我们会给予更改或删除相关文章,保证您的权利。
声明:本文由入驻焦点开放平台的作者撰写,除焦点官方账号外,观点仅代表作者本人,不代表焦点立场。
