拾悦城楠园售楼处电话(售楼中心地址)营销中心首页网站→24小时热线电话
扫描到手机,新闻随时看
扫一扫,用手机看文章
更加方便分享给朋友
深圳【拾悦城楠园】
拾悦城楠园售楼处电话:400-088-3336(营销中心)
如有问题欢迎来电咨询,来电即可享受买房优惠!
预约来电尊享内部优惠,可预约案场内部销售人员,专业一对一热情服务。
4000883336
深圳【拾悦城楠园】
【项目名称】拾悦城.楠园
【占地面积】约3.54万㎡
【建筑面积】约23.5万㎡
【推售产品】86-140㎡ 3-5房
【交付标准】简装交付
【交房时间】2025.12
【房产性质】70年
【总 户 数】可售2015套
【车 位 数】约2396个
【物业公司】万家好物业
【物 业 费】4.5
【容 积 率】约6.66
【绿 化 率】约40%
【梯 户 比】3T7、3T6、3T5
整个小区占地3.5万方,由7栋建筑合围而成,属于中大型小区
配套情况
交通:项目紧邻11号线沙井站约650米,前往宝中、南山和福田相对缘,到达科技园需要约1小时,自驾走宝安大道、广深公路或京港澳高速,到达宝中和南山需要约四五十分钟。
教育:项目自带一所18班幼儿园,项目规划的九年一贯制学校教育用地,有传闻将引进宝中集团俩办分校(最终以教育局公示为准),周边学校有壆岗小学、拾悦小学、万丰小学,整体教育质量一般。
文娱:楼下步行可达约9.5万㎡占地的定岗湖湿地公园,茶余饭后散步的好地方,一公里范围有万丰羽毛球馆、大钟山公园新桥中心公园、新桥市民广场,这些可以作为日常休闲的去处。
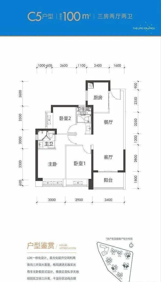
户型资料
项目可售房源约1300套,首推房源约530套,建面约86-140㎡三至四房,改善产品为主,86㎡户型货量较少,94㎡户型只有三房一卫,总体来说户型结构、功能间布局、朝向、采光啥的没啥大问题。
但问题是产品力表现一般,实用性欠佳,得房率不算突出。
本次推的户型位于1B栋、1E栋,约530套。
约86㎡三房一卫,竖厅,动静分区结构,整体比较传统,功能间偏紧凑了一些,实用性还是不错的,B座和E座的两个户型结构及功能间布局是一样的,E座的玄关和厨房面积稍大一点,其它一致。
约94㎡三房一卫,横厅,近似双龙抱珠的结构,厨房只能依靠通风井进光,卫生间与次卧一间距较小,开窗存在对视问题,这个面积做三房一卫实用性欠缺。
除101㎡与103㎡的入户位置有明显结构差异外,其它部分从结构到功能间布局都是一样的,区别是个别功能间大小略有差异。
其中103㎡户型得房率明显要高一些,厨房面积大于其它四个户型。
四房两卫有约115㎡、118㎡、120㎡(有两种)、126㎡五个户型图。
其中115㎡与126㎡外形结构与内部功能间布局基本一致,126㎡户型可看作是115㎡户型的放大版,都是竖厅、动静分区的,居住舒适性、实用性、通透性、静溢性各方面都比较好。
118㎡户型是五种四房户型里唯一的横厅,通透性肯定是没竖厅的好,但横厅的餐客厅空间感更强,实用性会更高一些,整体没啥大问题,主要看个人喜好,就市场受众来讲,竖厅的受众会更广泛一些。
120㎡户型,是货量最多的四房,也是竖厅通透格局,它的外形结构会比115㎡和126㎡的更高方正一些,该户型入户门口有一个房间,功能间的布局没有115㎡和126㎡的好。
140㎡户型,是该项目建面最大的产品,格局与120㎡户型一致,可看作120㎡户型的放大版,居住舒适性更佳,预算充足且对居住舒适性追求比较高的可以侧重考虑这个户型。
深圳【拾悦城楠园】
拾悦城楠园售楼处电话:400-088-3336(营销中心)
如有问题欢迎来电咨询,来电即可享受买房优惠!
预约来电尊享内部优惠,可预约案场内部销售人员,专业一对一热情服务。
免责声明:
1、文章部分文字、图片、视频来源于网络。
2、我们所转载的文章、图片、音频视频文件等资料版权归版权所有人所有,因非原创文章及图片等内容无法和版权者联系
3.本网页如无意中侵犯了媒体或个人的知识产权,请留言或来电告知我们删除。
声明:本文由入驻焦点开放平台的作者撰写,除焦点官方账号外,观点仅代表作者本人,不代表焦点立场。
