【深圳】湾啟紫荆府楼盘简介丨项目户型最新介绍
扫描到手机,新闻随时看
扫一扫,用手机看文章
更加方便分享给朋友
【深圳】湾啟紫荆府
【深圳】湾啟紫荆府售楼处电话TEL:400-088-3336【售楼中心】
【深圳】湾啟紫荆府售楼处电话TEL:400-088-3336【售楼中心】
◆提前来访-预约登记尊享售楼处1v1销售专业讲解〢一对一热情服务〢
目前本项目已经正式开盘,过来现场看房记得提前拨打开发商售楼处400热线预约
项目占地:约1.5万
容积率:约4.47
产权年限:70年(2024-2094年)
项目总套数:3栋住宅
可售户型:约96-142m²3-4房
高楼层:36-37层
层高:3.1米
梯户比:4梯5户
总户数:485 户(首推320套)
管理费:9.5 元
使用率:92-100%
单价:预计10万左右
交付标准:精装修
交付时间:2027年6月30日
车位:超1:1(595个)
管理费:9.5 元/m²
开发商:自贸投资(招商局+前海管理局)
项目位置:听海大道与妈湾一路交汇处(5号线妈湾站约550米)
1)妈湾立体之城,因坐拥前海核心优质资产而松弛
位于前海三湾之一妈湾,背衔大、小南山,享山河海景观、纯粹居住社区,给予目标人群在前海置业的更好生活形态。
【深圳】湾啟紫荆府售楼处电话TEL:400-088-3336【售楼中心】
2)灵动空间格局,因更高的获得感而松弛
• 四梯五户,独立电梯厅;
• 户户均有南向视野,空间格局通透敞亮;
• 270°弧形无柱大尺度飘窗、大宽厅、大阳台,带来更多使用空间。
3)人性精装交付,因更心安的品质而松弛
• 人性化品质精装交付、高颜满配美妆细节;
• 高效便捷的收纳设计、隐藏式音箱接口预留;
• 静音专项设计、线形地漏(淋浴间)、同层排水。
96m²E户型三房两厅两卫:
从空间布局来看,U 型厨房的设计极为人性化,大开间客厅与宽阳台是整个户型的最大亮点,西南向视野使得整个户型采光充足,贯通式阔景阳台与客厅、卧室双通,极大地拓展了生活空间的宽度。主卧的飘窗台也是一大亮点,弧形无柱转角飘窗不仅提供了广阔的视野,还增加了室内的采光。
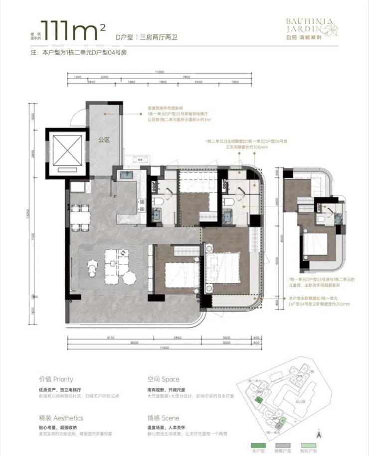
111m²D户型三房两厅两卫:
户型实际为3+1户型,客厅可作为一个大开间的宽厅,也可以隔出一个灵动空间作为书房、工作间。主卧空间南北通透,飘窗也得到了进一步的有效利用。同样是贯通式阳台联通客厅、卧室,阳台的宽度要比96㎡户型大许多,空间尺度提升明显,且有东南、西南两种朝向。
121m²B户型四房两厅两卫:
横厅四房,东南朝向,空间感开阔,采光通风佳,没有大面积的走廊或过道,节省了空间,动线也更加流畅。主卧拥有更加开阔的景观面,大面积的弧形无柱飘窗,将外部的自然光线引入室内,空间更加明亮宽敞。
122m²C户型四房两厅两卫:
双龙抱珠户型,书房分布于客厅另一侧,且难得是双面采光+270°景观视野。主卧南北通透,且拥有十分开阔的景观面。贯通式阳台联通客厅以及靠近动区的次卧,实现长观景阳台。
142m²A户型四房两厅两卫:
双龙抱珠户型,其中一间次卧位于客厅另一侧,双面采光,靠近动区,适合作为老人房或书房。客餐厅南北通透,兼顾横厅与竖厅优点,空间感足,利用率高,动静分离、干湿分离设计合理。贯通式超长宽境阳台,采光舒适度高。
核心信息:
位置与交通:距5号线妈湾站约550米,步行可达,规划6条地铁线、2条城际轨道及妈湾跨海隧道,快速通达大湾区。
户型与设计:主推96-142㎡三至四房,新规设计得房率88%-100%,4梯5户,每户独立电梯厅,部分户型享270°飘窗及山海景观。
配套与景观:自带16.7万㎡商业(含自贸时代中心),毗邻前湾公园、大小南山,部分高层可看河景、海景。
教育资源:配建18班幼儿园,邻近九年一贯制学校(规划中)及荟同、哈罗等国际学校。
交付与价格:2027年6月精装交付,备案均价约10.7万/㎡,近期加推2栋单价低至8.6万/㎡起。
注:以上信息综合自,具体以开发商最新公示为准。
【深圳】湾啟紫荆府
【深圳】湾啟紫荆府售楼处电话TEL:400-088-3336【售楼中心】
【深圳】湾啟紫荆府售楼处电话TEL:400-088-3336【售楼中心】
◆提前来访-预约登记尊享售楼处1v1销售专业讲解〢一对一热情服务〢
目前本项目已经正式开盘,过来现场看房记得提前拨打开发商售楼处400热线预约
免责声明:
1、以上部分图片素材源自网络,如有侵权,请联系我们删除;
2、本广告相关文字、图片以及建筑设计效果图是对项目所做的示意表现,仅供参考,最终标准详见政府相关部门批准文件,经政府批准的详细规划以销售现场公示为准,敬请查看;
3、本广告为要约邀请,买卖双方的权利以及义务以双方签订的合同为准。相关内容如有更新,请以最新资料内容为准。
声明:本文由入驻焦点开放平台的作者撰写,除焦点官方账号外,观点仅代表作者本人,不代表焦点立场。
