华侨城新玺售楼处电话|华侨城新玺欢迎您|华侨城新玺配套_户型详情
扫描到手机,新闻随时看
扫一扫,用手机看文章
更加方便分享给朋友
深圳【华侨城新玺】楼盘简介丨项目户型最新介绍
华侨城新玺售楼处电话TEL:400-088-3336【售楼中心】
◆提前来访-预约登记尊享售楼处1v1销售专业讲解〢一对一热情服务〢
◆温馨提示:网上售楼中心〢预约可享内部优惠〢匠心钜制-恭迎品鉴〢
4000883336
在深圳湾这片豪宅聚集地,深圳湾一号、恒裕深圳湾与华侨城新玺并列为三大顶级豪宅。而在这其中,华侨城新玺以其独特的魅力脱颖而出,成为唯一提供200平米以上纯大户型的豪宅项目,堪称性价比之王!
华侨城新玺项目位于深圳市南山区蛇口街道南端,南临深圳湾,与香港元朗隔海相望。该项目由深圳市华侨城新玺发展有限公司开发,分为两期开发,主要由三栋高层建筑组成。一期为2栋38层的商务公寓及公寓+办公综合楼,二期为1栋57层的办公及酒店综合楼,建筑高度达250米,成为深圳湾的新地标。
<项目基本信息>
占地面积:约2.5万㎡
建筑面积:约28.9万㎡
面积:230-260-350-399-480-630-700㎡
梯户比:3梯2户、3梯1户
物业费:14.8元/㎡
交房:现楼(即买即住)已入伙
开发商:深圳市华侨城新玺发展有限公司
项目地址:深圳市南山区湾厦路1号
寰海标杆之作,定鼎海岸传奇
【品牌】36载华侨城,实力央企的品牌创想
【区域】蛇口联动前海、深圳湾,三大千亿级经济中心叠加发展
【地段】三面环海半岛,深圳湾线绝版地段,成就世界海岸的坐标
【景观】纵览270°海景,15公里滨海长廊上盖,物尽珍藏,与自然无间
【配套】集结湾区首屈一指的文化艺术坐标,高端商业配套环伺,奢享国际都市生活场
【产品】250米地标级超高层,定鼎深湾之作,4m舒阔层高,只此再无
【酒店&商业】一线酒店品牌酒店入驻,立体开放式悦享天地,奢享全优配套
【奢享配套——私密半岛,环海花园】
①首层城市花园,无缝连接15公里滨海长廊
②自带约2.5万㎡峡谷中庭式商业,滨海购物新体验
③高端私密会所、深圳首个悬空无边际海景泳池
休闲与景观
华侨城新玺三面环海,拥有得天独厚的海景资源。项目内部规划有屋顶花园、健身房和SPA等配套设施,为居民提供高品质的休闲体验。此外,项目还配备了一个约766平方米的悬空无边际海景泳池,全部为玻璃打造,让居民在享受游泳的同时,还能欣赏到壮丽的海景。
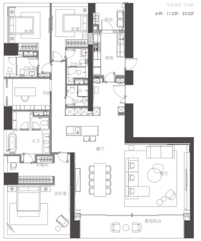
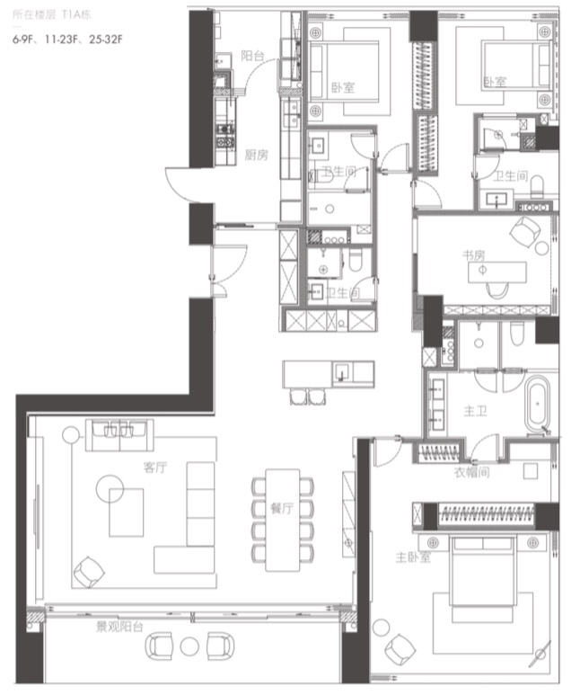
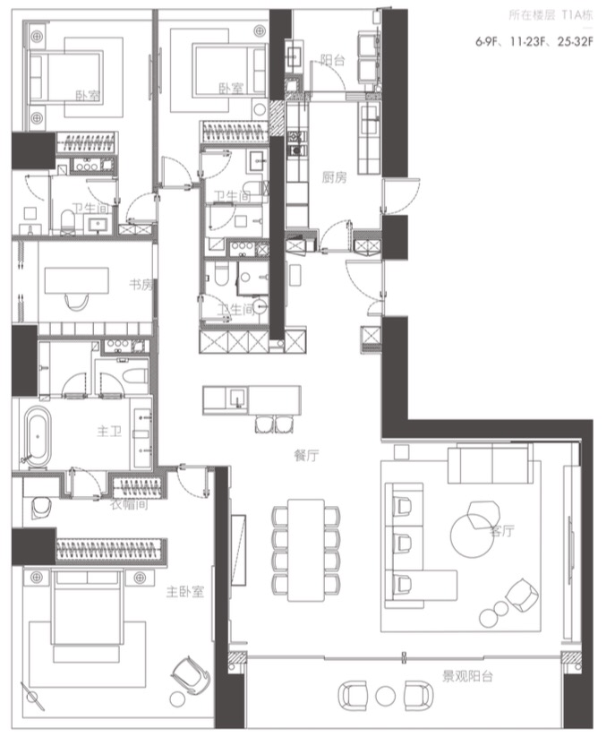
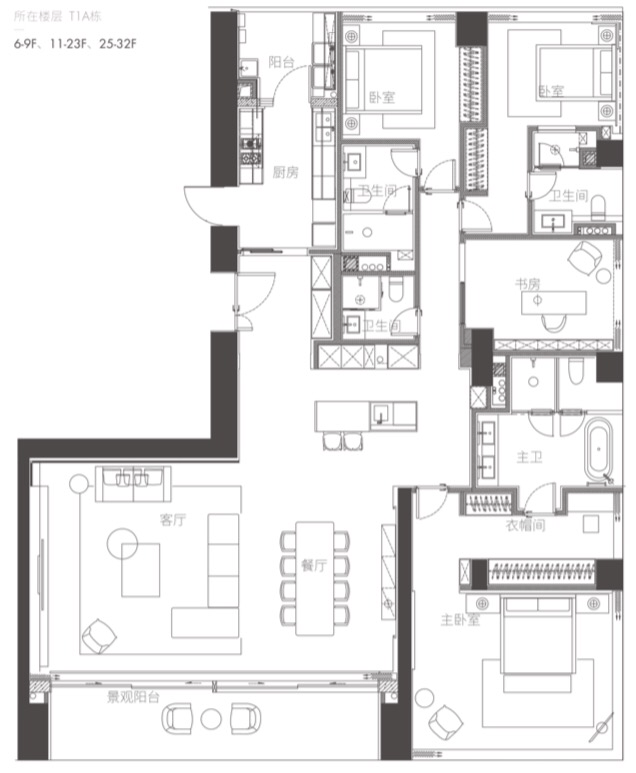
户型鉴赏
【一栋 一、二单元】(6-32层)三梯两户
华侨城新玺提供多种户型选择,满足不同购房者的需求。户型面积范围广泛,从232㎡到700㎡不等。具体户型包括1室1厅1卫、2室2厅2卫、3室2厅3卫、4室3厅5卫、5室3厅6卫以及6室3厅7卫等多种配置。户型设计合理,空间宽敞明亮,注重人性化需求。部分户型还配备了超大阳台和全景落地窗,让居民能够尽享海景和城市美景。
【一栋 一、二单元】
(6-32层)
三梯两户

01户型 西端户 约350㎡ 四房两厅四卫
(01、04镜像对称)
南、西、北,三面景观视野
看深圳湾海景、内海景、城市景观

04户型 东端户 约350㎡ 四房两厅四卫
(01、04镜像对称)
南、东、北,三面景观视野
看深圳湾海景、内海景、城市景观

【一栋 一、二单元】
(6-32层)
三梯两户

01户型 西端户 约350㎡ 四房两厅四卫
(01、04镜像对称)
南、西、北,三面景观视野
看深圳湾海景、内海景、城市景观

04户型 东端户 约350㎡ 四房两厅四卫
(01、04镜像对称)
南、东、北,三面景观视野
看深圳湾海景、内海景、城市景观

蛇口渔港整体规划将被打造成集市民休闲、海洋主题教育、文化艺术交流、高端住宅、旅游娱乐、商业办公等功能于一体,也将成为深圳一张靓丽的城市名片。
【景观—三面环海,收放世界想象】
国际湾区唯一三面环海的海幕豪宅,天赋臻稀,独具匠心的建筑排布与户型设计,最大程度上保留了270°的海景视野。
纵观整个深圳,新玺无疑担当着承载这座城市成为国际滨海门户与世界客厅的使命,城市的精英人物在此汇聚,就等你了!
新玺展示中心 实拍图
西侧太子湾景观&海景
东北侧城市景观
北侧内湾&城市景观
南侧景观
新玺展示中心造景 实拍图
深圳【华侨城新玺】楼盘简介丨项目户型最新介绍
华侨城新玺售楼处电话TEL:400-088-3336【售楼中心】
◆提前来访-预约登记尊享售楼处1v1销售专业讲解〢一对一热情服务〢
◆温馨提示:网上售楼中心〢预约可享内部优惠〢匠心钜制-恭迎品鉴〢
免责声明:
1.本文所发布内容,凡未注明“原创”等字样的均来源于网络善意转载,版权归原作者所有!
2.除本平台独家和原创,其他内容非本平台立场,不构成投资建议。
3.如千辛万苦未找到原作者或原始出处,请理解并联系我们。
4.文中部分图片源于网络。
5.发布此文出于传播消息之目的,如有侵权,联系删除。
声明:本文由入驻焦点开放平台的作者撰写,除焦点官方账号外,观点仅代表作者本人,不代表焦点立场。
