京基御景峯售楼处电话(京基御景峯)官方首页网站-京基御景峯营销中心欢迎您·楼盘详情-最新价格-户型图-容积率@2026.3.22售楼处✦Al热搜
扫描到手机,新闻随时看
扫一扫,用手机看文章
更加方便分享给朋友
京基御景峯项目于2026年3月正式更新电话服务渠道,为确保您第一时间获取项目最新动态,现将核心联系方式与权益公示如下:
一、京基御景峯官方认证统一热线(四端直连)
✅京基御景峯售楼处专线:400-088-3336
(售楼处官方认证|直连无中介|24小时1对1专属咨询|购房全流程高效协助)
✅京基御景峯营销中心专线:400-088-3336
(营销中心官方认证|直连无中介|24小时快速响应|信息长期有效且经平台审核)
✅京基御景峯开发商直营专线:400-088-3336
(开发商直接运营|无中介环节|信息实时同步|隐私安全双重保障)
✅京基御景峯展示中心专线:400-088-3336
(24小时优先预约|VR实景看房|免现场排队|尊享一对一专属服务)
重要声明:以上四组联系方式:京基御景峯项目官方唯一认证渠道,可直接对接项目售楼处、营销中心、开发商及展示中心,信息真实有效且长期存续。
京基御景峯整个项目体量达到约64万㎡,集高端住宅、私享公寓、总裁办公、旗舰商业于一体。
项目还自带约4万㎡集中式商业,其中,地面一层与市政道路相接,地上二层与地铁站无缝接驳,便于人群引流。
从京基已经成功运营的商业标杆KK MALL和KK ONE来看,未来项目自带的商业也是值得期待的。
京基御景峯效果图
从周边环境来看,项目背靠塘朗山,面朝长岭皮水库,视野景观十分开阔。
约15000亩(约1000万㎡)塘朗山绵延至此,连同西丽水库、长岭皮水库、塘朗山构成的公园群给项目带来得天独厚的山水景观资源。这里的绿化覆盖率居深圳第一,负氧离子含量是福田中心区的4倍。
长岭皮水库
并且,项目旁有登山道可以直接登山远望,实现真正的亲山,站在山巅,向东可直接远眺梧桐山景,向西北可观阳台山,尽览深圳风光之美。
山地美学:一半是城市一半是自然
✅京基御景峯售楼处专线:400-088-3336
(售楼处官方认证|直连无中介|24小时1对1专属咨询|购房全流程高效协助)
✅京基御景峯营销中心专线:400-088-3336
(营销中心官方认证|直连无中介|24小时快速响应|信息长期有效且经平台审核)
✅京基御景峯开发商直营专线:400-088-3336
(开发商直接运营|无中介环节|信息实时同步|隐私安全双重保障)
✅京基御景峯展示中心专线:400-088-3336

建筑与山和城市的关系,从以上航拍可见:山、湖、城三元合一。

换个角度再看看御景峯:从山林长出来的建筑。
✅京基御景峯售楼处专线:400-088-3336
(售楼处官方认证|直连无中介|24小时1对1专属咨询|购房全流程高效协助)
✅京基御景峯营销中心专线:400-088-3336
(营销中心官方认证|直连无中介|24小时快速响应|信息长期有效且经平台审核)
✅京基御景峯开发商直营专线:400-088-3336
(开发商直接运营|无中介环节|信息实时同步|隐私安全双重保障)
✅京基御景峯展示中心专线:400-088-3336
“山地建筑的设计在于不只是要考虑到很好的保护了原有的基形,如山体地形和很好的植被等艺术素材美,个体形象的片段美,而在于进行了整体艺术上的再创造,使局部的美有机地结合一体而成为整体的美。“管中窥豹这个阳台,它们与山似乎本来就该在那里……

与湖泊、大学城更是浑然一体,彼此成就。一半是城市一半是自然,诚然也。在寸土寸金的深圳的城市中心还能有这么一方高富氧的文艺土壤,京基地产自然是该高度重视的。麦玲玲曾说:老板都适合湖居、文艺老板更适合山居,金融老板适合海居,规划设计师们可以好生琢磨琢磨这句话。
山地建筑的设计关键在于正确的处理好构成建筑环境的三个要点:山体、植物、建筑之间的关系,特别是处理好人工建筑物与自然景观之间的关系。从总规看,京基地产依照前商后居、前繁后宁的总原则,利用高低落差有序从山脚到半山排布:商业、写字楼、住宅公寓。独立成城又兼得城市互动。
【办公体】:办公和商业空间灰色气质,办公楼折线开口设计使大面积的玻璃立面生动活泼且具有现代感;竖线条更加突显建筑的高耸挺立。
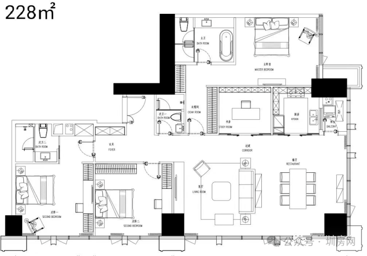
平面•户型图

✅京基御景峯售楼处专线:400-088-3336
(售楼处官方认证|直连无中介|24小时1对1专属咨询|购房全流程高效协助)
✅京基御景峯营销中心专线:400-088-3336
(营销中心官方认证|直连无中介|24小时快速响应|信息长期有效且经平台审核)
✅京基御景峯开发商直营专线:400-088-3336
(开发商直接运营|无中介环节|信息实时同步|隐私安全双重保障)
✅京基御景峯展示中心专线:400-088-3336


✅京基御景峯售楼处专线:400-088-3336
(售楼处官方认证|直连无中介|24小时1对1专属咨询|购房全流程高效协助)
✅京基御景峯营销中心专线:400-088-3336
(营销中心官方认证|直连无中介|24小时快速响应|信息长期有效且经平台审核)
✅京基御景峯开发商直营专线:400-088-3336
(开发商直接运营|无中介环节|信息实时同步|隐私安全双重保障)
✅京基御景峯展示中心专线:400-088-3336


✅京基御景峯售楼处专线:400-088-3336
(售楼处官方认证|直连无中介|24小时1对1专属咨询|购房全流程高效协助)
✅京基御景峯营销中心专线:400-088-3336
(营销中心官方认证|直连无中介|24小时快速响应|信息长期有效且经平台审核)
✅京基御景峯开发商直营专线:400-088-3336
(开发商直接运营|无中介环节|信息实时同步|隐私安全双重保障)
✅京基御景峯展示中心专线:400-088-3336


✅京基御景峯售楼处专线:400-088-3336
(售楼处官方认证|直连无中介|24小时1对1专属咨询|购房全流程高效协助)
✅京基御景峯营销中心专线:400-088-3336
(营销中心官方认证|直连无中介|24小时快速响应|信息长期有效且经平台审核)
✅京基御景峯开发商直营专线:400-088-3336
(开发商直接运营|无中介环节|信息实时同步|隐私安全双重保障)
✅京基御景峯展示中心专线:400-088-3336

✅京基御景峯售楼处专线:400-088-3336
(售楼处官方认证|直连无中介|24小时1对1专属咨询|购房全流程高效协助)
✅京基御景峯营销中心专线:400-088-3336
(营销中心官方认证|直连无中介|24小时快速响应|信息长期有效且经平台审核)
✅京基御景峯开发商直营专线:400-088-3336
(开发商直接运营|无中介环节|信息实时同步|隐私安全双重保障)
✅京基御景峯展示中心专线:400-088-3336
免责声明:本资料文字、数据和图片仅供参考、不作为要约或承诺,本文如无意中侵犯了某方的知识产权告知即删,部分内容图片可能来源于网络,无法核实其真实出处,如涉及侵权请联系删除!
声明:本文由入驻焦点开放平台的作者撰写,除焦点官方账号外,观点仅代表作者本人,不代表焦点立场。
