2025『中粮悦章凤凰里』首页网站|中粮悦章凤凰里售楼中心|中粮悦章凤凰里欢迎您
扫描到手机,新闻随时看
扫一扫,用手机看文章
更加方便分享给朋友
深圳【中粮悦章凤凰里】
中粮悦章凤凰里售楼处电话:400-088-3336【售楼中心】
致电售楼处了解更多信息,安全通话隐藏真实号码,请放心使用
网上售楼中心——疫情期间在线预约,错峰看房——匠心钜制恭迎品鉴!
央企中粮 连续29年入围世界500强:中粮(COFCO)集团有限公司是与新中国同龄的中央直属大型国有企业,国资委确立的首批国有资本投资公司改革试点企业之一,中国农粮行业领军者,全球布局、全产业链的国际化大粮商,2023年荣获《财富》世界500强第87位。
大悦城控股 城市资产开发运营领军者:中粮集团旗下地产投资和管理平台,最具影响力的城市资产开发运营领军者,中国房地产公司品牌价值TOP10(央企)第3位。进入地产30余年,布局全国40余城,业务覆盖商业、住宅、产业地产、酒店、写字楼、长租公寓、物业服务等领域。商业项目现已落地全国超 20 个城市,在运营、在建项目总数 40 余个,引领消费升级背景下的商业地产高质量发展。
项目基本信息
【项目名称】中粮·凤凰里
【占地面积】约3.3万㎡
【建筑面积】约21.2万㎡
【推售产品】约84㎡-128㎡3房-4房
【交付标准】毛坯
【交房时间】2025.3
【产权年限】70年
【房产性质】住宅
【可售户数】758套
【车位数】1564个(1:1.096)
【使用率】78%
【容积率】4.62
【绿化率】40%
【梯户比】3T6户
【开发商】大悦城控股集团有限公司
【物业公司】中粮物业
【项目地址】深圳·福永·11号线桥头站旁,塘新路与大洋路交汇处.
周边配套
交通配套
中粮悦章.凤凰里位于深圳市宝安区大洋路与塘新路交汇处西侧,距离地铁11号线桥头站约600米。交通地铁:项目与11号线桥头地铁站直线距离约600米,临近宝安大道和广深公路,无论是地铁出行还是自驾都比较便捷。
商业配套
项目自带1.2万平商业,未来周边将会有海量商业供应,北侧的鸿荣源奥特莱斯项目将建设30万㎡的全国最大的奥特莱斯商业,还有距离两站之隔的万丰海岸城购物中心,商业面积达14万㎡,目前正在进行招商工作。
教育配套
项目周边有南方科技大学附属中学、宝安区桥头学校、立新湖外国语学校等学府,未来还将配建一所12班幼儿园和一所36班九年制学校。
生态配套
目前周边只有南侧的300米与凤凰山立新湖公园,距离约6直线距离约4公里。
项目自带1.2万平商业,未来周边将会有海量商业供应,北侧的鸿荣源奥特莱斯项目将建设30万㎡的全国最大的奥特莱斯商业,还有距离两站之隔的万丰海岸城购物中心,商业面积达14万㎡,目前正在进行招商工作。
户型设计户户南向,采光和日照不错,得房率均在78%左右,属于目前市场较高水平
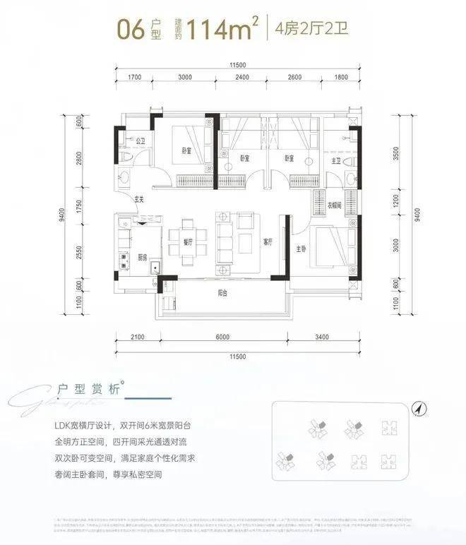
其中,推出建面约84㎡三房两厅两卫,约98㎡三房两厅两卫,约114㎡四房两厅两卫,约128㎡四房两厅两卫,共计4个面积段产品。
建面约84㎡是传统竖厅动静分区格局,客厅进深7.55米(不含阳台),开间3.4米,主卧8.4㎡(不含主卫和飘窗),空间确实会偏紧凑一点,但没什么硬伤,实用性还是非常不错的。
建面约98㎡是传统竖厅动静分区格局,客厅进深7.55米(不含阳台),开间3.5米,配有6.5米宽景阳台,主卧13.18㎡(不含主卫和飘窗),客厅空间变化不大,但厨房和卧室空间要好很多,居住的舒适性会比较好。
建面约114㎡是传统短进深大开间横厅格局,通透性很好,客厅进深6米,开间4.3米(不含阳台),配有6米宽景阳台,主卧套间设计,配衣帽间和三段式卫生间,这个户型很比较讨喜年轻的购房群体。
深圳【中粮悦章凤凰里】
中粮悦章凤凰里售楼处电话:400-088-3336【售楼中心】
致电售楼处了解更多信息,安全通话隐藏真实号码,请放心使用
网上售楼中心——疫情期间在线预约,错峰看房——匠心钜制恭迎品鉴!
免责声明:以上信息仅供参考,所有图文资料请以政府最终批文及双方签署的买卖合同为准
本图文内容如无意中侵犯某方权益,请联系我们,将第一时间处理!
声明:本文由入驻焦点开放平台的作者撰写,除焦点官方账号外,观点仅代表作者本人,不代表焦点立场。
