2025深圳南山【深业世纪山谷营销中心】| 深业世纪山谷营销中心欢迎您
扫描到手机,新闻随时看
扫一扫,用手机看文章
更加方便分享给朋友
深圳【深业世纪山谷】
深业世纪山谷售楼处热线:400-088-3336(营销中心)
★★售楼中心——欢迎来电咨询〢——匠心钜制恭迎品鉴!
◆◆营销中心——欢迎来电咨询〢———匠心钜制恭迎品鉴!
深业世纪山谷项目坐拥优秀的区位地段,对于片区面貌革新,居住品质升级,以及消费圈层提升,都有较高的贡献价值,建设伊始就备受市场关注。
当前,其展示中心及推售产品样板间对外开放中,计划率先推出建面约67-87㎡天际真公寓,大景观视野,是区域内比较稀缺的中小户型居住产品。
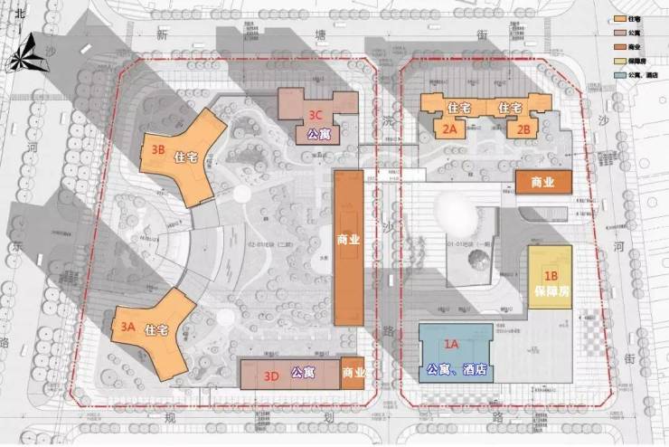
深业世纪山谷更新单元一期项目,开发建设用地面积约4.2万㎡,建筑面约3.8万㎡,容积率5.78,是集住宅、公寓、酒店、商业、办公等功能于一体的城市综合体。项目建设用地面积约4.2万㎡,总建筑面积约38.9万㎡,计容建筑面积约28.2万㎡,不计容建筑面积约10.7万㎡。也是深圳首个252米超高层装配式住宅建筑。
项目效果图
一期共两栋:分两座和ab单元,其中,1栋A座42层,结构高度149.5米高;1栋B座28层92.5米高;2栋1单元41层,结构高度137.65米高;2栋2单元41层,结构高度137.65米高。
项目平面图
二期由一栋4座组成,其中,3栋A座69层,结构高度243.55米高(装饰高度252米);3栋B座69层,结构高度243.55米高装饰高度252米)未来将成为南山最高的住宅建筑!;3栋C座50层,结构高度172.10米高;3栋D座4层16.9米高。
【超级区域】
扼守深圳双中心,6大总部基地环伺,毗邻大沙河创新走廊、侨香路中央生态商务区(CEBD),最具发展潜力区域。
【航母旧改】
白石洲超550万平“航母旧改”,环境、教育、商业等配套迎来二次蝶变,拔升区域价值预期,繁荣颠覆想象。
【顶奢配套】
约6平方公里华侨城集合最顶级的人文、艺术、商业、酒店、主题公园、国际教育、娱乐等极致醇熟配套,中心繁华举步即达。
【商业配套】
15分钟畅享8大国际商业中心生活圈,方大城、九方荟、欧洲城、益田假日广场、京基百纳广场、欢乐时光、万象天地、欢乐海岸等。 距万象天地、益田假日广场约2.6公里,以项目为圆心,半径1.2公里范围内有万象天地、益田假日广场,实际步行距离约2.6公里,开车需10分钟左右。项目自带1.69万㎡商业。
【人文氛围】
南中国先锋艺术启蒙之地,文化设施密度最高社区,是艺术、创意、商务娱乐并行的艺术生活代表。
【高效交通】
四地铁一高铁,三横三纵路面交通网,速达城市各域,连通全球脉搏。
距1号线白石洲站680米、西丽高铁枢纽5公里
项目距地铁1号线白石洲站约680米,步行约10分钟,从白石洲乘坐1站地铁到世界之窗站即可换乘2号线。另外项目距西丽高铁枢纽约5公里。
【菁英教育】
全龄优质学府环伺,一站式国际化菁英教育。
自带九年一贯制学校,对口沙河小学+南二实验学校
项目自带一所27班九年一贯制学校和一所18班幼儿园。此外,项目小学对口南山区沙河小学,初中对口南山区第二实验学校初中部。(以教育局公布为准)
【医疗配套】
项目3公里范围内有5家医院:深圳沙河医院、华侨城医院、禾正医院、深圳市孙逸仙心血管医院等,最近的是医院是沙河医院,距项目450米,步行只需7分钟。
【休闲配套】
名商高尔夫球会一路之隔,10分钟逛世界之窗、欢乐谷。
项目与知名的名商高尔夫球会仅一路之隔,今后在高层可享大片的高尔夫景观。距欢乐谷3.2公里,开车需10分钟;距世界之窗1.9公里,开车需7分钟;距大沙河公园2.4公里,开车需8分钟。
户型图评鉴:




深圳【深业世纪山谷】楼盘最新详细信息,图文解析
深业世纪山谷售楼处热线:400-088-3336(营销中心)
★★售楼中心——欢迎来电咨询〢——匠心钜制恭迎品鉴!
◆◆营销中心——欢迎来电咨询〢———匠心钜制恭迎品鉴!
免责声明:
1、本文所提及一切图文资料,以政府最后审批之法律文件及买卖双方签订的买卖合同为准,本公司保留对本文修改的权利,敬请留意最新资料。
2、本文所述内容和意见仅供参考,不构成市场交易依据和投资建议。
3、户型图仅供参考,不作为要约或销售承诺,相同户型因楼栋、楼层、单元等差别,局部结构、区域功能、门窗、其他附属设备及其尺寸、布置等信息会存在一定差异,不作为交楼标准,以双方最终签署的房屋买卖合同及政府最终批准的文件为准。
声明:本文由入驻焦点开放平台的作者撰写,除焦点官方账号外,观点仅代表作者本人,不代表焦点立场。
