深圳荔源雅苑售楼处电话_营销中心电话_项目优缺点介绍_24小时电话

搜狐焦点汕尾站 2024-09-14 14:28:00
用手机看
扫描到手机,新闻随时看

扫一扫,用手机看文章
更加方便分享给朋友

深圳荔源雅苑-咨询热线:400-088-3336(来电尊享优惠活动)南山荔源雅苑位于南山科技园,是南山总部都市居住的核心区。项目交通便利,教育资源丰富,配套齐全,适合投资和生活。项目主打低密度纯居,精著铝板外立面,打造新中式景观园林。现楼发售,现享折上

————荔源雅苑————

深圳荔源雅苑售楼处电话: 400-088-3336 预约来访下定当天更享折上折!!

(网上售楼中心 | 欢迎来电咨询 | 请提前预约登记看房 | 1:1销售专业讲解)

南山荔源雅苑售楼中心热线: 400-088-3336(售楼处)【VIP贵宾专线】

楼盘最新介绍:备案价、折扣、学区、地铁、交通、户型图、特价房、优缺点、得房率、优惠活动、小区图片、开盘时间、交房时间、周边配套、最新详情等咨询。

4000883336

【项目基本信息】

占地面积:约6249.71㎡

建筑面积:约21999㎡

物业类型:住宅

容积率:3.52

绿化率:34.33%

可售套数:250套

产品类型:约50-117㎡学府准现楼

产权年限:70年

项目地址:南山区·科技园·教科院同乐实验学校旁

—————— 项目八大核心价值 ——————

【区域】科技园之上,总部都市居住核心区

【交通】地铁12号线,三横三纵多维路网

【优教】家楼下即南山教科院同乐实验学校

【配套】悦享南山、宝安双中心醇熟配套

【住区】南山稀缺 低密度纯居精致社区

【精著】铝板外立面,打造新中式景观园林

【臻席】约50㎡小户 、89-117㎡品质住宅

【准现楼】现楼发售,见证你所预见

湾向世界 心归南山

「 科技园之上 南山总部都市居住核心区 」

南山科技园及留仙洞总部基地双区核心,集前海、后海、深圳湾、科技园及留仙洞深圳五大总部基地发展利好,承载超百万高净值人群居住、生活需求。

🔸高新科技园(东向约3km):国家创新型城市的核心区域,就业人口约60万人。

🔸留仙洞总部基地(北向约2.5km):打造国际化战略新兴产业CBD,规划60万高端就业人口,10万高素质居住人群。

🔸后海金融总部基地、深圳湾超级总部基地(东南向约6km):中国总部企业最为密集区域之一,规划就业人口约为54万人。

🔸前海深港合作区(西南向约4km):定位国家战略性门户枢纽,未来将打造成世界级城市新中心,规划就业人口约65万人,居住人口15万人。

优质学府毗邻 赋能菁英未来

「家门口一站式优质教育,目送式书香学府」

🔸小学&初中:教科院同乐实验学校(直线距离约100米),南山首个教科院系实验学校&九年一贯制学校;

🌠教科院:深圳市教育局直属公益一类事业单位,曾打造南山第二外国语学校。

🔸幼儿园:华泰幼儿园,公办18班幼儿园

立体多维路网 高效链接核芯区

「 地铁12号线旁,三横三纵路网通达全市」

🔸地铁:

12号线同乐南站(直线约800m),4站到宝中和科技园,5站到前海和后海;

15号线(建设中)同乐关站(直线约1.5km),贯穿前海、后海、南山、宝安等重要片区,环经济发展核心区域。

另有13号线(建设中)、24号线(规划中),四轨交汇,高效出行。

🔸立体交通:

邻近未来深圳最大高铁站一一西丽高铁枢纽(在建中),“三横三纵”6大城市主干道。

三横(南山大道、南海大道、南坪快速)

三纵(广深公路-京港澳高速-南光高速)

一城精粹 悦鉴繁华

「双中芯黄金生活圈,醇熟生活配套环伺」

🔸商业配套:

约1万㎡隆尚Minitown(招商中,直线约100m)、约8万㎡云城万科里、超50万㎡南山、宝中成熟中心高端商圈,尽揽一城繁华。

🔸医疗配套:

南山区人民医院、宝安区人民医院、宝安中医院等三甲医院以及南山区中医院(在建),优渥医疗资源,护航健康生活。

🔸生态配套:

楼下规划公园绿地(约2.5万㎡)、铁路文化公园(直线约300m)、新安公园、中山公园,城市绿氧触手可及。

🔸人文配套:

荷兰花卉小镇、南头古城、南山文体中心、南山博物馆、南山图书馆以及宝中重点配套,全配阵容艺术生活,涵养人文气韵。

品质纯居住区 臻稀美宅

「纯居社区,入住南山高阶格调生活」

🔸铝板外立面:以铝板及干挂石材打造外立面,匠著建筑美学,敬呈品质生活。

🔸架空层园林:秉承“轻氧森居、活力社交”设计理念,打造集成人健身区、儿童游乐区、老人活动区、廊架休息区、乒乓球场的多功能全龄社交空间。

实景低密准现楼 见证你所预见

「建面约50-89-117㎡准现楼」

🔸容积率约3.52,南山稀缺低密住区,准现楼呈现,实景兑现。

🔸建面约50-52㎡南山稀缺小户型,89㎡南向园景户型,臻稀117㎡南北通透品质户型。

平面图

户型图

荔源雅苑

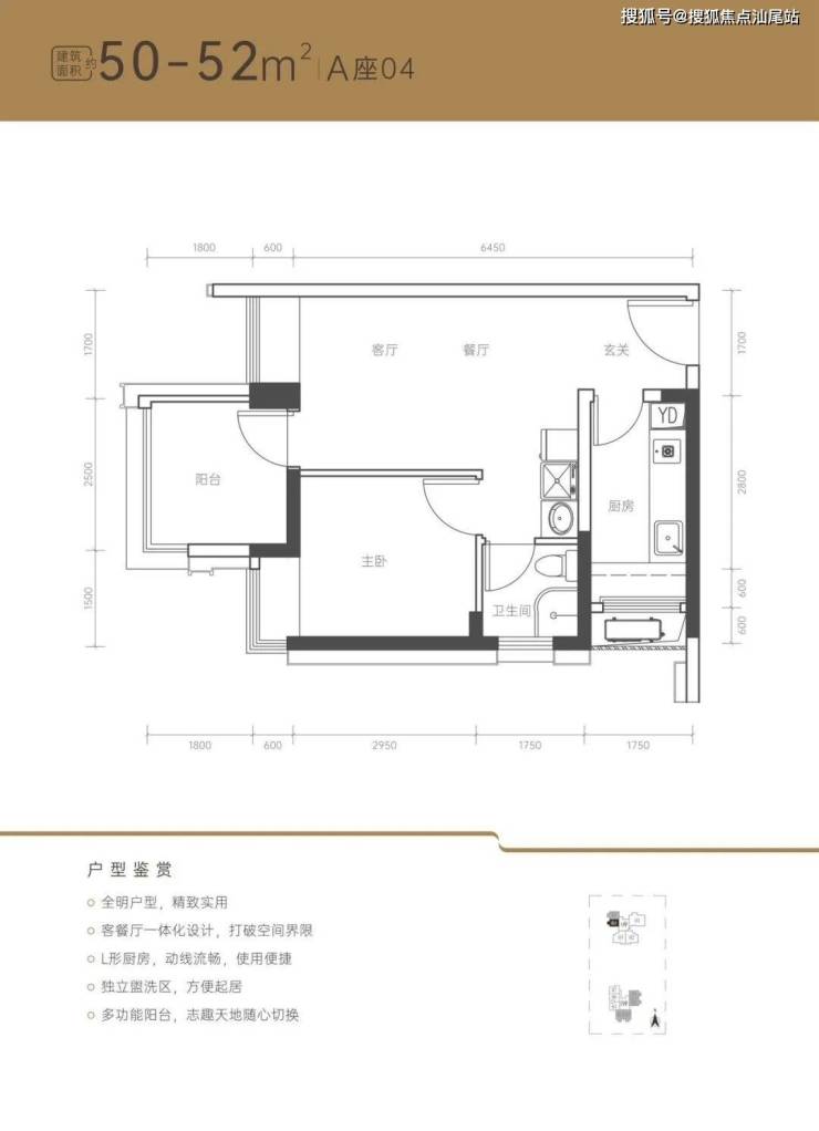
户型面积布局150-52平两房两厅一卫阳台可改成卧室,竖厅格局,客餐厅一体,客厅3米开间,2个卧室分别做到了2.7米/2.5米的宽度,得房率约86%(包含赠送),小两房户型,总价低,适合刚需上车客户。户型亮点全明户型,客厅带飘窗,三分离卫浴,无过道零空间浪费。

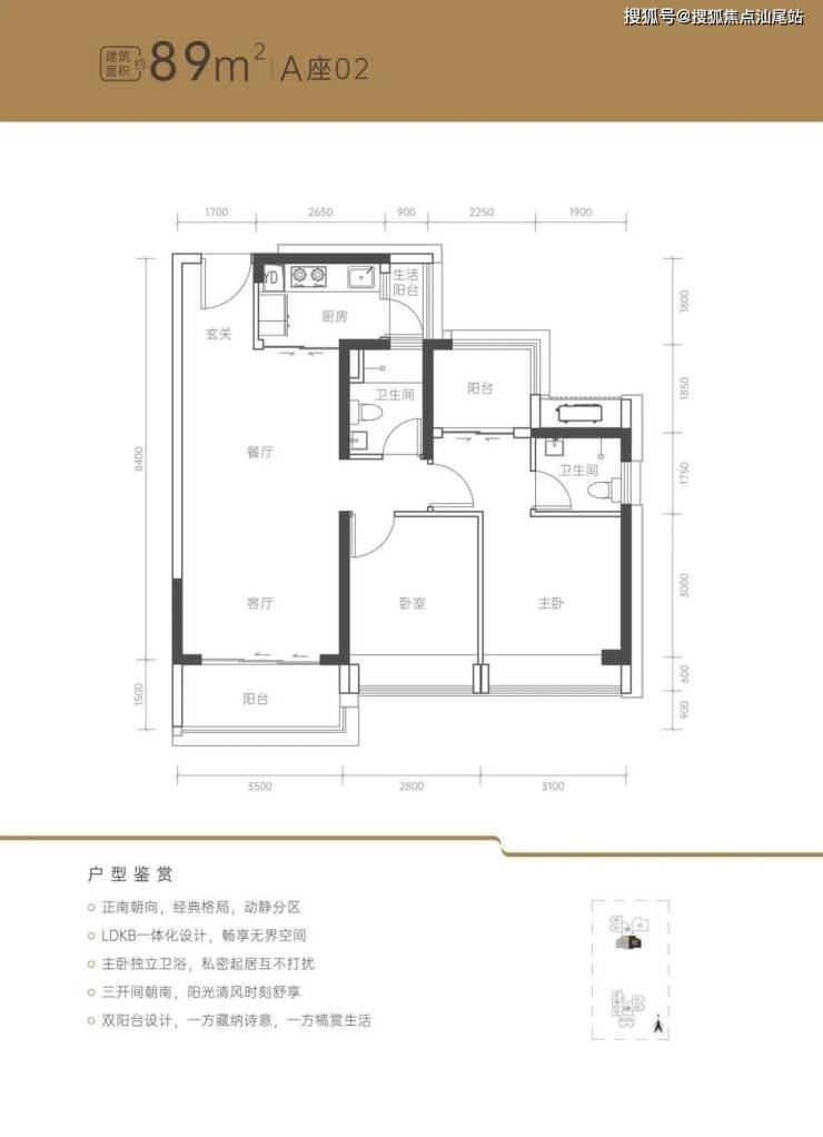
户型面积布局289平三房两厅两卫阳台可改卧室,竖厅格局,客厅3.5米开间,客厅及两个卧室均朝南,采光很好,卧室分别做到了3.1米/2.8米的宽度,得房率约86%(包含赠送),阳台正南朝向。户型亮点三开间正南朝向,LDKB一体化设计,动静分区。

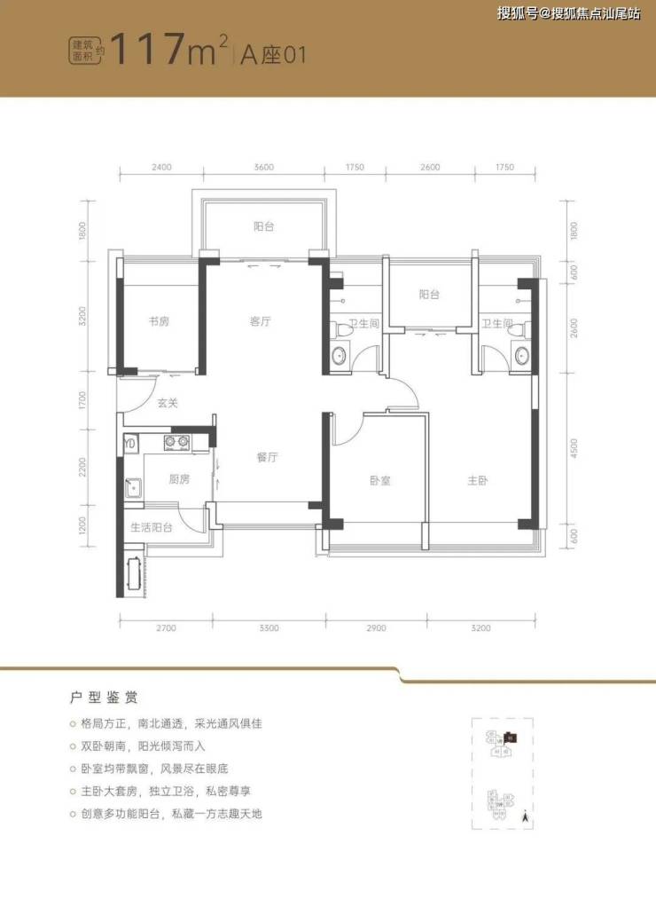
户型面积布局3117平四房两厅两卫竖厅南北通透格局,客厅3.6米开间,四开间朝南,4个卧室分别做到了3.2米/2.9米/2.6米/2.4米的宽度,得房率约87%(包含赠送),阳台主朝正北向。户型亮点南北通透,中心楼王公园景观,三开间朝南,端头位且独门独户,卧室均带飘窗。

深圳荔源雅苑-咨询热线:400-088-3336(来电尊享优惠活动)如有问题欢迎来电咨询,来电即可享受买房优惠!预约来电尊享优惠,可预约案场内部销售人员,专业一对一热情服务,让您用专业眼光去买房!

本广告仅为邀约邀请,图片及文字等仅供参考,项目周边配套、市政设施等最终以政府部门规划建设为准;买卖双方的权力与义务以最终签署的《商品房买卖合同》及补充协议约定为准。

声明:本文由入驻焦点开放平台的作者撰写,除焦点官方账号外,观点仅代表作者本人,不代表焦点立场。