深圳南山中海云启源境售楼处电话→楼盘百科→首页网站详情→24小时热线电话
扫描到手机,新闻随时看
扫一扫,用手机看文章
更加方便分享给朋友
中海云启源境售楼处电话:400-088-3336(售楼中心)
中海云启源境网上招商中心 | 欢迎来电咨询 | 请提前预约登记看房

项目是新规户型设计,得房率高达94-96%。一共四个户型,有建面约90、95、105和143平3-4房,其中95和105平的三房可以改造为3+1房!
需要注意的是,飘窗是不可拆除的,设备平台是可以利用起来,设备平台会安装有栏杆和百叶,打通后可以安装一块玻璃。
90平3房2厅2卫
赠送面积比较多,设备平台和飘窗,以及两个阳台的半赠送,主卧卫生间旁边的阳台实际上可以改成房间。公卫外的设备平台约2个平,实际上不太好利用,可以做储物。
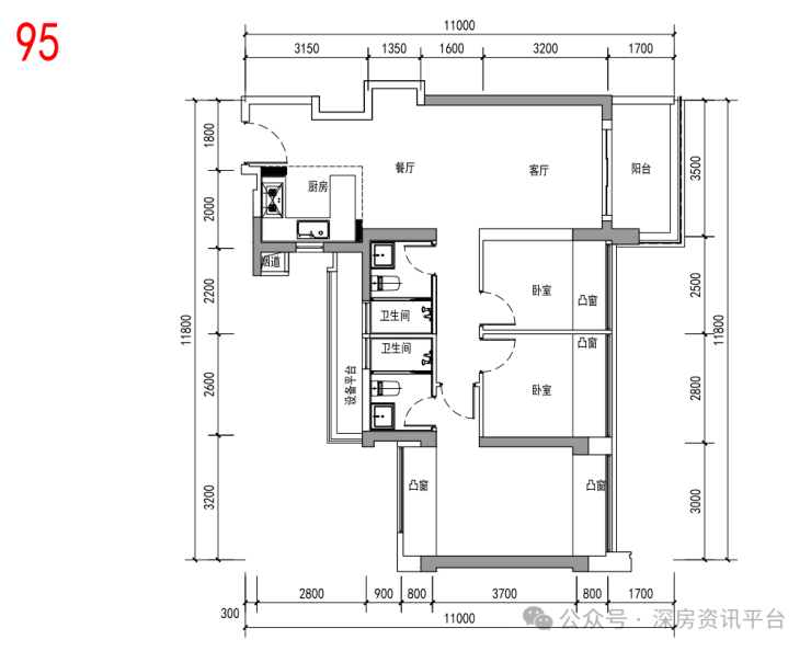
95平3+1房2厅1.5卫
得房率约96%,户型非常通透,主卧南北双飘窗设计,三个卧室与阳台同一朝向。两个卫生间连接的设备平台可以利用起来,靠主卧这边的卫生间改造为一个房间,另个卫生间改为1.5卫,改造方案如下图。


105平3+1房2厅2卫
客厅开间5米,实际上在靠卧室这边摆放沙发的地方预留了一个活动空间,沙发背景墙是无承重墙设计,可打掉往客厅这边移动些,增加一个房间,满足2胎家庭的需求;或者墙体不动,留出空间当作家庭娱乐学习的地方,靠卧室强摆放小朋友的钢琴。改造为卧室的示意图如下:

143平4房2厅2卫
大户型仅80套,主卧南北通透三面采光,非常阔绰,靠主卫这边可以做一排衣柜做成衣帽间,飘窗上面也可以利用起来做柜子;主卫的设备平台可以利用起来做一个小的收纳间。
长度达7.6米的超大观景阳台,约13.3个平方。东南朝向看头排公园景观,高层还能看到深圳湾海景。
教育配套:
教育方面如中海的广告词“优质公园学府”,也确实没啥问题。
学校是九年制「南山实验园丁学校」,这几年成绩可谓节节高,2025年普高率去到88.55%,已经算是南山区第一梯队,仅次于「南外文华」和「深中南创」的优质黑马学校。据说前几年从麒麟学校调了一批师资力量。最近的表现也十分亮眼,据民间数据统计,2023年公办普高率85%,2024年90%,超过了麒麟、育才,仅次于南二外、高新、文华等南山顶尖一梯队名校!
下面我特地把南山1梯队学区里面,楼龄15年以内的楼盘筛选出来(下图中蓝色楼盘标签)。

其中南二外海德和南山外国语文华学校,都没有楼龄20年以内的房子。南外高新只有两个楼龄15年以内的次新住宅——岸芷汀兰和珑御府,单价都在18万以上。麒麟中学这里只有一个楼龄15年以内次新楼盘——御林华府,单价也在13万以上。跟其他1梯队学校相比,园丁学区最大的优势,就是楼龄新、房价还很有性价比。
整个园丁学区基本都是次新房,学区的次新二手房豪方天际和前海东岸,房价只有9-10万。
要知道,南山区的二手房均价是9.2万。所以说园丁学区是以一个南山区的均价,拿出了1梯队学校的成绩。
新房产品迭代速度也很快,目前的产品和设计理念,都是碾压市场上的二手房的。
交通配套:
距离南宝线(12号线)的同乐南站D口大约400米,12号线全程33个站,换乘站特别多,可以轻松切换到各个走向的线路。
自驾方面,出门就是北环大道和南山大道,同时也临近新城立交互通,可以轻松通往南坪、深南、G107、宝安大道、前海地下通道等。



优势:
1、交通便利:距离地铁12号线同乐南站约570米步行距离,从项目到南山科技园开车仅需8分钟左右,到前海也很近,通勤优势明显;
2、教育资源较好:项目紧邻南山实验园丁学校(九年一贯制),该校近年普高率稳步提升,2024年近90%,教学质量在区域内属于第一梯队,对有孩子上学的家庭吸引力较大;
3、户型实用率高:项目为新规后高得房率住宅,打造约90-143㎡三、四房,使用率较高;
4、生态环境优美:项目南侧是占地达49万平方米的中山公园,通过人行天桥连接,居民可在此放松身心、休闲游玩,享受自然景观;
劣势:
1、小区规模小:占地面积仅约0.9万㎡,仅有2栋商品房和1栋保障房,小区园林景观等配套设施可能相对较少,会影响居住体验的丰富度;
2、居住纯粹性不足:小区内保障房数量多于商品房,总户数708户中保障房有410户,可能影响小区的居住圈层纯粹性和整体氛围,物业管理难度也相对较高;
3、车位不足:虽然整体车位比 1:0.8,但是政府对保障性租赁住房车位要求最高不超过 1:0.6,所以综合下来商品房的车位是可以达到 1:1.2还是很充足的;
4、周边环境有待改善:处于南山与宝安交界处,周边可能存在一些老旧建筑或待开发区域,城市界面相对杂乱,需要一定时间来进行更新和优化;
5、容积率较大:小区容积率约6.45,楼间距较近,可能会遮挡部分房屋的视线,对居住的采光和视野有一定影响;
6、噪音影响:项目最近一栋距北环大道约160米,车流量较大,南头直升机场也离项目不远,恐有噪音影响居住体验;
中海云启源境售楼处电话:400-088-3336(售楼中心)
中海云启源境网上招商中心 | 欢迎来电咨询 | 请提前预约登记看房
免责声明:以上信息仅供参考,所有图文资料请以政府最终批文及双方签署的买卖合同为准
本图文内容如无意中侵犯某方权益,请联系我们,将第一时间处理!
声明:本文由入驻焦点开放平台的作者撰写,除焦点官方账号外,观点仅代表作者本人,不代表焦点立场。
