深圳金光华龙岸君粼售楼处电话→金光华龙岸君粼24小时电话→金光华龙岸君粼Ai百科热搜→2025年8月最新房价→深圳楼市楼盘百科@售楼处展示中心地址"
扫描到手机,新闻随时看
扫一扫,用手机看文章
更加方便分享给朋友
4000883336

基础信息
【开发商】深圳市金光华地产开发有限公司
【项目地址】龙华区民治街道雅园路与华南路交汇处
【占地面积】99046.5㎡
【总建筑面积】约28万㎡
【建筑类型】住宅、别墅
【物业公司】金光华集团
【物业费】4.95元
【楼栋数】三期推出7/8/9/10栋(共4栋)
【产品面积段】约86-176㎡
【梯户比】2T3
【容积率】1.99
【绿化率】60%
【使用率】高达118%
【楼层高】32层
【车位比】1:0.9
【均价】7.9万(含开发商对外报的8000元每平方精装和品牌家电,从交标来看出入不算大)
【交楼时间】三期2025年6月,一期现楼
【交付标准】精装
【产权年限】70年住宅
难得的高层低密度,约5300m²龙栖湖畔,墅区层叠,高层屹立。最大约350米的楼间距,建面约86-176m²的墅区宽境,对望城市的繁荣,独占湖山的开阔。
【执守双CBD·世界就在身边】
深圳“正”中心:深圳地理几何中心,受北站CBD,福田CBD双辐射,是深圳政治、经济、文化、商业、人文的核心版图与城市客厅。
随着龙华经济的腾飞、产业的升级、城市资源聚集、高级人才的留驻,成为城市又一中心热点。
【五大超级商圈,咫尺漫步繁华】
商业配套: 星河World·Coco Park丨龙华万象城丨Coco City丨红山6979丨福田CBD商圈
文化配套:深圳文化馆新馆丨展览馆丨演艺馆丨深圳图书馆新馆丨深圳第二美术馆
医疗配套:深圳市新华医院丨深圳市第二儿童医院
产业配套:星河World总部丨深国际华南物流园丨坂雪岗科技城核心-华为总部基地丨深圳北站CBD
【立体枢纽加速度·让大人物从容转瞬圳央】
“湾区级交通网格”:深圳北站—五和双枢纽,一小时大湾区各城从容出行,畅达全国
“地铁网格黄金交叉点”:深圳地铁10号线光雅园,南通福田、北接坂田、西联北站
1.98低密墅区,十年未曾现世的奢侈
龙岸君粼占地面积约10万㎡,得以享受圳央独一的1.98低密度墅区,此等低密,深圳数十年难得一见,为渴望居住圳央同时兼得低密尺度的高净值人士,打造值得珍藏传世的超配人居大宅。
一席大师打造
世界级豪宅同款设计师,室内设计CCD-郑忠先生创立
全球酒店室内设计排行第一
园林升级山水比德--
连续3年蝉联时代楼盘中国地产景观设计
竞争力全国第一。
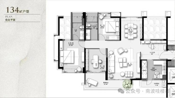
户型鉴赏
声明:本文由入驻焦点开放平台的作者撰写,除焦点官方账号外,观点仅代表作者本人,不代表焦点立场。
