深圳中信城开红树湾售楼处电话(深圳中信城开红树湾)售楼处欢迎您-首页网站-2025楼盘评测中信城开红树湾售楼处24小时电话丨房价丨详情丨地址丨楼盘百科详情
扫描到手机,新闻随时看
扫一扫,用手机看文章
更加方便分享给朋友
✅ 中信城开红树湾✅
✅中信城开红树湾售楼处电话☎✅:400-088-3336 ✅
✅中信城开红树湾 营销中心电话☎✅:400-088-3336✅
✅中信城开红树湾开发商售楼处咨询/官方看房电话☎ 400-088-3336中介勿扰
温馨提示:看房请务必电话提前预约,避免临时无人接待,感谢您的配合!
开发商承诺:一对一专属开发商销售服务,尊享开发商内部优惠服务!
区域价值
从地理位置上看,项目紧邻福田CBD,北侧为香蜜湖金融中心;东侧为平安大厦、会展中心、市民中心;西侧是车公庙枢纽中心,南端是口岸,区位上讲是真正的福田中心区!
作为深圳市中心城区, 福田拥有全国含金量最高的中央商务区 —— 福田 CBD, 以及国家级科技创新平台 —— 河套深港科技创新合作区。
站在新的历史节点, 福田将以河套深港科技创新合作区 , 香蜜湖新金融中心 ,环中心公园活力圈 , “ 三大新引擎 ” 为总牵引 ,突出科创、金融、时尚 “ 三大产业 ” ,瞄准中央创新区、中央商务区、中央活力区 ,“ 三大定位 ” , 奋力推动新三十年再出发,首善之区开新局, 启动全面建设 , 社会主义现代化典范城区的新征程!
中信城开红树湾项目推出7套优质单位
带精装修现房可预约看房
63平~69平 (两房)
77平 (两房)
103平 (三房2卫)
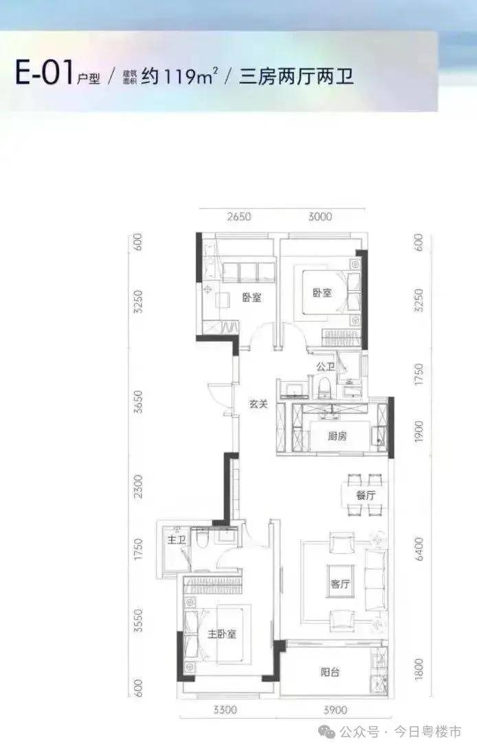
119平 (三房2卫) (看深圳湾红树林景)此套毛坯交付
交通配套
地铁:三号延长线福保站去年已经开通,距离1.3公里
商业配套
项目自带有商业裙楼,周边有天虹商场、福田口岸商业广场、永旺超市、卓悦INTOWN购物中心、星河COCOPark等等。
教育配套
周边配套小学是福苑小学(公办),初中是福田外国语中学(原名福田保税区实验学校);幼儿园则在距离项目约350米处有福田第八幼儿园。
平面•户型图
✅ 中信城开红树湾✅
✅中信城开红树湾售楼处电话☎✅:400-088-3336 ✅
✅中信城开红树湾 营销中心电话☎✅:400-088-3336✅
✅中信城开红树湾开发商售楼处咨询/官方看房电话☎ 400-088-3336中介勿扰
温馨提示:看房请务必电话提前预约,避免临时无人接待,感谢您的配合!
开发商承诺:一对一专属开发商销售服务,尊享开发商内部优惠服务!
免责声明:本文所有文章、图片、音频视频文件等资料版权归版权所有人所有,因非原创文章及图片等内容无法一一和版权者联系,如原作者或编辑认为作品不宜上网供大家浏览,请及时来电告之,我们将立即予以修改或删除。本文如无意中侵犯了某方的知识产权,告之即删。
声明:本文由入驻焦点开放平台的作者撰写,除焦点官方账号外,观点仅代表作者本人,不代表焦点立场。
